London Road, Kelvedon, Colchester
By John Alexander Estate Agents & Letting Agents
£ 300,000
Reviews
3 out of 5 stars
John Alexander Estate Agents & Letting Agents says ..
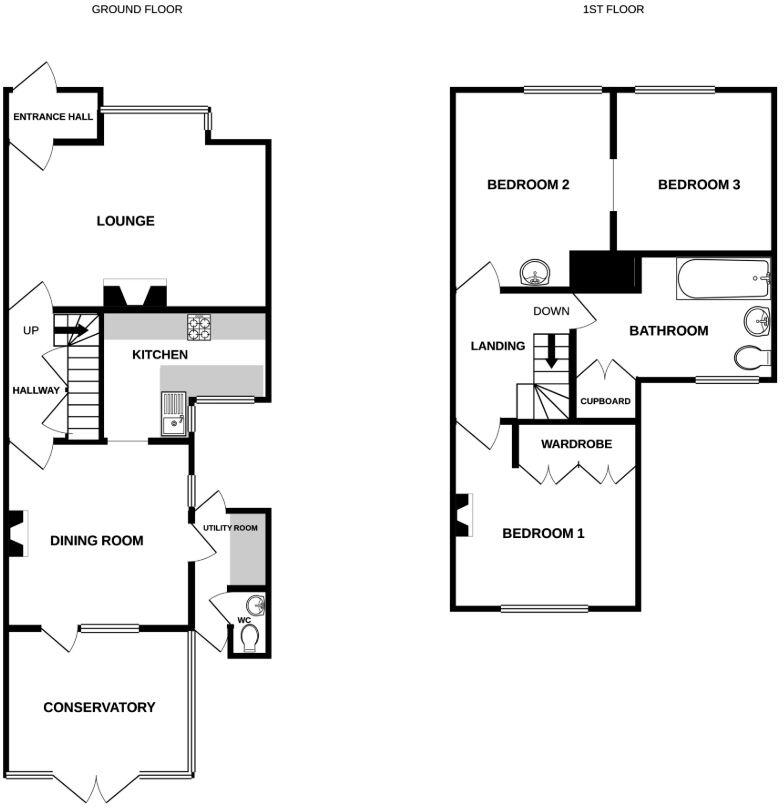
***GUIDE PRICE £300,000 TO £325,000*** John Alexander are delighted to offer for sale this spacious three-bedroom terraced house situated on London Road in the sought-after village of Kelvedon, ideally positioned within walking distance of the mainline railway station with direct servic...
Property Oracle says ..
Therefore, we give this property 7 / 10. *Disclaimer: This is our option and does constitute a recommendation or financial advice. Do your own research. *
- Price
- 8
- Condition
- 6
- Location
- 7
- Land
- 7
- Bedrooms
- 3
- Bathrooms
- 1
- Sqft (est)
- 1,066.80
The heatmap indicates the level of crime in the area. The color of the heatmap indicates the crime severity and recency.
Metrics Year-on-Year
- Average area value
- 510,000.00 £Decreased by 5.75 %
- Est sale value
- 512,064.00 £Increased by 20.00 %
- Average area rental value
- 1,648.00 £/moIncreased by 23.54 %
- Est letting value
- 1,066.80 £/mo
- Est rental Yield
- 3.88 %Increased by 31.08 %
- Crime Rate
- 32.00 %Unchanged by 0.00 %
Agent Activity
John Alexander Estate Agents & Letting Agents marked this listing as sold.
John Alexander Estate Agents & Letting Agents created the listing.
Nearby Schools
| Name | Type | Ofsted | Distance |
|---|---|---|---|
| Kelvedon St Mary'S Church Of England Primary Academy | Academy Converter | Outstanding | 1.11 KM |
| Feering Church Of England Primary School | Academy Sponsor Led | 2.81 KM | |
| St Peter'S Church Of England Voluntary Controlled Primary School, Coggeshall | Voluntary Controlled School | Good | 4.74 KM |
| Rivenhall Church Of England Primary School | Academy Converter | 4.93 KM | |
| Baynards Primary School | Community School | Good | 5.12 KM |
Images
Nearby Streets
| Name | Average Price | Average Sqft | Distance |
|---|---|---|---|
| Ratcliff Court | £ 300,000 | 0 | 0.00 KM |
| Grey's Paddock | £ 600,000 | 0 | 0.00 KM |
| Ewell Hall Chase | £ 895,000 | 0 | 0.00 KM |
| Croft Road | £ 0 | 0 | 0.00 KM |
| Argyle Court | £ 332,500 | 0 | 0.00 KM |
Nearby Transport
| Name | NLC | TLC | Distance |
|---|---|---|---|
| Kelvedon | 6838 | KEL | 1.24 KM |
| Witham | 6844 | WTM | 6.89 KM |
Nearby Listings
| Address | Price | Type | Score | Distance |
|---|---|---|---|---|
| London Road, Kelvedon, Colchester | £ 300,000 | BUY | 7 / 10 | 0.00 KM |
| London Road, Kelvedon, Colchester | £ 300,000 | BUY | 7 / 10 | 0.00 KM |
| St Dominics Bungalows, Dominics Way, Kelvedon, Colchester, Essex, CO5 | £ 540,000 | BUY | 7 / 10 | 0.07 KM |
| Plot 4, Dominics Way, Kelvedon, Colchester, Essex, CO5 | £ 540,000 | BUY | 8 / 10 | 0.07 KM |
| St Dominics Bungalows, Dominics Way, Kelvedon, Colchester, Essex, CO5 | £ 520,000 | BUY | 6 / 10 | 0.07 KM |
Nearby Properties
| Address | Price | Distance |
|---|---|---|
| 37 London Road | £ 176,500 | 0.00 KM |
| 23 London Road | £ 248,500 | 0.00 KM |
| 21 London Road | £ 355,000 | 0.00 KM |
| 27 London Road | £ 217,000 | 0.00 KM |
| Tollgate Cottage | £ 232,500 | 0.12 KM |