Highmead, PONTLLANFRAITH, NP12
By Cariad Property
£ 155,000
Reviews
3 out of 5 stars
Cariad Property says ..
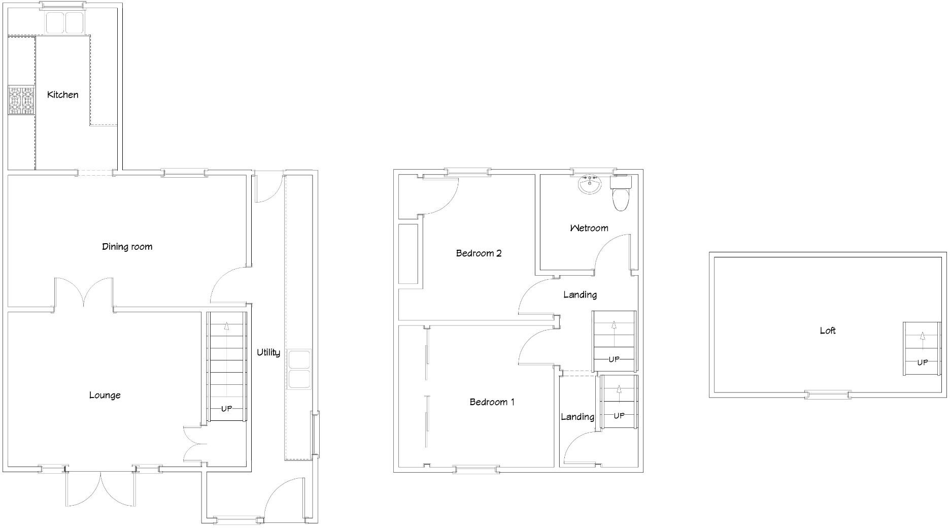
SUPER, LARGELY EXTENDED FAMILY HOME WITH LOTS OF OUTHOUSES. Popular location, great for amenities, large gardens with oodles of out houses, two bedrooms, two reception rooms, loft room, no chain.
Property Oracle says ..
This semi-detached property in Pontllanfraith, Caerphilly is listed at £155,000. The property benefits from a garden and appears to be in reasonable condition, though some modernisation may be desirable. While the square footage is not provided, the list price is below the average price for the area (£226,000). The property’s proximity to local schools and transportation links is a positive attribute. However, a comprehensive assessment of the property’s condition and a precise square footage would be beneficial for a more detailed valuation.
Therefore, we give this property 6 / 10. *Disclaimer: This is our option and does constitute a recommendation or financial advice. Do your own research. *
- Price
- 6
- Condition
- 7
- Location
- 7
- Land
- 6
- Bedrooms
- 2
- Bathrooms
- 1
The heatmap indicates the level of crime in the area. The color of the heatmap indicates the crime severity and recency.
Metrics Year-on-Year
- Average area value
- 187,143.00 £Decreased by 32.77 %
- Average area rental value
- 825.00 £/moIncreased by 3.90 %
- Est rental Yield
- 5.29 %Increased by 54.68 %
- Crime Rate
- 14.00 %Unchanged by 0.00 %
Agent Activity
Cariad Property marked this listing as sold.
Cariad Property created the listing.
Nearby Schools
| Name | Type | Ofsted | Distance |
|---|---|---|---|
| Penllwyn Primary School | Welsh Establishment | 0.11 KM | |
| Bryn Primary School | Welsh Establishment | 0.56 KM | |
| Libanus Primary School | Welsh Establishment | 1.17 KM | |
| Blackwood Primary School | Welsh Establishment | 1.31 KM | |
| Ysgol Gyfun Cwm Rhymni | Welsh Establishment | 1.62 KM |
Images
Nearby Streets
| Name | Average Price | Average Sqft | Distance |
|---|---|---|---|
| The Green | £ 0 | 0 | 0.00 KM |
| Highfields Way | £ 0 | 0 | 0.00 KM |
| Chestnut Grove | £ 0 | 0 | 0.00 KM |
| Laurel Drive | £ 0 | 0 | 0.00 KM |
| Lime Grove | £ 0 | 0 | 0.00 KM |
Nearby Transport
| Name | NLC | TLC | Distance |
|---|---|---|---|
| Hengoed | 4028 | HNG | 2.56 KM |
| Pengam | 4021 | PGM | 3.51 KM |
| Gilfach Fargoed | 4022 | GFF | 4.20 KM |
| Ystrad Mynach | 4026 | YSM | 4.59 KM |
| Bargoed | 4011 | BGD | 5.11 KM |
Nearby Listings
| Address | Price | Type | Score | Distance |
|---|---|---|---|---|
| Highmead, Pontllanfraith, NP12 | £ 129,950 | BUY | 6 / 10 | 0.00 KM |
| Highmead, PONTLLANFRAITH, NP12 | £ 155,000 | BUY | 6 / 10 | 0.00 KM |
| The Green, Blackwood, NP12 | £ 175,000 | BUY | 7 / 10 | 0.18 KM |
| Fleur De Lys Avenue, Pontllanfraith, NP12 | £ 160,000 | BUY | 7 / 10 | 0.20 KM |
| Fleur De Lys Avenue, Blackwood, NP12 2NU | £ 110,000 | BUY | Unknown | 0.24 KM |
Nearby Properties
| Address | Price | Distance |
|---|---|---|
| 44 Highmead | £ 74,950 | 0.00 KM |
| 12 Highmead | £ 93,000 | 0.00 KM |
| 36 Highmead | £ 90,500 | 0.00 KM |
| 54 Highmead | £ 152,500 | 0.00 KM |
| 2 Highmead | £ 79,500 | 0.00 KM |