Hillcrest Gardens, Exmouth
By Links Estate Agents
£ 495,000
Reviews
3 out of 5 stars
Links Estate Agents says ..
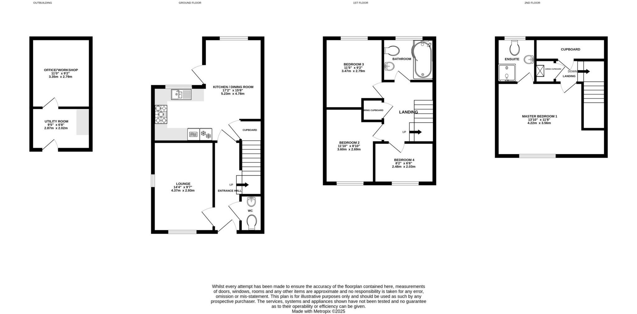
A very well presented modern 4 bedroom semi detached town house style property offering accommodation arranged over three floors and situated on a desirable development overlooking a green with mature trees and benefiting from have a good size landscaped garden and a detached office/workshop.
Property Oracle says ..
This property is a 4-bedroom, 2-bathroom semi-detached house located in Hillcrest Gardens, Exmouth, East Devon. The area benefits from nearby schools, including Bassetts Farm Primary School (rated Good by Ofsted) and several others within a 1.33km radius. Exmouth train station is approximately 3.31km away, providing convenient access to other areas. The property itself appears to be in excellent condition, with modern fixtures and finishes throughout. Images show a well-maintained garden with artificial turf and patio areas. The list price of £495,000 is slightly higher than the average price of £434,321 for the area, but comparable properties in the immediate vicinity range from £320,000 to £750,000, suggesting the price is within a reasonable range, especially considering the property’s apparent condition and features.
Therefore, we give this property 7 / 10. *Disclaimer: This is our option and does constitute a recommendation or financial advice. Do your own research. *
- Price
- 7
- Condition
- 9
- Location
- 8
- Land
- 7
- Bedrooms
- 4
- Bathrooms
- 2
The heatmap indicates the level of crime in the area. The color of the heatmap indicates the crime severity and recency.
Metrics Year-on-Year
- Average area value
- 412,759.00 £Increased by 3.22 %
- Average area rental value
- 1,432.00 £/moDecreased by 13.89 %
- Est rental Yield
- 4.16 %Decreased by 16.63 %
- Crime Rate
- 5.00 %Unchanged by 0.00 %
Agent Activity
Links Estate Agents created the listing.
Nearby Schools
| Name | Type | Ofsted | Distance |
|---|---|---|---|
| Bassetts Farm Primary School | Foundation School | Good | 0.23 KM |
| Marpool Primary School | Foundation School | Good | 0.92 KM |
| Brixington Primary Academy | Academy Sponsor Led | Requires improvement | 0.94 KM |
| Exmouth & District Children'S Centre | Children's Centre | 1.12 KM | |
| Withycombe Raleigh Church Of England Primary School | Voluntary Controlled School | Good | 1.33 KM |
Images
Nearby Streets
| Name | Average Price | Average Sqft | Distance |
|---|---|---|---|
| Somerville Close | £ 0 | 0 | 0.00 KM |
| Wade Close | £ 0 | 0 | 0.00 KM |
| Martins Road | £ 220,000 | 0 | 0.00 KM |
| Spencer Close | £ 485,000 | 0 | 0.00 KM |
| Copperfield Close | £ 385,000 | 0 | 0.00 KM |
Nearby Transport
| Name | NLC | TLC | Distance |
|---|---|---|---|
| Exmouth | 5756 | EXM | 3.31 KM |
| Lympstone Village | 5761 | LYM | 5.12 KM |
| Starcross | 3413 | SCS | 6.70 KM |
| Lympstone Commando | 5762 | LYC | 6.75 KM |
| Dawlish Warren | 3409 | DWW | 7.30 KM |
Nearby Listings
| Address | Price | Type | Score | Distance |
|---|---|---|---|---|
| Hillcrest Gardens, Exmouth | £ 495,000 | BUY | 7 / 10 | 0.00 KM |
| St. Johns Road, Exmouth, EX8 4EB | £ 320,000 | BUY | 6 / 10 | 0.12 KM |
| Hillcrest Gardens, Exmouth, EX8 4FE | £ 410,000 | BUY | Unknown | 0.12 KM |
| Withycombe House, Hillcrest Gardens, Exmouth, Devon | £ 775,000 | BUY | Unknown | 0.15 KM |
| Hillcrest Gardens, Exmouth | £ 399,950 | BUY | Unknown | 0.15 KM |
Nearby Properties
| Address | Price | Distance |
|---|---|---|
| 8 Hillcrest Gardens | £ 320,000 | 0.02 KM |
| 14 Hillcrest Gardens | £ 355,000 | 0.02 KM |
| 11 Hillcrest Gardens | £ 375,000 | 0.05 KM |
| 17 Hillcrest Gardens | £ 395,000 | 0.05 KM |
| 16 Hillcrest Gardens | £ 360,000 | 0.05 KM |