Claremont Avenue, New Malden, KT3
By Hawes & Co
£ 700,000
Reviews
3 out of 5 stars
Hawes & Co says ..
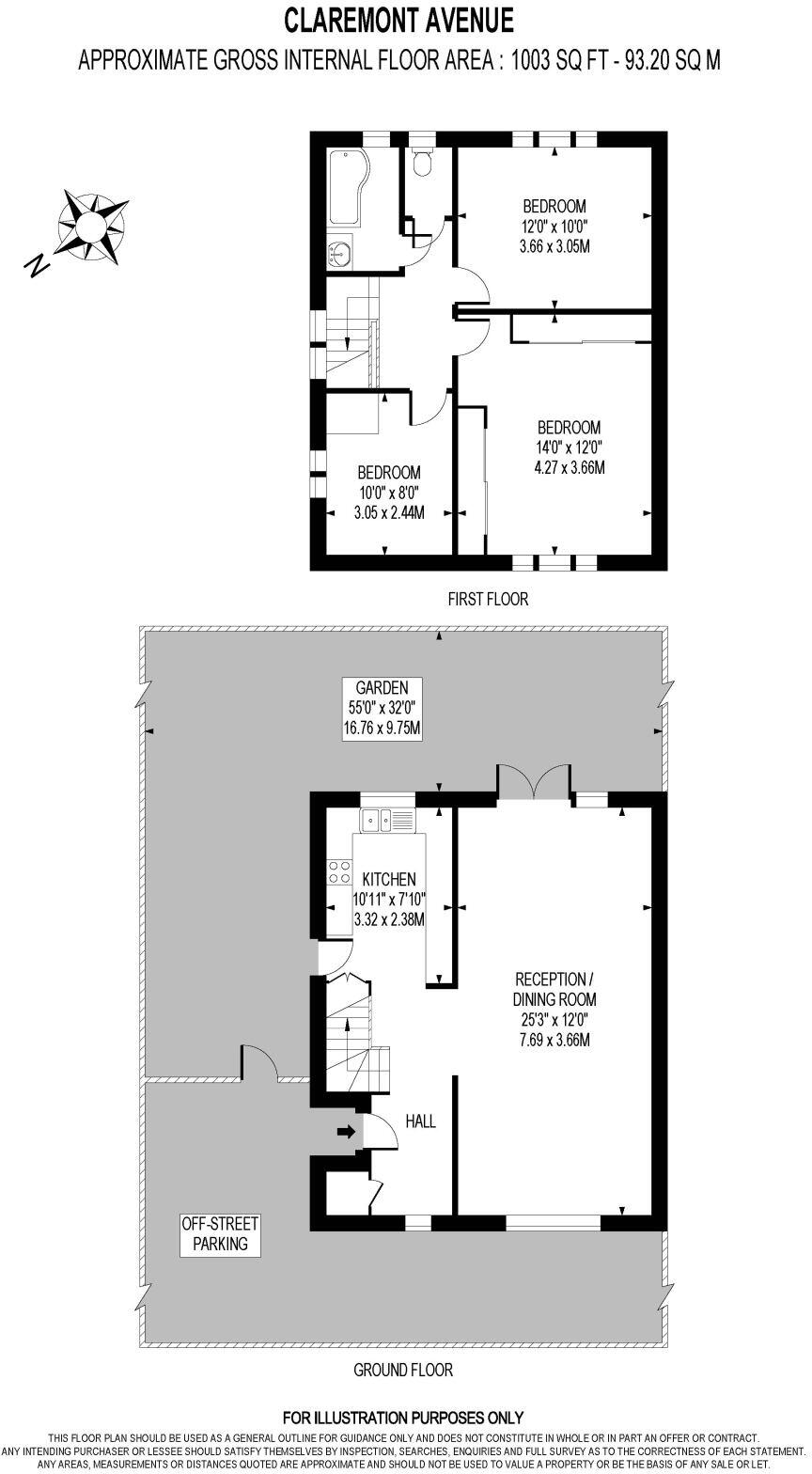
Nestled in a sought-after area, this charming end of terrace house presents a wonderful opportunity for families. Boasting three bedrooms, spacious reception and dining room, and a well-appointed bathroom, with separate w/c, this property offers comfortable living spaces. The delightful garden pr...
Property Oracle says ..
This is a three-bedroom end-of-terrace property located on Claremont Avenue in New Malden. The property benefits from its proximity to local schools and transport links, making it a desirable location for families and commuters. The property appears to be in good condition, with modern interiors and a well-maintained garden that includes a hot tub. The listing price of £700,000 seems reasonable given the property’s size, location, and condition, although it’s important to consider that it is an end-of-terrace.
Therefore, we give this property 7 / 10. *Disclaimer: This is our option and does constitute a recommendation or financial advice. Do your own research. *
- Price
- 6
- Condition
- 8
- Location
- 7
- Land
- 7
- Bedrooms
- 3
- Bathrooms
- 1
- Sqft (est)
- 2,516.00
The heatmap indicates the level of crime in the area. The color of the heatmap indicates the crime severity and recency.
Metrics Year-on-Year
- Average area value
- 652,765.00 £Decreased by 5.62 %
- Est sale value
- 1,376,252.00 £Decreased by 21.29 %
- Average area rental value
- 2,582.00 £/moIncreased by 3.28 %
- Est letting value
- 5,032.00 £/moUnchanged by 0.00 %
- Est rental Yield
- 4.75 %Increased by 9.45 %
- Crime Rate
- 2.00 %Unchanged by 0.00 %
Agent Activity
Hawes & Co created the listing.
Nearby Schools
| Name | Type | Ofsted | Distance |
|---|---|---|---|
| Sacred Heart Catholic Primary School | Voluntary Aided School | Good | 0.27 KM |
| Blossom House School | Other Independent Special School | Outstanding | 0.42 KM |
| Raynes Park High School | Community School | Good | 0.51 KM |
| West Wimbledon Primary School | Community School | Requires improvement | 0.81 KM |
| Coombe Boys' School | Academy Converter | Good | 1.02 KM |
Images
Nearby Streets
| Name | Average Price | Average Sqft | Distance |
|---|---|---|---|
| Station Road | £ 762,500 | 0 | 0.00 KM |
| Beverley Way | £ 1,487,500 | 0 | 0.00 KM |
| Arthur Road | £ 843,750 | 0 | 0.00 KM |
| Blenheim Close | £ 825,518 | 0 | 0.00 KM |
| Greenway | £ 772,857 | 0 | 0.00 KM |
Nearby Transport
| Name | NLC | TLC | Distance |
|---|---|---|---|
| Motspur Park | 5645 | MOT | 0.42 KM |
| Raynes Park | 5569 | RAY | 1.48 KM |
| New Malden | 5567 | NEM | 2.02 KM |
| Worcester Park | 5579 | WCP | 2.09 KM |
| Wimbledon Chase | 5612 | WBO | 2.96 KM |
Nearby Listings
| Address | Price | Type | Score | Distance |
|---|---|---|---|---|
| Claremont Avenue, New Malden, KT3 | £ 700,000 | BUY | 7 / 10 | 0.00 KM |
| Claremont Avenue, New Malden, KT3 | £ 300,000 | BUY | 8 / 10 | 0.04 KM |
| Claremont Avenue, New Malden | £ 625,000 | BUY | 6 / 10 | 0.05 KM |
| Claremont Avenue, Motspur Park, KT3 | £ 700,000 | BUY | 6 / 10 | 0.06 KM |
| Claremont Avenue, New Malden, KT3 | £ 575,000 | BUY | 6 / 10 | 0.10 KM |
Nearby Properties
| Address | Price | Distance |
|---|---|---|
| 68 Claremont Avenue | £ 575,000 | 0.05 KM |
| 49 Claremont Avenue | £ 375,000 | 0.05 KM |
| 48 Claremont Avenue | £ 500,000 | 0.05 KM |
| 45 Claremont Avenue | £ 441,000 | 0.05 KM |
| 64 Claremont Avenue | £ 250,000 | 0.05 KM |