Bowden Bradley says ..
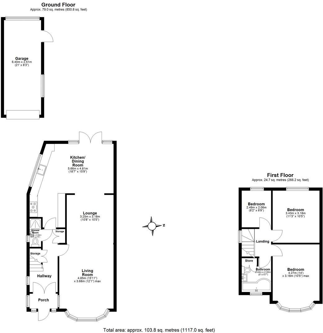
Guide Price £600,000 - £650,000 Stradbroke Grove, Clayhall, this charming end-of-terrace house offers a perfect blend of comfort and convenience. With three well-proportioned bedrooms, this home is ideal for families or those seeking extra space. The property boasts two inviting receptio...
Property Oracle says ..
This property is a 3-bedroom, 2-bathroom end of terrace house located in Clayhall, Redbridge. The property is presented in good condition and has been recently modernised, boasting a contemporary kitchen and bathrooms. The location benefits from being close to several well-regarded schools, including Parkhill Infants’ and Junior Schools (both rated Outstanding or Good by Ofsted) and is within a reasonable distance of several transport links. The property also includes a garden and outbuildings. The list price of £600,000 is slightly below the average price for the area (£638,313), and while the average price per sqft is £507, this property is slightly smaller than average. Considering its condition, location, and amenities, the price appears reasonable.
Therefore, we give this property 8 / 10. *Disclaimer: This is our option and does constitute a recommendation or financial advice. Do your own research. *
- Price
- 8
- Condition
- 9
- Location
- 8
- Land
- 7
- Bedrooms
- 3
- Bathrooms
- 2
- Sqft (est)
- 1,108.68
- Lot (est)
- 1,117.29
The heatmap indicates the level of crime in the area. The color of the heatmap indicates the crime severity and recency.
Metrics Year-on-Year
- Average area value
- 650,000.00 £Decreased by 8.50 %
- Est sale value
- 810,445.08 £Increased by 43.90 %
- Average area rental value
- 1,850.00 £/moIncreased by 0.49 %
- Est letting value
- 2,217.36 £/moIncreased by 100.00 %
- Est rental Yield
- 3.42 %Increased by 9.97 %
- Crime Rate
- 4.00 %Unchanged by 0.00 %
Agent Activity
Bowden Bradley created the listing.
Nearby Schools
| Name | Type | Ofsted | Distance |
|---|---|---|---|
| Parkhill Infants' School | Community School | Outstanding | 0.15 KM |
| Parkhill Junior School | Community School | Good | 0.15 KM |
| Caterham High School | Community School | Requires improvement | 0.73 KM |
| Beehive Preparatory School | Other Independent School | 0.92 KM | |
| Glade Primary School | Community School | Good | 1.04 KM |
Images
Nearby Streets
| Name | Average Price | Average Sqft | Distance |
|---|---|---|---|
| Wychwood Gardens | £ 0 | 0 | 0.00 KM |
| Heatherley Drive | £ 0 | 0 | 0.00 KM |
| Clayhall Avenue | £ 0 | 0 | 0.00 KM |
| Dacre Avenue | £ 0 | 0 | 0.00 KM |
| Gants Hill Roundabout | £ 0 | 0 | 0.00 KM |
Nearby Transport
| Name | NLC | TLC | Distance |
|---|---|---|---|
| Ilford | 6881 | IFD | 3.19 KM |
| Manor Park | 6883 | MNP | 4.31 KM |
| Seven Kings | 6893 | SVK | 4.51 KM |
| Woodgrange Park | 7467 | WGR | 4.73 KM |
| Barking | 7492 | BKG | 5.64 KM |
Nearby Listings
| Address | Price | Type | Score | Distance |
|---|---|---|---|---|
| Stradbroke Grove, Clayhall | £ 600,000 | BUY | 8 / 10 | 0.00 KM |
| Stradbroke Grove, Clayhall, Essex IG5 | £ 550,000 | BUY | 8 / 10 | 0.01 KM |
| Stradbroke Grove, Ilford | £ 600,000 | BUY | 6 / 10 | 0.03 KM |
| Werneth Hall Road, Ilford, London, IG5 | £ 599,950 | BUY | 6 / 10 | 0.07 KM |
| Stradbroke Grove, Clayhall | £ 600,000 | BUY | 7 / 10 | 0.10 KM |
Nearby Properties
| Address | Price | Distance |
|---|---|---|
| 320 Stradbroke Grove | £ 424,500 | 0.01 KM |
| 316 Stradbroke Grove | £ 485,000 | 0.01 KM |
| 300 Stradbroke Grove | £ 282,000 | 0.01 KM |
| 381 Stradbroke Grove | £ 369,500 | 0.01 KM |
| 308 Stradbroke Grove | £ 472,000 | 0.01 KM |