Brown & Co says ..
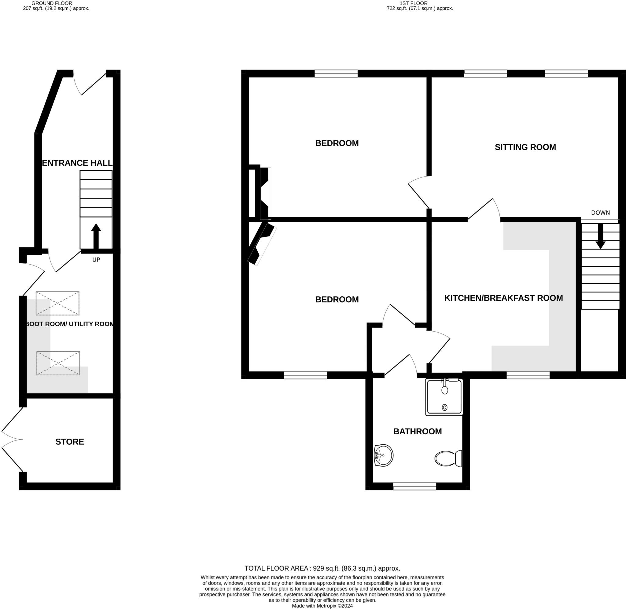
Brown & Co offers a rare chance to acquire a prominent, two bedroom, first floor apartment a short walk from the Market Place in Burnham Market. Ideal as a weekend retreat to explore Norfolk, the property also offers excellent holiday let income potential. No upward chain.
Property Oracle says ..
This two-bedroom, first-floor apartment in Burnham Market presents a compelling opportunity for buyers seeking a stylish and convenient property in a highly desirable location. The apartment’s interior is tastefully decorated and well-maintained, offering a comfortable living space for full-time residents or as a holiday retreat. The proximity to Burnham Market’s vibrant centre, with its shops and amenities, is undoubtedly a significant advantage. Further, the close proximity to Burnham Market Primary School makes it attractive to families. The lack of exterior space, however, is a major consideration for buyers looking for a garden or outdoor area. While the list price of £375,000 seems relatively in line with market values for the area, a definitive price-per-square-foot assessment is limited by the lack of comparable sales data with available square footage. The apartment’s potential for holiday let income adds a unique investment dimension to the property. Overall, the property is well-suited to buyers prioritising location and convenience over outdoor space and larger square footage.
Therefore, we give this property 5 / 10. *Disclaimer: This is our option and does constitute a recommendation or financial advice. Do your own research. *
- Price
- 7
- Condition
- 7
- Location
- 8
- Land
- 1
- Bedrooms
- 2
- Bathrooms
- 1
- Sqft (est)
- 929.00
The heatmap indicates the level of crime in the area. The color of the heatmap indicates the crime severity and recency.
Metrics Year-on-Year
- Average area value
- 1,105,000.00 £Increased by 30.13 %
- Est sale value
- 1,522,631.00 £Increased by 162.24 %
- Average area rental value
- 1,532.00 £/moIncreased by 14.67 %
- Est letting value
- 1,858.00 £/mo
- Est rental Yield
- 1.66 %Decreased by 12.17 %
- Crime Rate
- 13.00 %Unchanged by 0.00 %
Agent Activity
Brown & Co created the listing.
Nearby Schools
| Name | Type | Ofsted | Distance |
|---|---|---|---|
| Burnham Market Primary School | Academy Sponsor Led | 0.51 KM |
Images
Nearby Streets
| Name | Average Price | Average Sqft | Distance |
|---|---|---|---|
| Jewel's Close | £ 0 | 0 | 0.00 KM |
| Saint Edmunds Lane | £ 1,150,000 | 0 | 0.00 KM |
| Friar's Lane | £ 600,000 | 0 | 0.00 KM |
| Mill Road | £ 0 | 0 | 0.00 KM |
| Beacon Hill Road | £ 750,000 | 0 | 0.00 KM |
Nearby Listings
| Address | Price | Type | Score | Distance |
|---|---|---|---|---|
| Overy Road, Burnham Market | £ 575,000 | BUY | 6 / 10 | 0.00 KM |
| Burnham Market, Norfolk | £ 995,000 | BUY | 8 / 10 | 0.07 KM |
| Burnham Market, Norfolk | £ 1,100,000 | BUY | 8 / 10 | 0.09 KM |
| Burnham Market, Norfolk | £ 395,000 | BUY | 7 / 10 | 0.15 KM |
| Mill Green, Burnham Market, PE31 | £ 450,000 | BUY | 7 / 10 | 0.18 KM |
Nearby Properties
| Address | Price | Distance |
|---|---|---|
| New House | £ 475,000 | 0.00 KM |
| The Old Rectory | £ 2,080,000 | 0.00 KM |
| St Andrews House | £ 1,119,001 | 0.00 KM |
| Church House | £ 250,000 | 0.00 KM |
| 4 Mill Green | £ 425,000 | 0.13 KM |