McDonald says ..
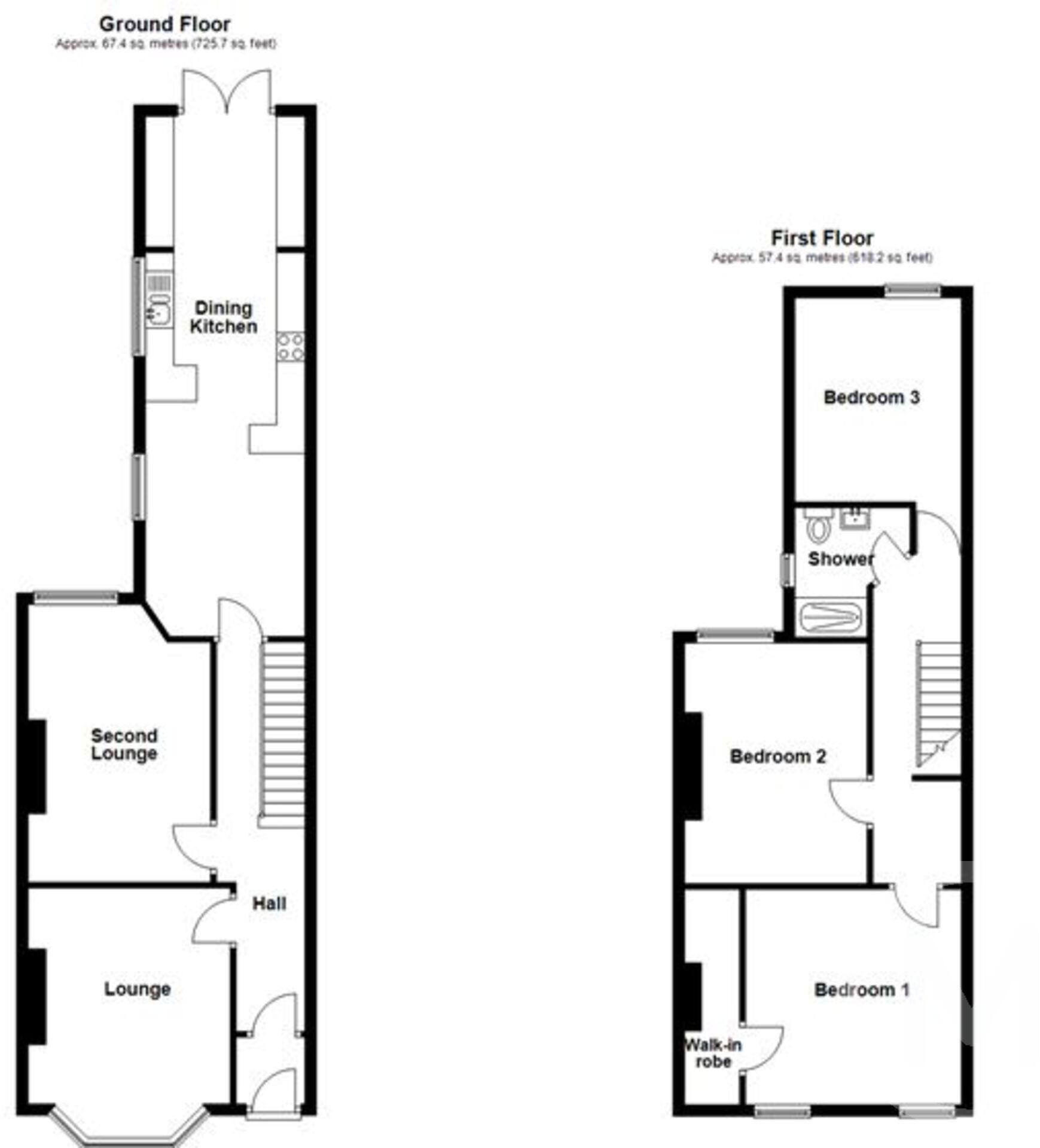
This traditional Mid Terrace Home affords really generous living accommodation. The ground floor features two well proportioned reception rooms, and a FANTASTIC modern Dining Kitchen measuring over 28' in length, whilst to the first floor are the three Bedrooms - the master has its own walk in wa...
Property Oracle says ..
Therefore, we give this property 6 / 10. *Disclaimer: This is our option and does constitute a recommendation or financial advice. Do your own research. *
- Price
- 7
- Condition
- 7
- Location
- 7
- Land
- 5
- Bedrooms
- 3
- Bathrooms
- 1
- Sqft (est)
- 725.49
The heatmap indicates the level of crime in the area. The color of the heatmap indicates the crime severity and recency.
Metrics Year-on-Year
- Average area value
- 184,997.00 £Increased by 10.26 %
- Est sale value
- 149,450.94 £Increased by 42.07 %
- Average area rental value
- 800.00 £/moIncreased by 8.55 %
- Est letting value
- 0.00 £/mo
- Est rental Yield
- 5.19 %Decreased by 1.52 %
- Crime Rate
- 2.00 %Unchanged by 0.00 %
from 167,777.00 £
from 105,196.05 £
from 737.00 £/mo
from 0.00 £/mo
from 5.27 %
from 2.00 %
Agent Activity
McDonald created the listing.
Nearby Schools
| Name | Type | Ofsted | Distance |
|---|---|---|---|
| Langdale Free School | Free Schools | Good | 0.32 KM |
| Holy Family Catholic Primary School | Voluntary Aided School | Good | 0.36 KM |
| Westminster Primary Academy | Academy Converter | 0.55 KM | |
| Westminster Children'S Centre | Children's Centre | 0.55 KM | |
| Unity College Blackpool Children'S Centre | Children's Centre Linked Site | 1.05 KM |
Images
Nearby Streets
| Name | Average Price | Average Sqft | Distance |
|---|---|---|---|
| Argyll Court | £ 172,500 | 0 | 0.00 KM |
| Westminster Road | £ 0 | 0 | 0.00 KM |
| Derby Road | £ 0 | 0 | 0.00 KM |
| Middle Walk | £ 0 | 0 | 0.00 KM |
| Spencer Court | £ 55,000 | 0 | 0.00 KM |
Nearby Transport
| Name | NLC | TLC | Distance |
|---|---|---|---|
| Blackpool North | 2739 | BPN | 1.44 KM |
| Layton (Lancs) | 2669 | LAY | 2.16 KM |
| Blackpool South | 2740 | BPS | 4.02 KM |
| Blackpool Pleasure Beach | 2738 | BPB | 5.23 KM |
| Squires Gate | 2666 | SQU | 6.39 KM |
Nearby Listings
| Address | Price | Type | Score | Distance |
|---|---|---|---|---|
| Cornwall Avenue, Bispham | £ 162,500 | BUY | 6 / 10 | 0.00 KM |
| Warbreck Hill Road, Blackpool, Lancashire, FY2 | £ 225,400 | BUY | 6 / 10 | 0.07 KM |
| Cornwall Avenue, Blackpool, Lancashire, FY2 | £ 250,000 | BUY | 6 / 10 | 0.11 KM |
| Cornwall Avenue, Blackpool, Lancashire, FY2 | £ 134,995 | BUY | 5 / 10 | 0.11 KM |
| Flat 9, Warbreck Court, Warbreck Hill Road, Blackpool, Lancashire | £ 111,500 | BUY | 5 / 10 | 0.14 KM |
Nearby Properties
| Address | Price | Distance |
|---|---|---|
| 81 Warbreck Hill Road | £ 154,000 | 0.08 KM |
| 79 Warbreck Hill Road | £ 145,000 | 0.08 KM |
| 36 Warbreck Hill Road | £ 180,000 | 0.09 KM |
| 52 Cornwall Avenue | £ 135,000 | 0.11 KM |
| 2 Cornwall Avenue | £ 164,950 | 0.11 KM |