Winkworth says ..
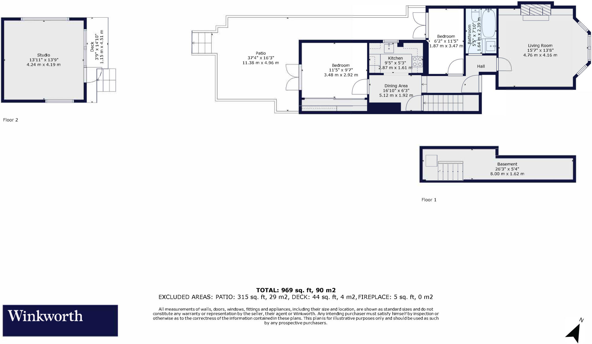
Tucked away on a sought-after residential street in Herne Hill, this charming two-bedroom ground-floor flat offers an abundance of space, character, and versatility. Stepping inside, the inviting reception room showcases elegant period features, including wooden flooring and a feature ...
Property Oracle says ..
This property is a 2 bedroom, 1 bathroom house located on Romola Road in the Thurlow Park area of Lambeth, London. The property is listed at £675,000 and has 969 sqft of living space. The average price for properties in the area is £678,837 with an average price per sqft of £625. The property benefits from being close to several highly-rated schools and transport links. Based on the photos, the property appears to be in good condition and has been recently refurbished. There is also a garden and a modern home gym in the back garden. Considering the location, condition, and amenities, the list price seems reasonable compared to other properties in the area.
Therefore, we give this property 8 / 10. *Disclaimer: This is our option and does constitute a recommendation or financial advice. Do your own research. *
- Price
- 7
- Condition
- 9
- Location
- 9
- Land
- 8
- Bedrooms
- 2
- Bathrooms
- 1
- Sqft (est)
- 969.00
The heatmap indicates the level of crime in the area. The color of the heatmap indicates the crime severity and recency.
Metrics Year-on-Year
- Average area value
- 418,111.00 £Decreased by 38.49 %
- Est sale value
- 619,191.00 £Decreased by 6.85 %
- Average area rental value
- 2,476.00 £/moIncreased by 11.08 %
- Est letting value
- 2,907.00 £/moIncreased by 50.00 %
- Est rental Yield
- 7.11 %Increased by 80.46 %
- Crime Rate
- 4.00 %Unchanged by 0.00 %
Agent Activity
Winkworth created the listing.
Nearby Schools
| Name | Type | Ofsted | Distance |
|---|---|---|---|
| St Martin In The Fields High School For Girls | Academy Converter | Good | 0.22 KM |
| City Heights E-Act Academy | Academy Sponsor Led | Good | 0.64 KM |
| Fenstanton Primary School | Community School | Good | 0.64 KM |
| The Elmgreen School | Academy Converter | Good | 0.69 KM |
| Streatham Wells Primary School | Community School | Good | 0.95 KM |
Images
Nearby Streets
| Name | Average Price | Average Sqft | Distance |
|---|---|---|---|
| Jemma Knowles Close | £ 0 | 0 | 0.00 KM |
| Neil Wates Crescent | £ 375,000 | 0 | 0.00 KM |
| Crosby Walk | £ 0 | 0 | 0.00 KM |
| Bannister Close | £ 375,000 | 0 | 0.00 KM |
| Selwood Street | £ 475,000 | 0 | 0.00 KM |
Nearby Transport
| Name | NLC | TLC | Distance |
|---|---|---|---|
| Tulse Hill | 5390 | TUH | 0.49 KM |
| Herne Hill | 5066 | HNH | 1.29 KM |
| West Norwood | 5438 | WNW | 1.36 KM |
| West Dulwich | 5086 | WDU | 1.86 KM |
| Streatham Hill | 5435 | SRH | 2.19 KM |
Nearby Listings
| Address | Price | Type | Score | Distance |
|---|---|---|---|---|
| Romola Road, London, SE24 | £ 675,000 | BUY | 8 / 10 | 0.00 KM |
| Deronda Road, London, SE24 | £ 500,000 | BUY | 5 / 10 | 0.06 KM |
| Romola Road, London, SE24 | £ 1,375,000 | BUY | Unknown | 0.06 KM |
| Deronda Road, London, SE24 | £ 585,000 | BUY | 7 / 10 | 0.07 KM |
| Romola Road, London, SE24 | £ 650,000 | BUY | 6 / 10 | 0.08 KM |
Nearby Properties
| Address | Price | Distance |
|---|---|---|
| 28c Romola Road | £ 349,000 | 0.08 KM |
| 52 Romola Road | £ 1,225,000 | 0.08 KM |
| 28b - 28c Romola Road | £ 515,000 | 0.08 KM |
| 70 Romola Road | £ 41,950 | 0.08 KM |
| 24a Romola Road | £ 275,000 | 0.08 KM |