CH
Argyle Road, Whitstable
By Christopher Hodgson
£ 499,950
Reviews
4 out of 5 stars
Christopher Hodgson says ..
A beautifully presented Victorian terraced house in the heart of Whitstable's desirable conservation area, conveniently positioned just moments from Harbour Street's boutique shops, popular café bars and eateries, the seafront, working harbour and Whitstable station, which is half a mile distant....
Property Oracle says ..
Therefore, we give this property 8 / 10. *Disclaimer: This is our option and does constitute a recommendation or financial advice. Do your own research. *
- Price
- 9
- Condition
- 8
- Location
- 8
- Land
- 7
- Bedrooms
- 3
- Bathrooms
- 1
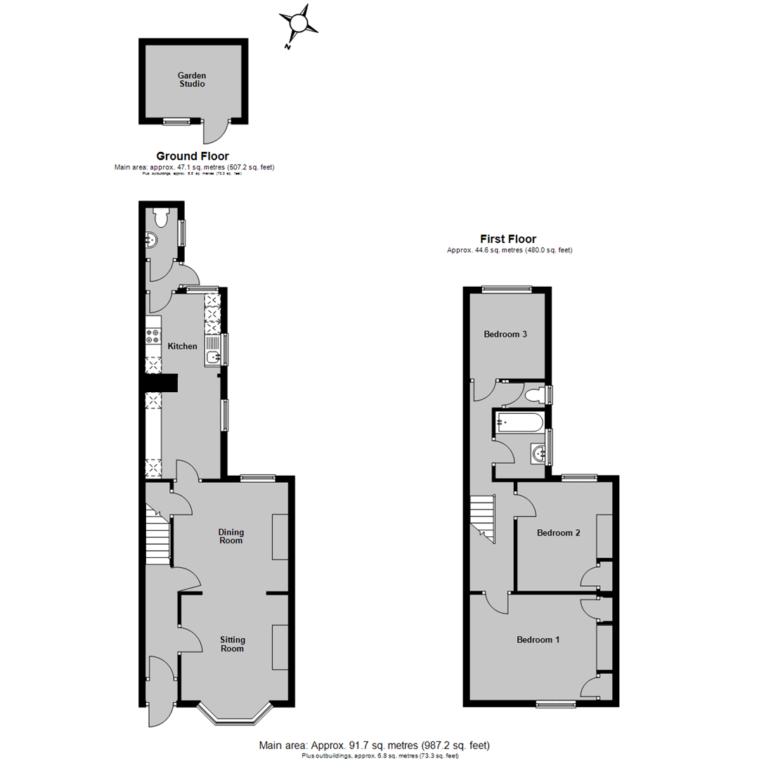
- Sqft (est)
- 987.05
The heatmap indicates the level of crime in the area. The color of the heatmap indicates the crime severity and recency.
Metrics Year-on-Year
- Average area value
- 467,833.00 £Increased by 3.56 %
- Est sale value
- 725,481.75 £Increased by 86.55 %
- Average area rental value
- 1,383.00 £/moIncreased by 4.30 %
- Est letting value
- 1,974.10 £/moIncreased by 100.00 %
- Est rental Yield
- 3.55 %Increased by 0.85 %
- Crime Rate
- 16.00 %Unchanged by 0.00 %
from 451,737.00 £
from 388,897.70 £
from 1,326.00 £/mo
from 987.05 £/mo
from 3.52 %
from 16.00 %
Agent Activity
Christopher Hodgson created the listing.
Nearby Schools
| Name | Type | Ofsted | Distance |
|---|---|---|---|
| Whitstable And Seasalter Endowed Church Of England Junior School | Voluntary Aided School | Outstanding | 0.20 KM |
| Whitstable Junior School | Foundation School | Good | 0.30 KM |
| St Alphege Church Of England Infant School | Voluntary Controlled School | Good | 0.33 KM |
| Isp Polar Re Start Centre | Other Independent Special School | 0.40 KM | |
| Westmeads Community Infant School | Community School | Outstanding | 0.42 KM |
Images
Nearby Streets
| Name | Average Price | Average Sqft | Distance |
|---|---|---|---|
| Freeman's Yard | £ 0 | 0 | 0.00 KM |
| Old Millfield Works | £ 0 | 0 | 0.00 KM |
| Wheelers Alley (CWX32) | £ 0 | 0 | 0.00 KM |
| Salt Pans Lane | £ 360,000 | 0 | 0.00 KM |
| Brices Alley | £ 0 | 0 | 0.00 KM |
Nearby Transport
| Name | NLC | TLC | Distance |
|---|---|---|---|
| Whitstable | 5196 | WHI | 0.66 KM |
| Chestfield And Swalecliffe | 5200 | CSW | 4.39 KM |
| Canterbury West | 5007 | CBW | 9.70 KM |
Nearby Listings
| Address | Price | Type | Score | Distance |
|---|---|---|---|---|
| Argyle Road, Whitstable | £ 499,950 | BUY | 8 / 10 | 0.00 KM |
| Argyle Road, Whitstable, Kent | £ 285,000 | BUY | Unknown | 0.03 KM |
| Argyle Road, Whitstable, Kent | £ 188,500 | BUY | Unknown | 0.03 KM |
| Argyle Road, Whitstable, CT5 | £ 650,000 | BUY | 7 / 10 | 0.06 KM |
| King Edward Street, Whitstable, Kent | £ 420,000 | BUY | 6 / 10 | 0.06 KM |
Nearby Properties
| Address | Price | Distance |
|---|---|---|
| 37 Argyle Road | £ 70,000 | 0.04 KM |
| 58 Argyle Road | £ 245,000 | 0.04 KM |
| 42 Argyle Road | £ 600,000 | 0.04 KM |
| 44 Argyle Road | £ 940,000 | 0.04 KM |
| 50 Argyle Road | £ 375,000 | 0.04 KM |