92/92A Taff Street, Pontypridd, Mid Glamorgan, CF37 4SR
By Seel & Co Ltd
£ 250,000
Reviews
2 out of 5 stars
Seel & Co Ltd says ..
FOR SALE BY PUBLIC AUCTION: The auction will take place online on 6th December 2022 at 04:46 PM with registration through our website.
Property Oracle says ..
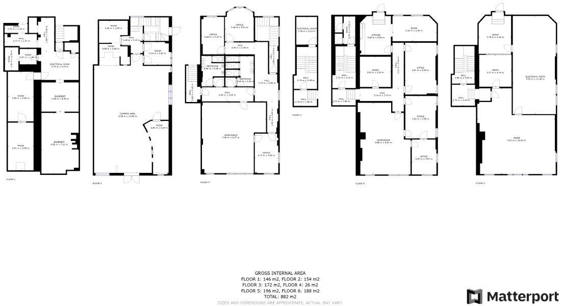
The property at 92/92A Taff Street, Pontypridd, is an end-of-terrace building situated in a central location. The property offers a substantial square footage of 9,493.77 sqft. While the location is advantageous due to its proximity to transportation and schools, the condition of the building suggests that some renovation work may be required. The lack of land or garden space may be a drawback for some buyers. The price appears reasonable when considering the size and location, but a detailed comparison with similar properties is advisable.
Therefore, we give this property 4 / 10. *Disclaimer: This is our option and does constitute a recommendation or financial advice. Do your own research. *
- Price
- 6
- Condition
- 5
- Location
- 7
- Land
- 1
- Bedrooms
- 0
- Bathrooms
- 0
- Sqft (est)
- 9,493.77
The heatmap indicates the level of crime in the area. The color of the heatmap indicates the crime severity and recency.
Metrics Year-on-Year
- Average area value
- 242,000.00 £Decreased by 4.05 %
- Est sale value
- 2,231,035.95 £Increased by 10.85 %
- Average area rental value
- 437.00 £/moDecreased by 50.79 %
- Est letting value
- 0.00 £/mo
- Est rental Yield
- 2.17 %Decreased by 48.70 %
- Crime Rate
- 112.00 %Unchanged by 0.00 %
Agent Activity
Seel & Co Ltd created the listing.
Nearby Schools
| Name | Type | Ofsted | Distance |
|---|---|---|---|
| Coedylan Primary School | Welsh Establishment | 0.57 KM | |
| Ysgol G.G. Evan James | Welsh Establishment | 0.57 KM | |
| Coedpenmaen County Primary School | Welsh Establishment | 0.93 KM | |
| Maes-Y-Coed Primary School | Welsh Establishment | 1.06 KM | |
| Trallwng Infants School | Welsh Establishment | 1.12 KM |
Images
Nearby Streets
| Name | Average Price | Average Sqft | Distance |
|---|---|---|---|
| Church Street | £ 0 | 0 | 0.00 KM |
| Court House Street | £ 0 | 0 | 0.00 KM |
| Lewis Street | £ 0 | 0 | 0.00 KM |
| Tyfica Crescent | £ 140,000 | 0 | 0.00 KM |
| Gelliwastad Road | £ 0 | 0 | 0.00 KM |
Nearby Transport
| Name | NLC | TLC | Distance |
|---|---|---|---|
| Pontypridd | 3904 | PPD | 0.20 KM |
| Trefforest | 3887 | TRF | 2.03 KM |
| Trehafod | 3888 | TRH | 4.56 KM |
| Abercynon | 3801 | ACY | 5.09 KM |
| Trefforest Estate | 3886 | TRE | 6.66 KM |
Nearby Listings
| Address | Price | Type | Score | Distance |
|---|---|---|---|---|
| 92/92A Taff Street, Pontypridd, Mid Glamorgan, CF37 4SR | £ 250,000 | BUY | 4 / 10 | 0.00 KM |
| High Street, Pontypridd, Rhondda Cynon Taff, CF37 | £ 49,995 | BUY | Unknown | 0.10 KM |
| Mill Street, Pontypridd | £ 60,000 | BUY | 5 / 10 | 0.11 KM |
| High Street, Pontypridd | £ 147,500 | BUY | 5 / 10 | 0.12 KM |
| High Street, Pontypridd | £ 149,995 | BUY | 5 / 10 | 0.12 KM |
Nearby Properties
| Address | Price | Distance |
|---|---|---|
| 5 Courthouse Street | £ 40,000 | 0.32 KM |
| 11 Courthouse Street | £ 223,000 | 0.32 KM |
| 8 Courthouse Street | £ 113,000 | 0.32 KM |
| 6 Courthouse Street | £ 106,000 | 0.32 KM |
| 2 Gelliwastad Grove | £ 249,995 | 0.34 KM |