HE
74 Sandpiper Road, Porthcawl CF36 3UT
By Herbert R Thomas
£ 367,500
Herbert R Thomas says ..
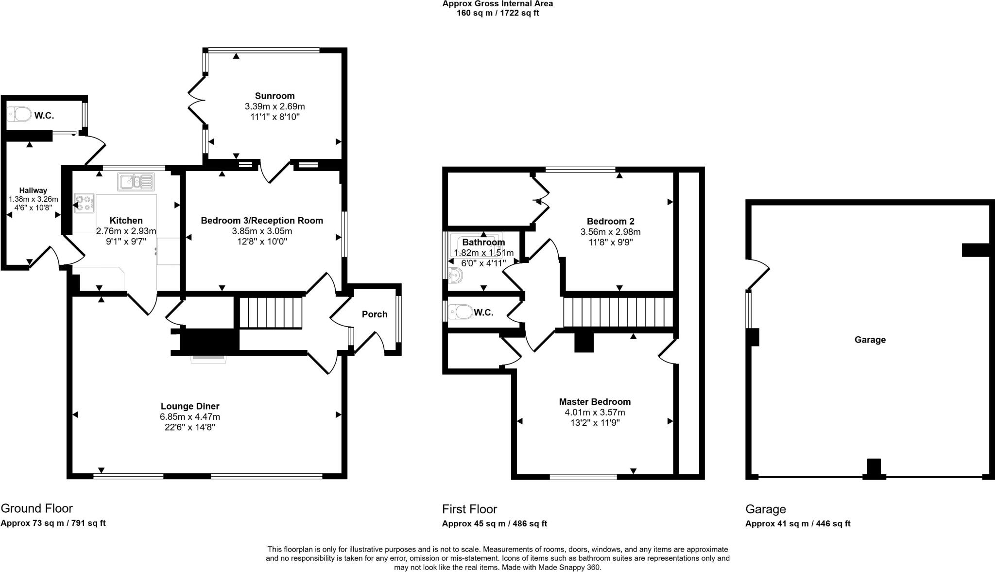
This detached bungalow with impressive garden plot and double garage is situated in the highly sought after Nottage location, close to Rest Bay Beach with great transport links via junction 37 of the M4 and bus routes and has tons of potential to extend subject to planning permission. The pr...
- Bedrooms
- 3
- Bathrooms
- 2
The heatmap indicates the level of crime in the area. The color of the heatmap indicates the crime severity and recency.
Metrics Year-on-Year
- Average area value
- 245,000.00 £Decreased by 2.53 %
- Average area rental value
- 608.00 £/moDecreased by 26.30 %
- Est rental Yield
- 2.98 %Decreased by 24.37 %
- Crime Rate
- 3.00 %Unchanged by 0.00 %
from 251,358.00 £
from 825.00 £/mo
from 3.94 %
from 3.00 %
Agent Activity
Herbert R Thomas created the listing.
Nearby Schools
| Name | Type | Ofsted | Distance |
|---|---|---|---|
| West Park Primary School | Welsh Establishment | 0.93 KM | |
| Nottage Primary School | Welsh Establishment | 1.14 KM | |
| Porthcawl Comprehensive School | Welsh Establishment | 1.18 KM | |
| Newton Primary School | Welsh Establishment | 2.50 KM | |
| Porthcawl Primary School | Welsh Establishment | 2.65 KM |
Images
Nearby Streets
| Name | Average Price | Average Sqft | Distance |
|---|---|---|---|
| Turnstone Road | £ 435,000 | 0 | 0.00 KM |
| Pintail Close | £ 0 | 0 | 0.00 KM |
| Lundy Close | £ 0 | 0 | 0.00 KM |
| Steepholm Close | £ 402,500 | 0 | 0.00 KM |
| Sanderling Close | £ 845,000 | 0 | 0.00 KM |
Nearby Transport
| Name | NLC | TLC | Distance |
|---|---|---|---|
| Pyle | 4185 | PYL | 4.42 KM |
Nearby Listings
| Address | Price | Type | Score | Distance |
|---|---|---|---|---|
| 69 Sandpiper Road, Porthcawl CF36 3UT | £ 375,000 | BUY | Unknown | 0.00 KM |
| 74 Sandpiper Road, Porthcawl CF36 3UT | £ 367,500 | BUY | Unknown | 0.00 KM |
| Sandpiper Road, Porthcawl, South Glamorgan, Bridgend (County of), CF36 | £ 435,000 | BUY | 7 / 10 | 0.00 KM |
| Sandpiper Road, Porthcawl, CF36 | £ 325,000 | BUY | 7 / 10 | 0.00 KM |
| ANGLESEY WAY, NOTTAGE, PORTHCAWL, CF36 3QP | £ 435,000 | BUY | 6 / 10 | 0.03 KM |
Nearby Properties
| Address | Price | Distance |
|---|---|---|
| 58 Sandpiper Road | £ 249,500 | 0.00 KM |
| 39 Sandpiper Road | £ 215,000 | 0.00 KM |
| 64 Sandpiper Road | £ 210,000 | 0.00 KM |
| 37 Sandpiper Road | £ 375,000 | 0.00 KM |
| 7 Spoonbill Close | £ 249,950 | 0.09 KM |