St. Edmunds Terrace, Greenfield Road, Bryn Celyn, Holywell, CH8
By William Gleave
£ 160,000
Reviews
2 out of 5 stars
William Gleave says ..
CHARACTER PROPERTY | VIEWS OVER GREENFIELD VALLEY | SPACIOUS LIVING ACCOMMODATION | DETACHED GARAGE A characterful Victorian terrace offering spacious accommodation, high ceilings throughout and plenty of potential to modernise and create a stunning home in a sought-after position over...
Property Oracle says ..
This is a terraced property located in Greenfield, Holywell. It features two bedrooms and one bathroom. The property requires renovation, with dated decor and signs of wear and tear throughout. It includes a small garden and a garage. The location offers access to local schools and amenities. The asking price of £160,000 appears reasonable given the condition and size of the property, making it a potential investment for those willing to undertake renovations.
Therefore, we give this property 5 / 10. *Disclaimer: This is our option and does constitute a recommendation or financial advice. Do your own research. *
- Price
- 7
- Condition
- 3
- Location
- 6
- Land
- 4
- Bedrooms
- 2
- Bathrooms
- 1
- Sqft (est)
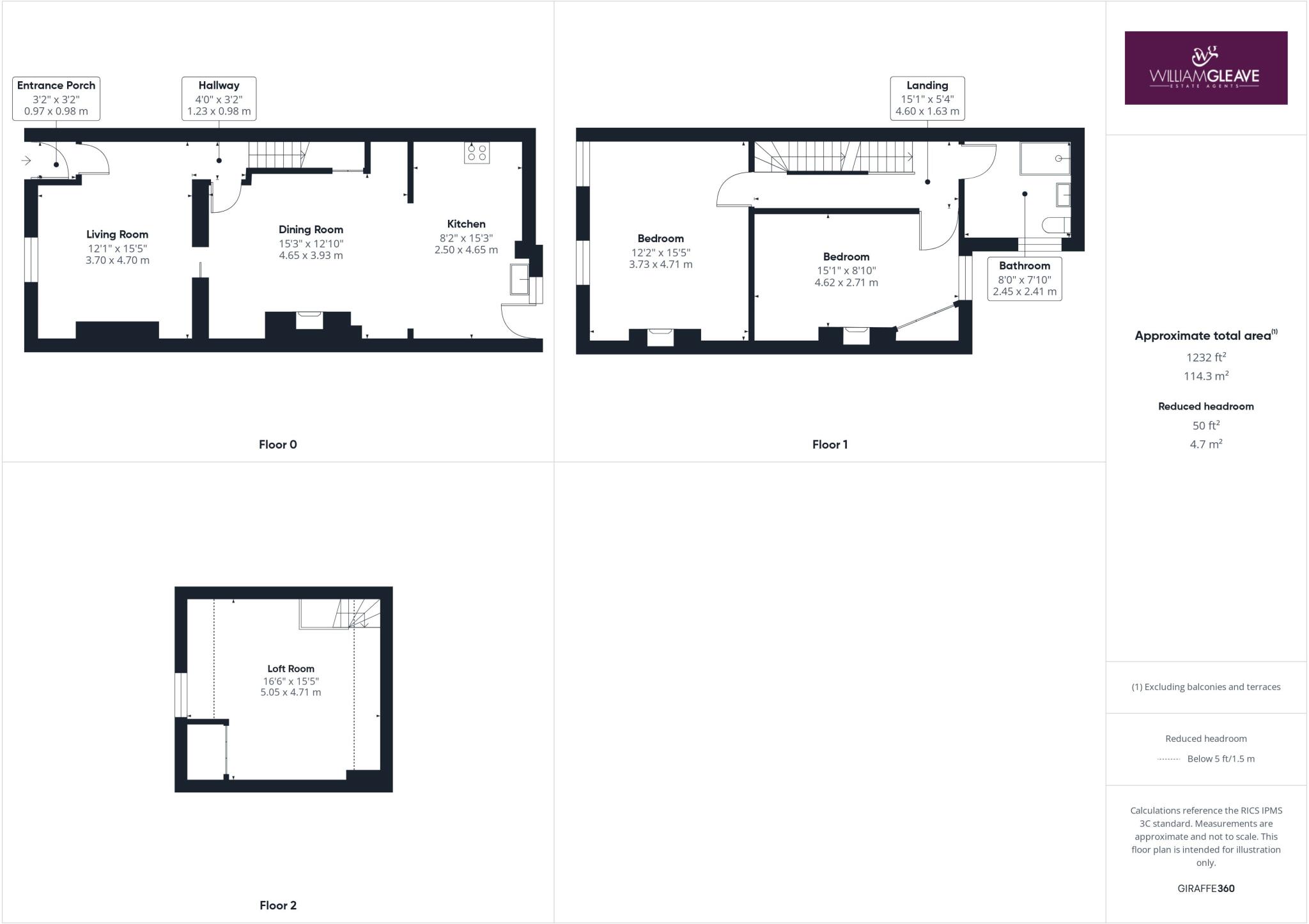
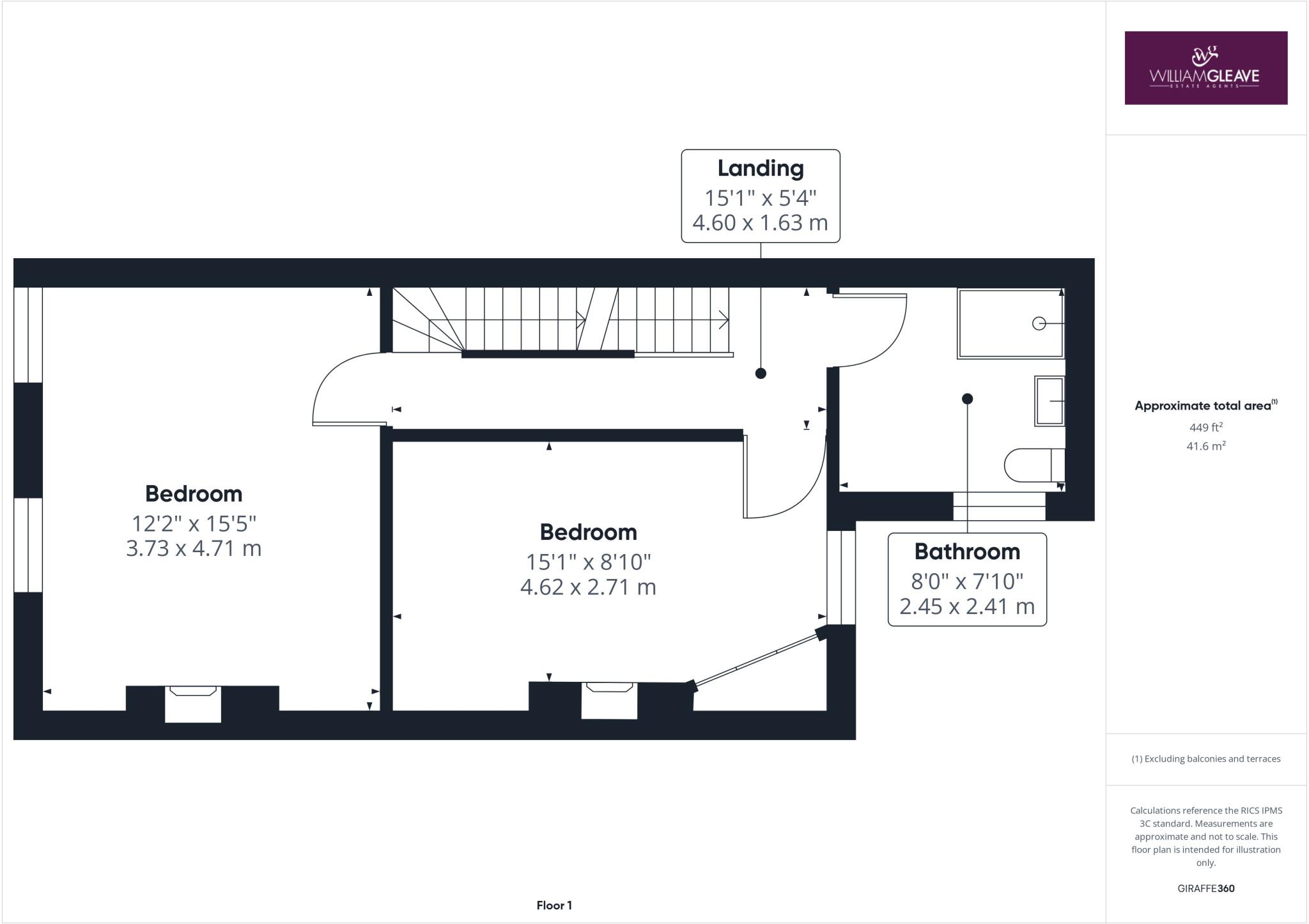
- 234.65
The heatmap indicates the level of crime in the area. The color of the heatmap indicates the crime severity and recency.
Metrics Year-on-Year
- Average area value
- 243,333.00 £Increased by 2.42 %
- Est sale value
- 58,897.15 £Decreased by 0.40 %
- Average area rental value
- 825.00 £/moDecreased by 8.13 %
- Est letting value
- 0.00 £/mo
- Est rental Yield
- 4.07 %Decreased by 10.35 %
- Crime Rate
- 1.00 %Unchanged by 0.00 %
Agent Activity
William Gleave created the listing.
Nearby Schools
| Name | Type | Ofsted | Distance |
|---|---|---|---|
| Greenfield C.P. School | Welsh Establishment | 0.58 KM | |
| Ysgol Treffynnon | Welsh Establishment | 0.64 KM | |
| St Winefrides R.C. School | Welsh Establishment | 1.36 KM | |
| Ysgol Gwenffrwd | Welsh Establishment | 1.40 KM | |
| Brynford C.P. School | Welsh Establishment | 2.75 KM |
Images
Nearby Streets
| Name | Average Price | Average Sqft | Distance |
|---|---|---|---|
| Bryn Celyn | £ 0 | 0 | 0.00 KM |
| Greenfield Road | £ 95,000 | 0 | 0.00 KM |
| Queen's Road | £ 130,000 | 0 | 0.00 KM |
| The Close | £ 149,950 | 0 | 0.00 KM |
| Tan-y-Bryn | £ 0 | 0 | 0.00 KM |
Nearby Listings
| Address | Price | Type | Score | Distance |
|---|---|---|---|---|
| St. Edmunds Terrace, Greenfield Road, Bryn Celyn, Holywell, CH8 | £ 160,000 | BUY | 5 / 10 | 0.00 KM |
| Bryn Celyn, Holywell | £ 425,000 | BUY | 7 / 10 | 0.14 KM |
| Greenfield Road, Greenfield, Holywell, Flintshire, CH8 | £ 225,000 | BUY | Unknown | 0.15 KM |
| Holywell, Flintshire, CH8 7QF | £ 299,995 | BUY | 7 / 10 | 0.17 KM |
| Old Quay, Greenfield Road, Holywell, Flintshire, CH8 | £ 150,000 | BUY | 7 / 10 | 0.25 KM |
Nearby Properties
| Address | Price | Distance |
|---|---|---|
| 7 Llys Y Berllan | £ 225,000 | 0.19 KM |
| 5 Llys Y Berllan | £ 310,000 | 0.19 KM |
| 6 Llys Y Berllan | £ 92,500 | 0.19 KM |
| 8 Meadow Villas | £ 135,000 | 0.20 KM |
| 4 Meadow Villas | £ 119,950 | 0.20 KM |