Pinewood Park, Farnborough, Hampshire, GU14
By Bridges Estate Agents
£ 340,000
Reviews
3 out of 5 stars
Bridges Estate Agents says ..
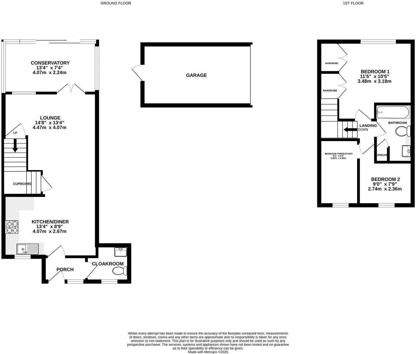
A well presented two bedroom family home situated in a peaceful setting in the popular Pinewood Park development. Benefitting from a woodland frontage and corner plot positioning the property is a must see. The ground floor compromises from a porchway entrance and cloakroom, a well desi...
Property Oracle says ..
This property is a 3-bedroom end of terrace house located in Pinewood Park, Farnborough. The location benefits from being close to several primary schools, including Guillemont Junior School (0.12km) and Pinewood Infant School (0.37km), both rated as “Good” by Ofsted. There are also several secondary schools within a reasonable distance. The property also has good transport links with several train stations within approximately 4km. The property itself appears to be well-maintained and modernised, with a contemporary kitchen and bathroom. It includes a garden, which is a desirable feature. The list price of £340,000 is lower than the average house price in the area (£512,294), and significantly lower than the average price per sqft (£371.00). However, comparable properties in the area are not available to provide a more precise evaluation of the price.
Therefore, we give this property 7 / 10. *Disclaimer: This is our option and does constitute a recommendation or financial advice. Do your own research. *
- Price
- 7
- Condition
- 9
- Location
- 8
- Land
- 7
- Bedrooms
- 3
- Bathrooms
- 1
- Sqft (est)
- 888.88
The heatmap indicates the level of crime in the area. The color of the heatmap indicates the crime severity and recency.
Metrics Year-on-Year
- Average area value
- 413,623.00 £Decreased by 6.20 %
- Est sale value
- 439,106.72 £Increased by 32.09 %
- Average area rental value
- 1,217.00 £/moDecreased by 13.57 %
- Est letting value
- 888.88 £/moUnchanged by 0.00 %
- Est rental Yield
- 3.53 %Decreased by 7.83 %
- Crime Rate
- 12.00 %Unchanged by 0.00 %
Agent Activity
Bridges Estate Agents created the listing.
Nearby Schools
| Name | Type | Ofsted | Distance |
|---|---|---|---|
| Guillemont Junior School | Community School | Good | 0.12 KM |
| Pinewood Infant School | Community School | Good | 0.37 KM |
| Parsonage Farm Nursery And Infant School | Community School | Outstanding | 0.86 KM |
| Cove Infant School | Community School | Requires improvement | 1.27 KM |
| Cove School | Foundation School | Good | 1.29 KM |
Images
Nearby Streets
| Name | Average Price | Average Sqft | Distance |
|---|---|---|---|
| Martins Park | £ 67,500 | 0 | 0.00 KM |
| Nihtjar Close | £ 219,950 | 0 | 0.00 KM |
| Darby Close | £ 0 | 0 | 0.00 KM |
| Rhine Banks | £ 0 | 0 | 0.00 KM |
| Hawley Place Gardens | £ 430,000 | 0 | 0.00 KM |
Nearby Transport
| Name | NLC | TLC | Distance |
|---|---|---|---|
| Blackwater | 5625 | BAW | 3.08 KM |
| Farnborough (Main) | 5521 | FNB | 3.91 KM |
| Frimley | 5683 | FML | 4.73 KM |
| Sandhurst (Berks) | 5646 | SND | 4.74 KM |
| Fleet | 5522 | FLE | 4.92 KM |
Nearby Listings
| Address | Price | Type | Score | Distance |
|---|---|---|---|---|
| Pinewood Park, Farnborough, Hampshire, GU14 | £ 340,000 | BUY | 7 / 10 | 0.00 KM |
| Pinewood Park, Farnborough, Hampshire, GU14 | £ 350,000 | BUY | 7 / 10 | 0.04 KM |
| Bartons Way, Farnborough | £ 135,000 | BUY | 6 / 10 | 0.08 KM |
| Pinewood Park, Farnborough, Hampshire, GU14 | £ 225,000 | BUY | Unknown | 0.13 KM |
| Pinewood Park, Farnborough, Hampshire, GU14 | £ 215,000 | BUY | 5 / 10 | 0.14 KM |
Nearby Properties
| Address | Price | Distance |
|---|---|---|
| 448 Pinewood Park | £ 105,000 | 0.12 KM |
| 389 Pinewood Park | £ 198,000 | 0.12 KM |
| 434 Pinewood Park | £ 280,000 | 0.12 KM |
| 367 Pinewood Park | £ 165,000 | 0.12 KM |
| 383 Pinewood Park | £ 103,500 | 0.12 KM |