Morland Avenue, Stoneygate, Leicester
KN

Morland Avenue, Stoneygate, Leicester

By Knightsbridge Estate Agents & Valuers

£ 750,000

Reviews

3 out of 5 stars

Knightsbridge Estate Agents & Valuers says ..

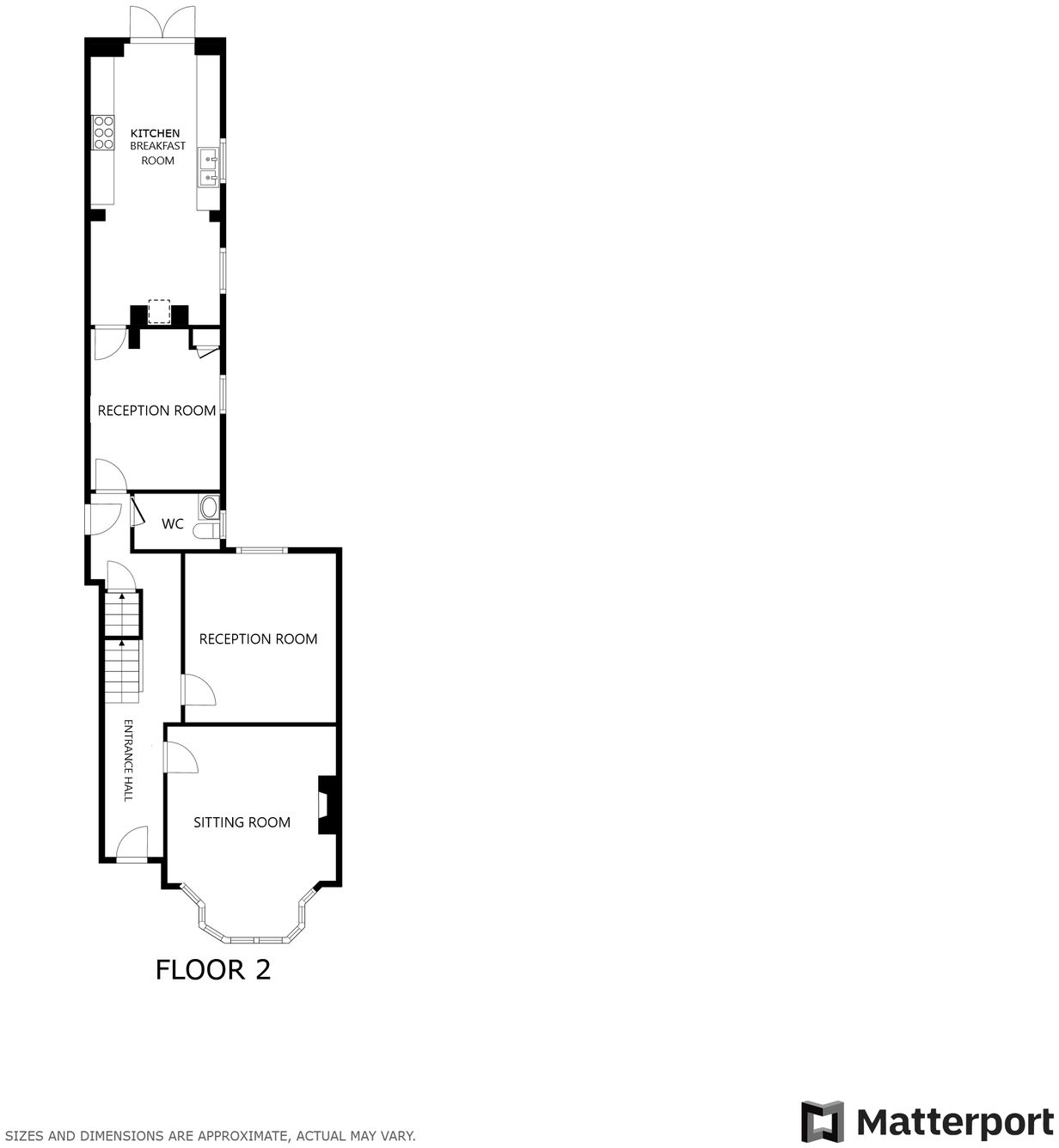
A SIX BEDROOM traditional style semi-detached property having GENEROUS SIZED accommodation over three floors to include a cellar. Enjoying much of its ORIGINAL CHARACTER with period features.

Property Oracle says ..

The property is located in Stoneygate, Leicester, a desirable area known for its high-quality housing stock and proximity to excellent schools and amenities. The area benefits from good transport links to Leicester city centre and beyond. The images show a well-maintained property with a good-sized garden, suggesting a high level of land. The property appears to be in good condition, with no obvious signs of significant repair or renovation needs. However, the relatively small square footage (640 sqft) compared to the average for the area (1154 sqft) and the high list price (£750,000) compared to the average (£387,240) warrants further investigation. The average price per square foot in the area is £335. While the property’s features and location justify a premium, the list price is significantly higher than what one might expect based on the square footage alone. Further analysis of comparable properties in the immediate vicinity is needed to determine the reasonableness of the list price. The property has a period feel and appears to be well maintained.

Therefore, we give this property 7 / 10. *Disclaimer: This is our option and does constitute a recommendation or financial advice. Do your own research. *

Price
6
Condition
8
Location
9
Land
7
Bedrooms
6
Bathrooms
1
Sqft (est)
640.00

The heatmap indicates the level of crime in the area. The color of the heatmap indicates the crime severity and recency.

Metrics Year-on-Year

Average area value
404,688.00 £
Increased by 2.85 %
from 393,475.00 £
Est sale value
236,160.00 £
Increased by 17.52 %
from 200,960.00 £
Average area rental value
788.00 £/mo
Decreased by 23.79 %
from 1,034.00 £/mo
Est letting value
0.00 £/mo
from 0.00 £/mo
Est rental Yield
2.34 %
Decreased by 25.71 %
from 3.15 %
Crime Rate
0.00 %
from 0.00 %

Agent Activity

  • Knightsbridge Estate Agents & Valuers created the listing.

Nearby Schools

NameTypeOfstedDistance
Leicester High School For GirlsOther Independent School0.11 KM
Leicester Islamic AcademyOther Independent SchoolGood1.33 KM
St Thomas More Catholic Voluntary AcademyAcademy Converter1.39 KM
Leicester Partnership SchoolPupil Referral UnitGood1.45 KM
Leicester Preparatory SchoolOther Independent School1.46 KM

Images

Sitting Room Kitchen Breakfast Room Entrance Hall Ground Floor WC Sitting Room Sitting Room Reception Room Two Reception Room Two Reception Room Three Reception Room Three Reception Room Three Kitchen Breakfast Room Kitchen Breakfast Room Kitchen Breakfast Room Kitchen Breakfast Room Kitchen Breakfast Room Second Floor Landing Bedroom One Bedroom One Bedroom One Bedroom Two Bedroom Three Bathroom Bathroom Bathroom Separate WC Bedroom Four Bedroom Four Bedroom Four Bedroom Five Bedroom Five Bedroom Six Bedroom Six

Nearby Streets

NameAverage PriceAverage SqftDistance
Knighton Grange Road £ 129,95000.00 KM
The Orchard £ 000.00 KM
St. David's Crescent £ 000.00 KM
Stoughton Avenue £ 000.00 KM
Francis Walk £ 000.00 KM

Nearby Transport

NameNLCTLCDistance
Leicester1947LEI3.82 KM
South Wigston1949SWS4.98 KM
Syston1900SYS9.58 KM

Nearby Listings

AddressPriceTypeScoreDistance
Morland Avenue, Stoneygate, Leicester £ 750,000BUY7 / 100.00 KM
Morland Avenue, Stoneygate, Leicester, LE2 £ 875,000BUY8 / 100.10 KM
London Road, Leicester £ 180,000BUYUnknown0.11 KM
London Road, Leicester, Leicestershire, LE2 £ 150,000BUY6 / 100.11 KM
Hendon Grange, Leicester £ 172,000BUY6 / 100.12 KM

Nearby Properties

AddressPriceDistance
41 Morland Avenue £ 550,0000.10 KM
466 London Road £ 470,0000.11 KM
444 London Road £ 82,0000.11 KM
450 London Road £ 192,0000.11 KM
452 London Road £ 210,0000.11 KM