Jardine Place, Bracknell, Berkshire, RG12
By Prospect Estate Agency
£ 350,000
Reviews
3 out of 5 stars
Prospect Estate Agency says ..
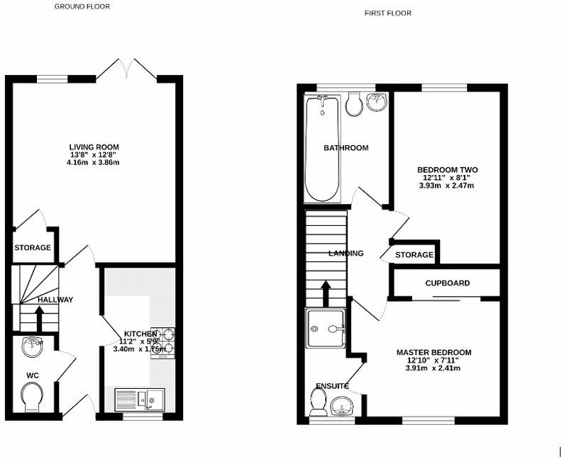
This well presented end of terrace home is located on the popular Wykery Copse Development. This home is in prime location between Bracknell and Wokingham and has no onward chain complications. Interanlly, the property benefits from a kitchen in good condition, a downstairs cloakroom, ...
Property Oracle says ..
This two-bedroom end-of-terrace house in Bracknell, Berkshire, presents a mixed bag. The property’s location is advantageous, offering relatively easy access to transport links and schools, despite lacking details about the proximity to day-to-day amenities. The internal condition is acceptable; however, the property could benefit from some cosmetic improvements in certain rooms. The property has a small garden, but its size may be limiting for some buyers. The price of £350,000 seems to be within the general range of similar properties in the area, but precise comparison is difficult due to unavailable data on price per sqft. Further research and a physical viewing are advised to gain a comprehensive understanding of the property’s value and suitability for potential buyers.
Therefore, we give this property 6 / 10. *Disclaimer: This is our option and does constitute a recommendation or financial advice. Do your own research. *
- Price
- 7
- Condition
- 6
- Location
- 7
- Land
- 4
- Bedrooms
- 2
- Bathrooms
- 2
- Sqft (est)
- 843.57
The heatmap indicates the level of crime in the area. The color of the heatmap indicates the crime severity and recency.
Metrics Year-on-Year
- Average area value
- 561,863.00 £Decreased by 2.75 %
- Est sale value
- 568,566.18 £Increased by 15.21 %
- Average area rental value
- 3,222.00 £/moIncreased by 22.09 %
- Est letting value
- 2,530.71 £/moIncreased by 50.00 %
- Est rental Yield
- 6.88 %Increased by 25.55 %
- Crime Rate
- 9.00 %Unchanged by 0.00 %
Agent Activity
Prospect Estate Agency marked this listing as sold.
Prospect Estate Agency created the listing.
Nearby Schools
| Name | Type | Ofsted | Distance |
|---|---|---|---|
| Jennett'S Park Cofe Primary School | Academy Sponsor Led | 1.03 KM | |
| Easthampstead Park Community School | Community School | Good | 1.35 KM |
| Newbold School | Other Independent School | Good | 1.47 KM |
| Great Hollands Primary School | Academy Sponsor Led | 1.50 KM | |
| King'S Academy Binfield | Free Schools | 1.55 KM |
Images
Nearby Streets
| Name | Average Price | Average Sqft | Distance |
|---|---|---|---|
| Harrier Way cycle path (north) | £ 430,000 | 0 | 0.00 KM |
| Redwing Place | £ 0 | 0 | 0.00 KM |
| Kings Quarter Queens Quarter | £ 0 | 0 | 0.00 KM |
| Ringmead | £ 0 | 0 | 0.00 KM |
| Queens Quarter | £ 303,000 | 0 | 0.00 KM |
Nearby Transport
| Name | NLC | TLC | Distance |
|---|---|---|---|
| Bracknell | 5693 | BCE | 3.32 KM |
| Martins Heron | 5692 | MAO | 6.34 KM |
| Crowthorne | 5628 | CRN | 6.42 KM |
| Wokingham | 5696 | WKM | 6.74 KM |
| Sandhurst (Berks) | 5646 | SND | 7.53 KM |
Nearby Listings
| Address | Price | Type | Score | Distance |
|---|---|---|---|---|
| Jardine Place, Bracknell, Berkshire, RG12 | £ 66,000 | BUY | Unknown | 0.00 KM |
| Jardine Place, Bracknell, Berkshire, RG12 | £ 350,000 | BUY | 6 / 10 | 0.00 KM |
| Jardine Place, Bracknell, Berkshire, RG12 | £ 220,000 | BUY | 6 / 10 | 0.00 KM |
| Jardine Place, Bracknell, Berkshire | £ 550,000 | BUY | 7 / 10 | 0.00 KM |
| Jardine Place, Bracknell | £ 495,000 | BUY | 7 / 10 | 0.00 KM |
Nearby Properties
| Address | Price | Distance |
|---|---|---|
| 8 Jardine Place | £ 407,500 | 0.01 KM |
| 1 Jardine Place | £ 375,000 | 0.01 KM |
| 19 Lucas Place | £ 345,000 | 0.10 KM |
| 5 Capercaillie Close | £ 335,000 | 0.15 KM |
| 11 Capercaillie Close | £ 360,000 | 0.15 KM |