Deakins Mill Way, Egerton, Bolton, Lancashire, BL7
By Newton & Co Ltd
£ 425,000
Reviews
3 out of 5 stars
Newton & Co Ltd says ..
A Serene Sanctuary Backing Onto Woodland and Eagley Brook
Property Oracle says ..
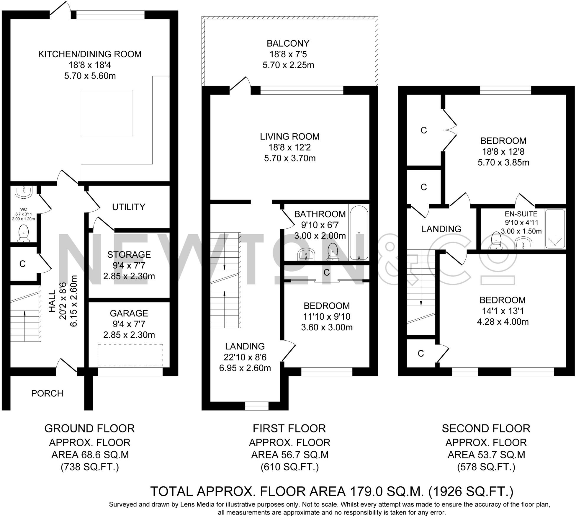
This three-bedroom, two-bathroom townhouse located in Egerton, Bolton, presents a modern and well-maintained property. The interior boasts a contemporary open-plan kitchen/living area, a stylish kitchen with integrated appliances, and bedrooms with built-in storage. The property benefits from a private, terraced garden with artificial turf and a patio area, ideal for outdoor relaxation. The location is a plus, with highly-rated primary schools such as Walmsley Cofe Primary School and Egerton Primary School nearby. Bromley Cross train station provides convenient access to public transportation. While the immediate area might lack extensive shopping amenities, its proximity to Bromley Cross compensates for this. The property’s list price appears reasonably competitive within the context of the available local market data, though more detailed information on comparable properties would allow for a more precise valuation. Potential buyers should consider the artificial turf in the garden and the relatively small plot size, which could be a factor for some buyers. Overall, this townhouse offers a modern living space in a desirable location with good access to schools and transportation, making it an attractive option for families or professionals.
Therefore, we give this property 6 / 10. *Disclaimer: This is our option and does constitute a recommendation or financial advice. Do your own research. *
- Price
- 7
- Condition
- 8
- Location
- 7
- Land
- 4
- Bedrooms
- 3
- Bathrooms
- 2
- Sqft (est)
- 1,926.00
The heatmap indicates the level of crime in the area. The color of the heatmap indicates the crime severity and recency.
Metrics Year-on-Year
- Average area value
- 301,279.00 £Decreased by 4.72 %
- Est sale value
- 473,796.00 £Decreased by 15.17 %
- Average area rental value
- 988.00 £/moDecreased by 5.73 %
- Est letting value
- 0.00 £/mo
- Est rental Yield
- 3.94 %Decreased by 1.01 %
- Crime Rate
- 0.00 %
Agent Activity
Newton & Co Ltd created the listing.
Nearby Schools
| Name | Type | Ofsted | Distance |
|---|---|---|---|
| Walmsley Cofe Primary School | Voluntary Aided School | Outstanding | 0.58 KM |
| Egerton Primary School | Community School | Good | 0.95 KM |
| High Lawn Primary School | Community School | Good | 2.08 KM |
| St John The Evangelist Rc Primary School, Bromley Cross, Bolton | Voluntary Aided School | Good | 2.12 KM |
| Oldhams Start Well Link Site | Children's Centre Linked Site | 2.28 KM |
Images
Nearby Streets
| Name | Average Price | Average Sqft | Distance |
|---|---|---|---|
| Woodland Grove | £ 550,000 | 0 | 0.00 KM |
| Alfred Street | £ 0 | 0 | 0.00 KM |
| James Street | £ 0 | 0 | 0.00 KM |
| Back Albert Street | £ 0 | 0 | 0.00 KM |
| Howarths Fold | £ 1,650,000 | 0 | 0.00 KM |
Nearby Transport
| Name | NLC | TLC | Distance |
|---|---|---|---|
| Bromley Cross (Lancs) | 2697 | BMC | 3.76 KM |
| Hall-I'-Th'-Wood | 2572 | HID | 4.52 KM |
| Entwistle | 2747 | ENT | 4.64 KM |
| Bolton | 2599 | BON | 5.99 KM |
| Lostock | 2598 | LOT | 8.13 KM |
Nearby Listings
| Address | Price | Type | Score | Distance |
|---|---|---|---|---|
| Deakins Mill Way, Egerton, Bolton, Lancashire, BL7 | £ 425,000 | BUY | 6 / 10 | 0.00 KM |
| Deakins Mill Way, Egerton, Bolton, BL7 | £ 365,000 | BUY | 6 / 10 | 0.09 KM |
| Deakins Mill Way, Egerton, Bolton, Greater Manchester, BL7 9YX | £ 230,000 | BUY | 6 / 10 | 0.13 KM |
| The Cotton Buildings, Deakins Mill Way, BL7 | £ 110,000 | BUY | 5 / 10 | 0.16 KM |
| The Hall Coppice, Bolton, BL7 | £ 325,000 | BUY | 6 / 10 | 0.16 KM |
Nearby Properties
| Address | Price | Distance |
|---|---|---|
| 79 Deakins Mill Way | £ 375,000 | 0.09 KM |
| 44 Deakins Mill Way | £ 331,000 | 0.09 KM |
| 69 Deakins Mill Way | £ 280,000 | 0.09 KM |
| 92 Deakins Mill Way | £ 410,000 | 0.09 KM |
| 75 Deakins Mill Way | £ 285,000 | 0.09 KM |