CH
Nevern Square, Earls Court, SW5
By Chestertons Estate Agents
£ 9,000
Chestertons Estate Agents says ..
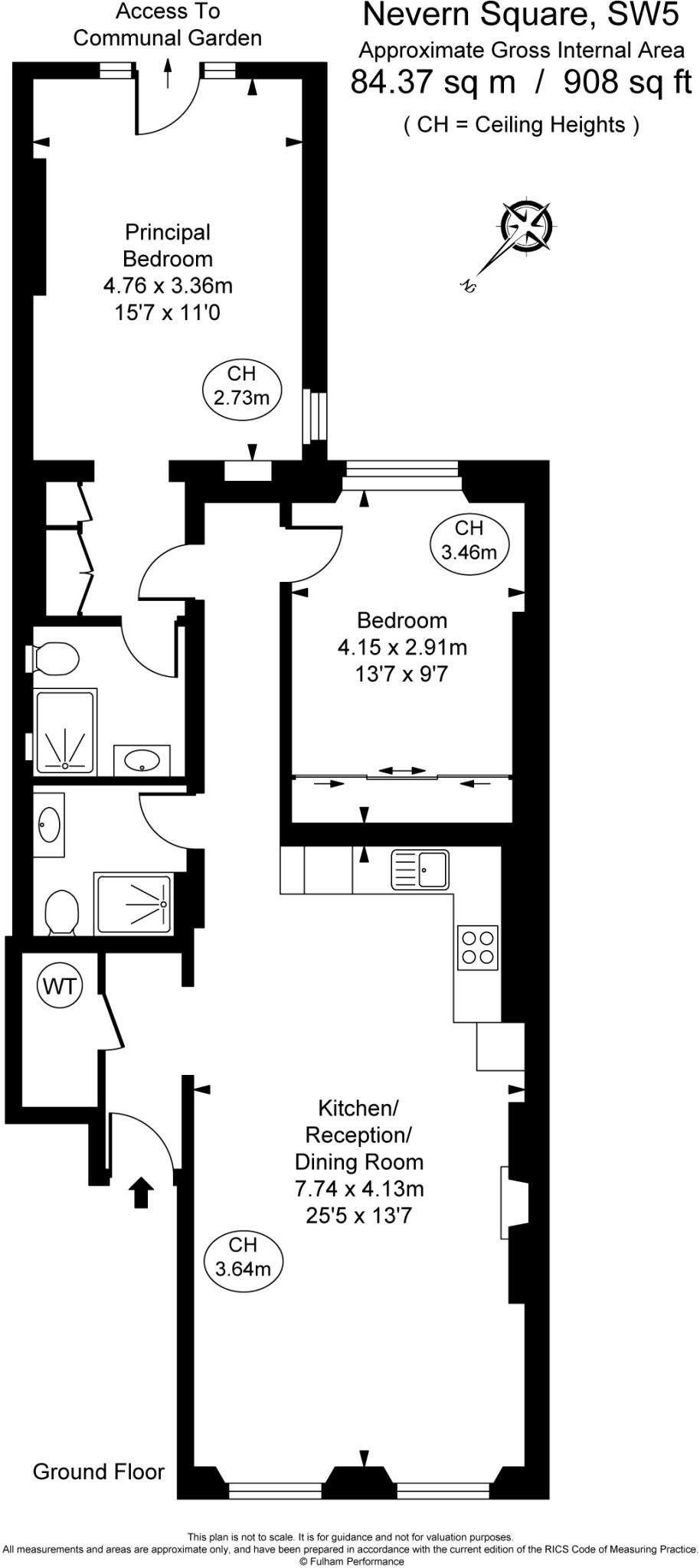
This property has undergone an extensive renovation and has been tastefully decorated throughout. The property boasts a spacious o pen plan kitchen reception with all integrated appliances (full size fridge freezer, dishwasher and cooker).
- Bedrooms
- 2
- Bathrooms
- 2
The heatmap indicates the level of crime in the area. The color of the heatmap indicates the crime severity and recency.
Metrics Year-on-Year
- Average area value
- 1,927,500.00 £Increased by 42.81 %
- Average area rental value
- 2,284.00 £/moIncreased by 3.72 %
- Est rental Yield
- 1.42 %Decreased by 27.55 %
- Crime Rate
- 10.00 %Unchanged by 0.00 %
from 1,349,731.00 £
from 2,202.00 £/mo
from 1.96 %
from 10.00 %
Agent Activity
Chestertons Estate Agents created the listing.
Nearby Schools
| Name | Type | Ofsted | Distance |
|---|---|---|---|
| Snowflake School | Other Independent Special School | Outstanding | 0.24 KM |
| St Cuthbert With St Matthias Ce Primary School And Earl'S Court Children'S Centre | Children's Centre | 0.37 KM | |
| St Cuthbert With St Matthias Cofe Primary School | Voluntary Aided School | Good | 0.37 KM |
| St Barnabas And St Philip'S Cofe Primary School | Voluntary Aided School | Outstanding | 0.72 KM |
| The Fulham Boys School | Free Schools | Good | 0.80 KM |
Images
Nearby Streets
| Name | Average Price | Average Sqft | Distance |
|---|---|---|---|
| Kempsford Gardens | £ 0 | 0 | 0.00 KM |
| Old Brompton Road | £ 0 | 0 | 0.00 KM |
| West Road | £ 0 | 0 | 0.00 KM |
| Wharfedale Street | £ 0 | 0 | 0.00 KM |
| Thaxton Road | £ 0 | 0 | 0.00 KM |
Nearby Transport
| Name | NLC | TLC | Distance |
|---|---|---|---|
| West Brompton | 8875 | WBP | 0.50 KM |
| Kensington (Olympia) | 3092 | KPA | 1.71 KM |
| Imperial Wharf | 9586 | IMW | 2.37 KM |
| Shepherd'S Bush | 9587 | SPB | 2.82 KM |
| Wandsworth Town | 5576 | WNT | 3.51 KM |
Nearby Listings
| Address | Price | Type | Score | Distance |
|---|---|---|---|---|
| Nevern Square, Earls Court, SW5 | £ 6,500 | RENT | Unknown | 0.00 KM |
| Nevern Square, Earls Court, SW5 | £ 6,500 | RENT | Unknown | 0.00 KM |
| Nevern Square, Earls Court, SW5 | £ 9,000 | RENT | Unknown | 0.00 KM |
| Nevern Square, SW5 | £ 2,250 | RENT | Unknown | 0.01 KM |
| Nevern Square, SW5 | £ 1,500 | RENT | Unknown | 0.01 KM |
Nearby Properties
| Address | Price | Distance |
|---|---|---|
| 27j Nevern Square | £ 450,000 | 0.01 KM |
| 27c Nevern Square | £ 290,000 | 0.01 KM |
| 23f Nevern Square | £ 250,000 | 0.01 KM |
| 27l Nevern Square | £ 532,000 | 0.01 KM |
| 27g Nevern Square | £ 542,500 | 0.01 KM |