Meadowcroft, Hillcrest, Collingham, Wetherby
By Monroe Estate Agents
£ 799,999
Reviews
3 out of 5 stars
Monroe Estate Agents says ..
Are you in search of a breathtaking bungalow that boasts exceptional presentation, perched perfectly at the top of Collingham?
Property Oracle says ..
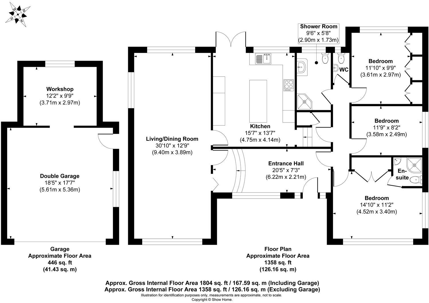
Meadowcroft is a detached bungalow located in the sought-after village of Collingham. The property features three bedrooms and two bathrooms. The interior is modern and well-maintained, with a recently updated kitchen and bathrooms. The property benefits from a good-sized garden. While the asking price is slightly above the average for the area, the condition and location may justify the premium. The property is located close to local schools and amenities, making it an ideal family home. The property is modern and doesn’t appear to need any immediate work.
Therefore, we give this property 7 / 10. *Disclaimer: This is our option and does constitute a recommendation or financial advice. Do your own research. *
- Price
- 6
- Condition
- 8
- Location
- 7
- Land
- 7
- Bedrooms
- 3
- Bathrooms
- 2
The heatmap indicates the level of crime in the area. The color of the heatmap indicates the crime severity and recency.
Metrics Year-on-Year
- Average area value
- 638,145.00 £Decreased by 11.86 %
- Average area rental value
- 2,478.00 £/moIncreased by 57.03 %
- Est rental Yield
- 4.66 %Increased by 77.86 %
- Crime Rate
- 44.00 %Unchanged by 0.00 %
Agent Activity
Monroe Estate Agents created the listing.
Nearby Schools
| Name | Type | Ofsted | Distance |
|---|---|---|---|
| Collingham Lady Elizabeth Hastings Church Of England Voluntary Aided Primary School | Voluntary Aided School | Good | 1.98 KM |
| Bardsey Primary School | Foundation School | Good | 2.61 KM |
| Sicklinghall Community Primary School | Community School | Good | 3.35 KM |
| Spofforth Church Of England Controlled Primary School | Voluntary Controlled School | Good | 5.46 KM |
| Thorner Church Of England Primary School | Academy Converter | 5.49 KM |
Images
Nearby Streets
| Name | Average Price | Average Sqft | Distance |
|---|---|---|---|
| South View | £ 435,000 | 0 | 0.00 KM |
| Paddock View | £ 575,000 | 0 | 0.00 KM |
| The Brambles | £ 560,000 | 0 | 0.00 KM |
| Johnson Crescent | £ 0 | 0 | 0.00 KM |
Nearby Listings
| Address | Price | Type | Score | Distance |
|---|---|---|---|---|
| Meadowcroft, Hillcrest, Collingham, Wetherby | £ 799,999 | BUY | 7 / 10 | 0.00 KM |
| Hillcrest, Collingham, Wetherby, LS22 | £ 795,000 | BUY | 7 / 10 | 0.00 KM |
| Hillcrest, Collingham, Wetherby, LS22 | £ 795,000 | BUY | 7 / 10 | 0.00 KM |
| Hillcrest, Collingham, Wetherby, West Yorkshire | £ 675,000 | BUY | 7 / 10 | 0.08 KM |
| Upper Langwith, Collingham, Wetherby | £ 750,000 | BUY | 7 / 10 | 0.14 KM |
Nearby Properties
| Address | Price | Distance |
|---|---|---|
| Hillcrest House | £ 625,000 | 0.03 KM |
| Fernside | £ 325,000 | 0.03 KM |
| Rosebank | £ 400,000 | 0.03 KM |
| Hillside | £ 525,000 | 0.03 KM |
| Wharfe Ghyll | £ 300,000 | 0.03 KM |