Country Holmes says ..
Country Holmes offer this fabulous cottage with huge potential, full of characterful features, stone floors, exposed beams, period fireplace and vaulted ceilings but to name a few. Situated in the ever popular village of Padfield the cottage comprises; large living area, kitchen, dining room, ...
Property Oracle says ..
This property is a charming semi-detached house located in Padfield, Derbyshire. It benefits from a convenient location, close to local primary schools and train stations. The property itself is a period property that has character and charm, however, it is in need of some modernisation and updating. The asking price of £350,000 seems slightly high compared to the average price per square foot in the area, but this could be justified by the unique character of the property and its desirable location. The small garden adds to the appeal, though it is not extensive.
Therefore, we give this property 6 / 10. *Disclaimer: This is our option and does constitute a recommendation or financial advice. Do your own research. *
- Price
- 6
- Condition
- 6
- Location
- 8
- Land
- 4
- Bedrooms
- 2
- Bathrooms
- 1
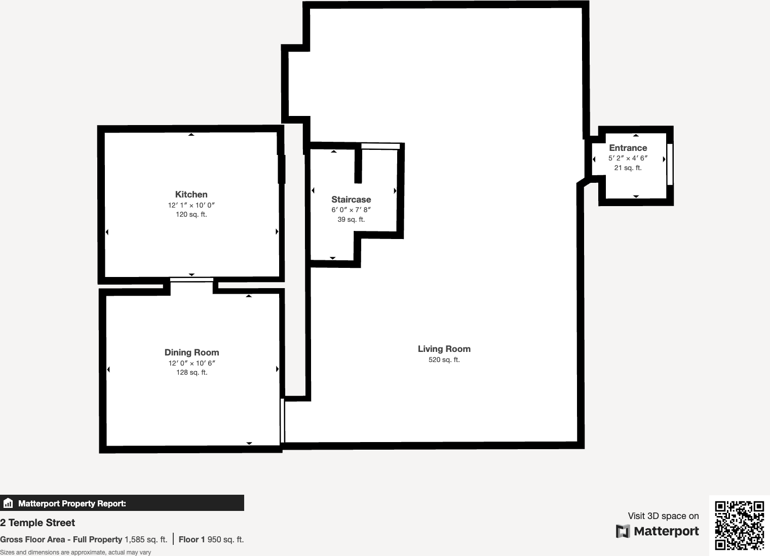
- Sqft (est)
- 950.00
- Lot (est)
- 1,585.00
The heatmap indicates the level of crime in the area. The color of the heatmap indicates the crime severity and recency.
Metrics Year-on-Year
- Average area value
- 334,167.00 £Increased by 24.23 %
- Est sale value
- 244,150.00 £Decreased by 19.44 %
- Average area rental value
- 1,252.00 £/moIncreased by 4.33 %
- Est letting value
- 0.00 £/moDecreased by 100.00 %
- Est rental Yield
- 4.50 %Decreased by 15.89 %
- Crime Rate
- 12.00 %Unchanged by 0.00 %
Agent Activity
Country Holmes created the listing.
Nearby Schools
| Name | Type | Ofsted | Distance |
|---|---|---|---|
| Padfield Community Primary School | Community School | Good | 0.21 KM |
| Hadfield Children'S Centre | Children's Centre | 1.58 KM | |
| Hadfield Nursery School | Local Authority Nursery School | Outstanding | 1.74 KM |
| St Luke'S Cofe Primary School | Voluntary Controlled School | Good | 1.74 KM |
| St Andrew'S Cofe Junior School | Voluntary Controlled School | Good | 1.80 KM |
Images
Nearby Streets
| Name | Average Price | Average Sqft | Distance |
|---|---|---|---|
| Peel Street | £ 0 | 0 | 0.00 KM |
| Railway Street | £ 0 | 0 | 0.00 KM |
| Salisbury Street | £ 0 | 0 | 0.00 KM |
| Castle Court | £ 0 | 0 | 0.00 KM |
| Elm Grove | £ 0 | 0 | 0.00 KM |
Nearby Transport
| Name | NLC | TLC | Distance |
|---|---|---|---|
| Hadfield | 2896 | HDF | 1.10 KM |
| Glossop | 2895 | GLO | 2.19 KM |
| Dinting | 2893 | DTG | 2.22 KM |
| Broadbottom | 2892 | BDB | 7.16 KM |
| Hattersley | 2604 | HTY | 9.56 KM |
Nearby Listings
| Address | Price | Type | Score | Distance |
|---|---|---|---|---|
| Temple Street, Padfield | £ 350,000 | BUY | 6 / 10 | 0.00 KM |
| Temple Street, Padfield, Glossop | £ 850,000 | BUY | Unknown | 0.02 KM |
| Padfield Main Road, Padfield, Glossop, Derbyshire, SK13 | £ 280,000 | BUY | 7 / 10 | 0.07 KM |
| Post Street, Padfield, Glossop, Derbyshire, SK13 | £ 215,000 | BUY | Unknown | 0.10 KM |
| Post Street, Padfield, Glossop, Derbyshire, SK13 | £ 295,000 | BUY | 7 / 10 | 0.13 KM |
Nearby Properties
| Address | Price | Distance |
|---|---|---|
| 7 Temple Street | £ 223,700 | 0.01 KM |
| 9 Temple Street | £ 107,000 | 0.01 KM |
| 16 Temple Street | £ 100,000 | 0.01 KM |
| 5 Temple Street | £ 247,000 | 0.01 KM |
| 18 Temple Street | £ 103,000 | 0.01 KM |