79 Limpsfield Road, Sanderstead, South Croydon
McCarthy & Stone Resales logo

79 Limpsfield Road, Sanderstead, South Croydon

By McCarthy & Stone Resales

£ 410,000

Reviews

3 out of 5 stars

McCarthy & Stone Resales says ..

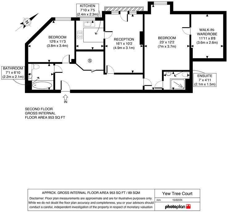
An extremely spacious second floor apartment comprising a large living/dining room, modern fully fitted kitchen, two large double bedrooms with the master bedroom having an exceptionally large walk-in wardrobe/dressing room and en-suite shower room and a second fully tiled bathroom. *** One o...

Property Oracle says ..

This 2-bedroom, 2-bathroom apartment in Sanderstead, South Croydon, is part of a McCarthy & Stone retirement development. The property boasts a modern interior, as evidenced by the provided images, featuring a contemporary kitchen and bathrooms. The apartment appears well-maintained and clean. The location is convenient, with proximity to Waitrose supermarket and several schools, including Gresham Primary School, a short distance away. Several train stations are also within a reasonable distance, offering good transport links. The development includes communal gardens, providing residents with outdoor space. However, the property itself does not have a private garden. The price of £410,000 appears to be in line with other similar properties in the area, though a precise comparison is difficult due to limited data on square footage for nearby listings. Overall, the property presents a good option for a buyer seeking a modern, well-maintained retirement apartment in a convenient location. The absence of a private garden and the lack of precise local market data regarding price per square foot for retirement apartments are factors to consider.

Therefore, we give this property 6 / 10. *Disclaimer: This is our option and does constitute a recommendation or financial advice. Do your own research. *

Price
7
Condition
7
Location
7
Land
3
Bedrooms
2
Bathrooms
2
Sqft (est)
953.00

The heatmap indicates the level of crime in the area. The color of the heatmap indicates the crime severity and recency.

Metrics Year-on-Year

Average area value
641,395.00 £
Decreased by 7.95 %
from 696,783.00 £
Est sale value
627,074.00 £
Increased by 34.84 %
from 465,064.00 £
Average area rental value
2,243.00 £/mo
Increased by 14.56 %
from 1,958.00 £/mo
Est letting value
1,906.00 £/mo
Increased by 100.00 %
from 953.00 £/mo
Est rental Yield
4.20 %
Increased by 24.63 %
from 3.37 %
Crime Rate
23.00 %
Unchanged by 0.00 %
from 23.00 %

Agent Activity

  • McCarthy & Stone Resales created the listing.

Nearby Schools

NameTypeOfstedDistance
Gresham Primary SchoolCommunity SchoolGood0.24 KM
Sanderstead Children'S CentreChildren's Centre Linked Site0.44 KM
Atwood Primary AcademyAcademy Converter0.50 KM
Riddlesdown CollegiateAcademy ConverterOutstanding1.54 KM
Ridgeway Primary SchoolCommunity SchoolGood1.75 KM

Images

08-49afJHMCSR - 20 Yew Tree Court - 22-medium.jpg 09-9ae7JHMCSR - 20 Yew Tree Court - 25-medium.jpg 01-2d52JHMCSR - 20 Yew Tree Court - 1-medium.jpg 14-9984JHMCS - 20 Yew Tree Court  - 42 (1)-medium. 15-193bJHMCS - 20 Yew Tree Court  - 44 (1)-medium. 03-c47dJHMCSR - 20 Yew Tree Court - 7-medium.jpg 02-5312JHMCSR - 20 Yew Tree Court - 4-medium.jpg 04-9347JHMCSR - 20 Yew Tree Court - 10-medium.jpg 10-b663JHMCSR - 20 Yew Tree Court - 28-medium.jpg 11-95d1JHMCSR - 20 Yew Tree Court - 31-medium.jpg 12-d314JHMCS - 20 Yew Tree Court  - 36 (1)-medium. 12-bbe0JHMCSR - 20 Yew Tree Court - 34-medium.jpg 13-d587JHMCSR - 20 Yew Tree Court - 37-medium.jpg 06-72c3JHMCSR - 20 Yew Tree Court - 16-medium.jpg 05-f803JHMCSR - 20 Yew Tree Court - 13-medium.jpg 07-06e6JHMCSR - 20 Yew Tree Court - 19-medium.jpg 14-0aa7JHMCSR - 20 Yew Tree Court - 40-medium.jpg 15-2bddJHMCSR - 20 Yew Tree Court - 43-medium.jpg Garden.png

Nearby Streets

NameAverage PriceAverage SqftDistance
Broadway Close £ 450,00000.00 KM
Pear Tree Close £ 425,00000.00 KM
Mountwood Close £ 312,14300.00 KM
Ferns Close £ 578,95000.00 KM
Addington Road £ 305,86500.00 KM

Nearby Transport

NameNLCTLCDistance
Riddlesdown5432RDD2.60 KM
Whyteleafe5396WHY2.60 KM
Sanderstead5433SNR2.62 KM
Upper Warlingham5391UWL2.71 KM
Kenley5419KLY2.91 KM

Nearby Listings

AddressPriceTypeScoreDistance
79 Limpsfield Road, Sanderstead, South Croydon £ 410,000BUY6 / 100.00 KM
Limpsfield Road, Yew Tree Court, Sanderstead, Surrey, CR2 9LB £ 300,000BUY7 / 100.00 KM
Yew Tree Court, 79 Limpsfield Road, Sanderstead, Surrey, CR2 9LB £ 250,000BUY6 / 100.00 KM
Limpsfield Road, South Croydon £ 275,000BUY6 / 100.00 KM
Limpsfield Road, South Croydon £ 300,000BUY6 / 100.03 KM

Nearby Properties

AddressPriceDistance
15 Cranleigh Gardens £ 630,0000.12 KM
21 Cranleigh Gardens £ 305,0000.12 KM
10 Cranleigh Gardens £ 395,0000.12 KM
16 Cranleigh Gardens £ 454,0000.12 KM
22 Cranleigh Gardens £ 530,0000.12 KM