Blackness Avenue, Dundee, DD2
By Thorntons Property Services
£ 225,000
Reviews
3 out of 5 stars
Thorntons Property Services says ..
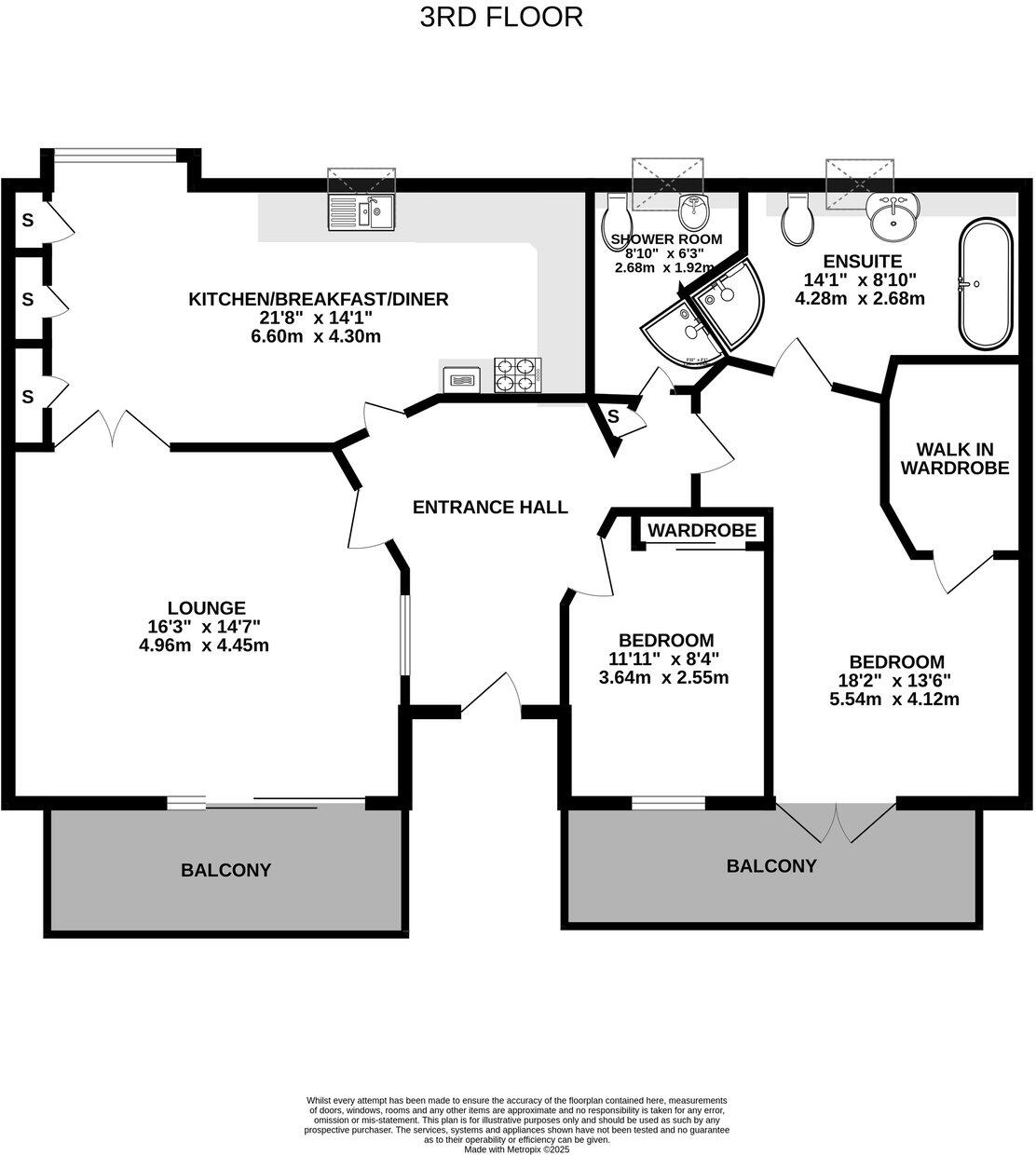
Stunning penthouse apartment, in a highly sought-after location within the West End of Dundee. The property offers a spacious lounge, dining/kitchen, two double bedrooms (including master with ensuite), and an additional shower room. Attributes include gas central heating, double glazing, secu...
Property Oracle says ..
This is a two-bedroom flat located in the West End of Dundee. The property is in good condition and benefits from modern fixtures and fittings. It has two bathrooms and a balcony. The property is located close to local amenities, schools, and transportation links. The list price of £225,000 seems reasonable given the location, condition, and size of the property.
Therefore, we give this property 6 / 10. *Disclaimer: This is our option and does constitute a recommendation or financial advice. Do your own research. *
- Price
- 6
- Condition
- 7
- Location
- 7
- Land
- 4
- Bedrooms
- 2
- Bathrooms
- 2
- Sqft (est)
- 1,043.43
The heatmap indicates the level of crime in the area. The color of the heatmap indicates the crime severity and recency.
Metrics Year-on-Year
- Average area value
- 3,330,494.00 £Decreased by 9.19 %
- Est sale value
- 2,549,099.49 £Increased by 8.87 %
- Average area rental value
- 2,935.00 £/moIncreased by 1.98 %
- Est letting value
- 2,086.86 £/moIncreased by 100.00 %
- Est rental Yield
- 1.06 %Increased by 12.77 %
- Crime Rate
- 0.00 %
Agent Activity
Thorntons Property Services created the listing.
Images
Nearby Streets
| Name | Average Price | Average Sqft | Distance |
|---|---|---|---|
| Hyndford Place | £ 0 | 0 | 0.00 KM |
| Richmond Terrace | £ 260,000 | 0 | 0.00 KM |
| Glenagnes Gardens | £ 0 | 0 | 0.00 KM |
| Balgay Road | £ 145,000 | 0 | 0.00 KM |
| Strawberry Bank | £ 0 | 0 | 0.00 KM |
Nearby Transport
| Name | NLC | TLC | Distance |
|---|---|---|---|
| Dundee | 9039 | DEE | 3.12 KM |
| Invergowrie | 8778 | ING | 6.42 KM |
Nearby Listings
| Address | Price | Type | Score | Distance |
|---|---|---|---|---|
| Blackness Avenue, Dundee, DD2 | £ 225,000 | BUY | 6 / 10 | 0.00 KM |
| Trinity Court, Blackness Avenue, Dundee, Angus, DD2 | £ 220,000 | BUY | Unknown | 0.02 KM |
| Blackness Avenue, Dundee, DD2 1 | £ 200,000 | BUY | 6 / 10 | 0.04 KM |
| Blackness Avenue, Dundee | £ 220,000 | BUY | 6 / 10 | 0.04 KM |
| Seymour Street, Dundee, Angus, DD2 | £ 100,000 | BUY | 6 / 10 | 0.07 KM |