FHP Living says ..
Wesley House, Nottingham - Secure Supported Living Investment | £176,341 p.a. Income | £2.25M (7.8% Net Yield) - No landlord costs - tenant responsible for full repairs, insurance, and management (FRI lease)
Property Oracle says ..
This is a large apartment located on Victoria Road, Netherfield. The property is in good condition, with modern interiors. The location is convenient, with nearby schools and transportation options. However, the list price seems extremely high compared to local market values and average prices per square foot. The property does not appear to have any associated garden or land.
Therefore, we give this property 5 / 10. *Disclaimer: This is our option and does constitute a recommendation or financial advice. Do your own research. *
- Price
- 2
- Condition
- 8
- Location
- 7
- Land
- 3
- Bedrooms
- 13
- Bathrooms
- 13
- Sqft (est)
- 1,377.78
The heatmap indicates the level of crime in the area. The color of the heatmap indicates the crime severity and recency.
Metrics Year-on-Year
- Average area value
- 212,222.00 £Increased by 17.67 %
- Est sale value
- 347,200.56 £Increased by 35.48 %
- Average area rental value
- 657.00 £/moDecreased by 16.73 %
- Est letting value
- 0.00 £/mo
- Est rental Yield
- 3.71 %Decreased by 29.33 %
- Crime Rate
- 20.00 %Unchanged by 0.00 %
Agent Activity
FHP Living created the listing.
Nearby Schools
| Name | Type | Ofsted | Distance |
|---|---|---|---|
| Carlton Children'S Centre | Children's Centre | 0.09 KM | |
| Stanhope Children'S Centre | Children's Centre | 0.09 KM | |
| Venture Learning | Other Independent Special School | 0.53 KM | |
| Netherfield Primary School | Academy Sponsor Led | 0.58 KM | |
| Netherfield Children'S Centre | Children's Centre | 0.60 KM |
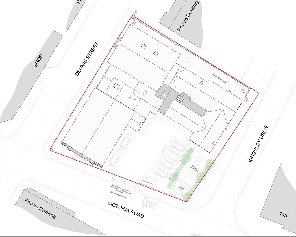
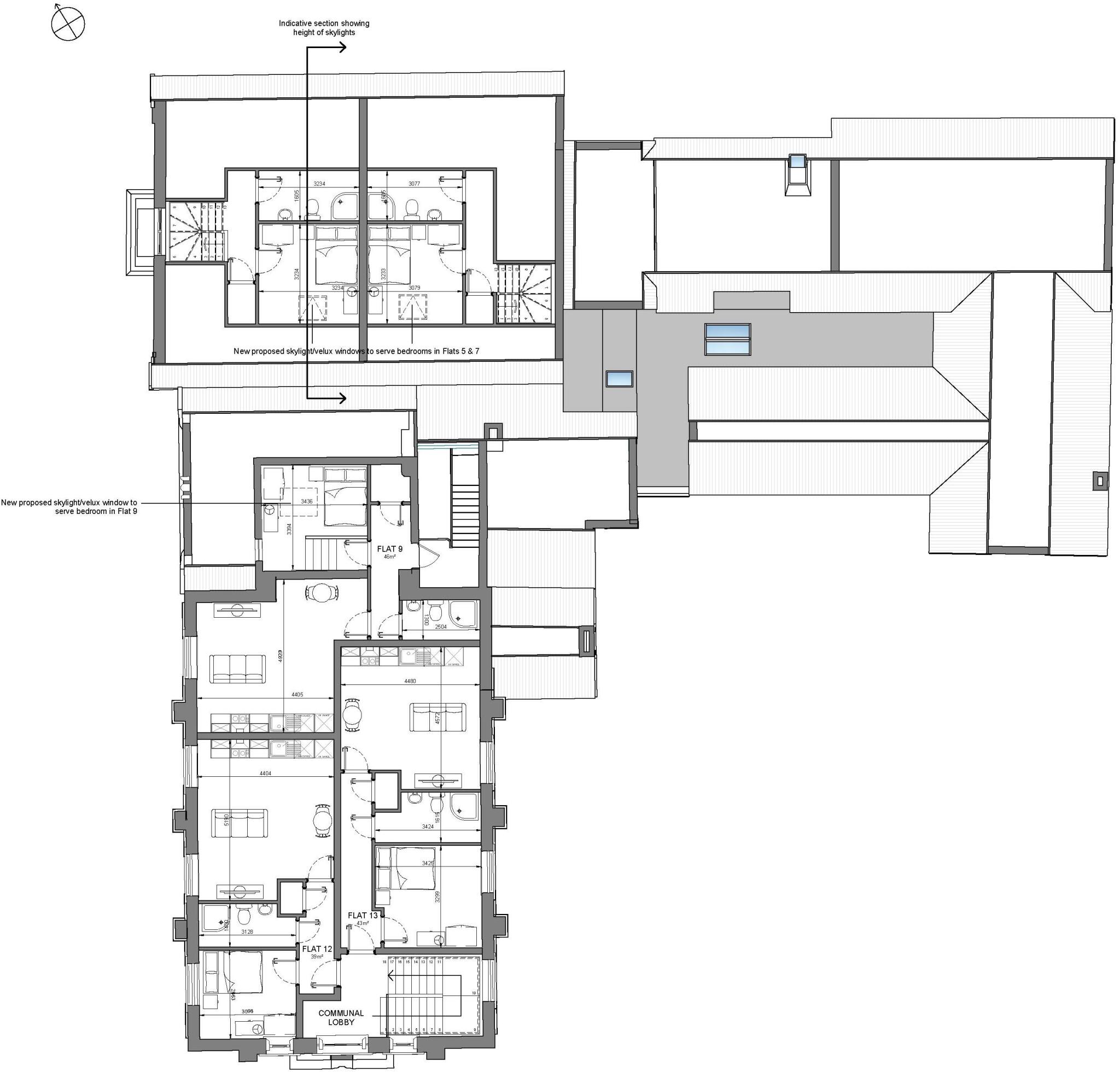
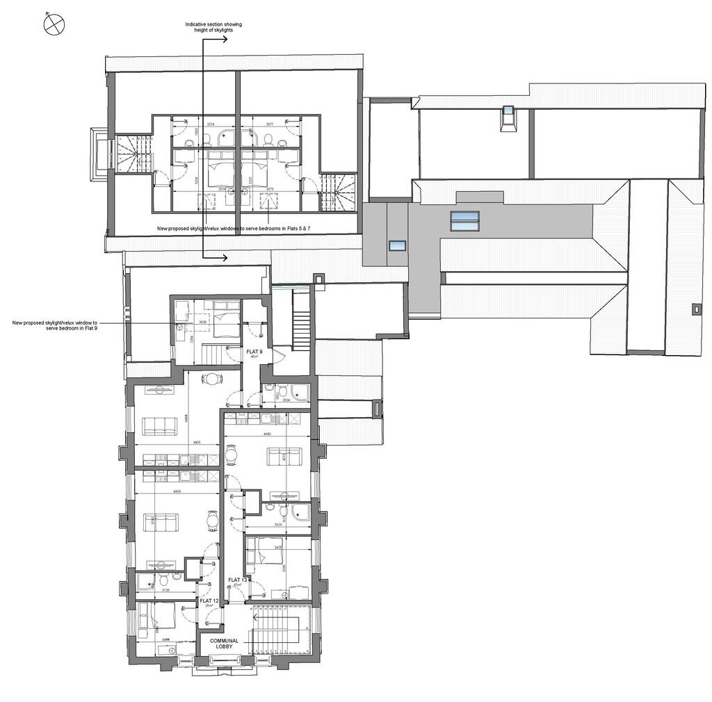
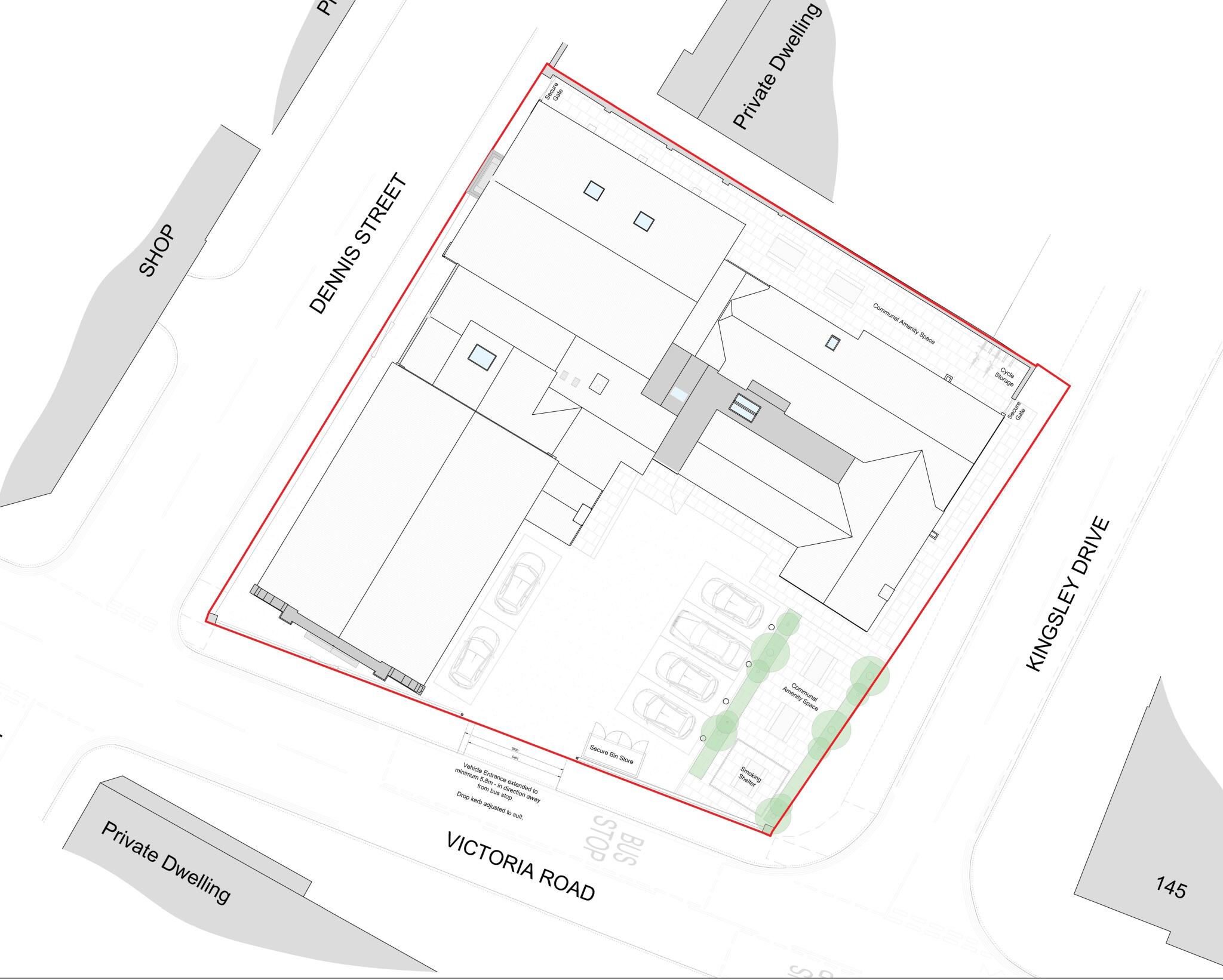
Images
Nearby Streets
| Name | Average Price | Average Sqft | Distance |
|---|---|---|---|
| Norman Street | £ 145,000 | 0 | 0.00 KM |
| Cross Street | £ 0 | 0 | 0.00 KM |
| Ley Street | £ 0 | 0 | 0.00 KM |
| Magpie Street | £ 0 | 0 | 0.00 KM |
| Private Road No. 1 | £ 280,000 | 0 | 0.00 KM |
Nearby Transport
| Name | NLC | TLC | Distance |
|---|---|---|---|
| Carlton | 6201 | CTO | 0.87 KM |
| Netherfield | 6241 | NET | 0.95 KM |
| Radcliffe (Nottinghamshire) | 6242 | RDF | 4.04 KM |
| Burton Joyce | 6200 | BUJ | 4.11 KM |
| Nottingham | 1826 | NOT | 8.47 KM |
Nearby Listings
| Address | Price | Type | Score | Distance |
|---|---|---|---|---|
| Victoria Road, Netherfield | £ 2,250,000 | BUY | 5 / 10 | 0.00 KM |
| Godfrey Street, Netherfield, Nottingham | £ 190,000 | BUY | 6 / 10 | 0.08 KM |
| Godfrey Street, Netherfield, Nottingham | £ 155,000 | BUY | 6 / 10 | 0.12 KM |
| Deabill Street, Netherfield, Nottingham, Nottinghamshire, NG4 | £ 125,000 | BUY | 6 / 10 | 0.12 KM |
| Kingsley Drive, Netherfield, Nottingham | £ 170,000 | BUY | Unknown | 0.14 KM |
Nearby Properties
| Address | Price | Distance |
|---|---|---|
| 12 Henley Close | £ 57,950 | 0.05 KM |
| 1 Henley Close | £ 38,000 | 0.05 KM |
| 14 Henley Close | £ 98,000 | 0.05 KM |
| 21 Henley Close | £ 147,000 | 0.05 KM |
| 2 Henley Close | £ 109,000 | 0.05 KM |