Hartley, Plymouth
JU

Hartley, Plymouth

By Julian Marks

£ 600,000

Reviews

3 out of 5 stars

Julian Marks says ..

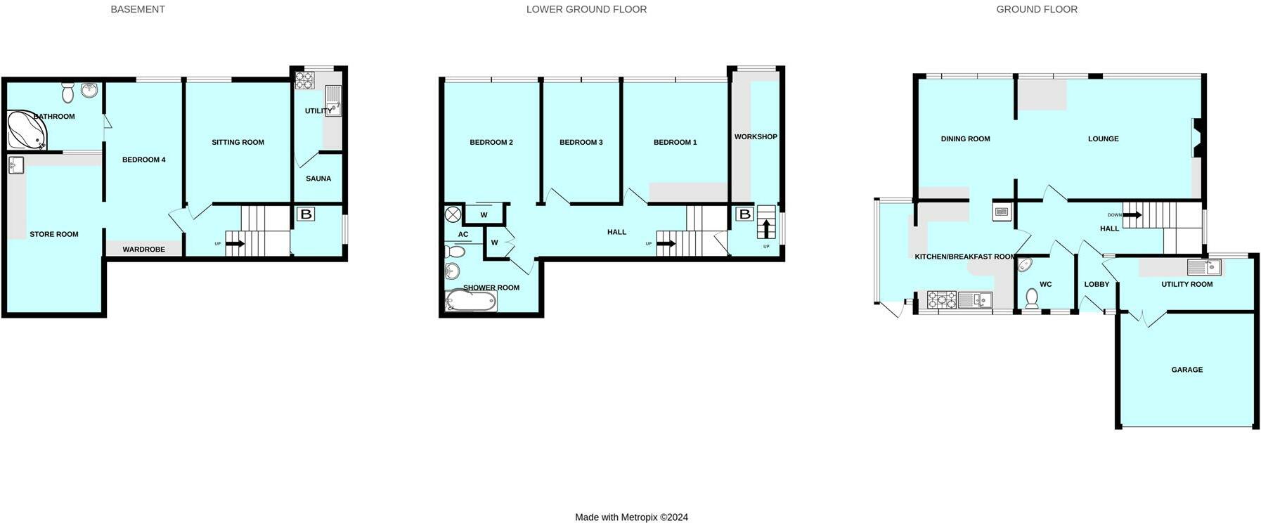
GUIDE PRICE £600,000 - £650,000 A detached residence circa. 1970, providing deceptively spacious accommodation arranged over three descending levels & enjoying far reaching panoramic views looking across the city and beyond towards Cornwall & the sea in the distance. In need of updating, improvem...

Property Oracle says ..

This four-bedroom, two-bathroom property located in Hartley, Plymouth, presents a mixed bag of opportunities and challenges. The property’s age is apparent, indicating a need for significant modernization and renovation. The kitchen and bathrooms, in particular, show dated fixtures and finishes that would need to be updated. The property features extensive garden space; a noteworthy asset, offering a potential for development or outdoor living. The current condition of the garden may require attention. The property boasts panoramic views of the city and surrounding areas, a strong selling point for those valuing scenic perspectives. The location is relatively convenient with good access to schools and transport links, without being in the immediate vicinity of the bustling city centre. While requiring investment, this property could appeal to buyers seeking a project with the potential for substantial capital appreciation once updated, and who appreciate a large garden with a view. The lack of precise square footage data in the comparison listings makes determining its accurate price per square foot difficult. Overall, the property’s considerable garden space, views, and accessibility are strong positives, balanced against its need for complete interior renovations.

Therefore, we give this property 6 / 10. *Disclaimer: This is our option and does constitute a recommendation or financial advice. Do your own research. *

Price
7
Condition
4
Location
7
Land
6
Bedrooms
4
Bathrooms
2
Sqft (est)
233.40

The heatmap indicates the level of crime in the area. The color of the heatmap indicates the crime severity and recency.

Metrics Year-on-Year

Average area value
258,177.00 £
Decreased by 6.64 %
from 276,525.00 £
Est sale value
80,056.20 £
Increased by 30.92 %
from 61,150.80 £
Average area rental value
835.00 £/mo
Decreased by 21.37 %
from 1,062.00 £/mo
Est letting value
233.40 £/mo
Unchanged by 0.00 %
from 233.40 £/mo
Est rental Yield
3.88 %
Decreased by 15.84 %
from 4.61 %
Crime Rate
0.00 %
from 0.00 %

Agent Activity

  • Julian Marks created the listing.

Nearby Schools

NameTypeOfstedDistance
King'S SchoolOther Independent School0.11 KM
Hyde Park Junior SchoolAcademy Converter0.78 KM
Hyde Park Infants' SchoolAcademy Converter0.79 KM
Plymouth CollegeOther Independent School0.88 KM
Manadon Vale Primary SchoolAcademy ConverterGood1.04 KM

Images

IMG_7926.jpeg IMG_9965 2.jpeg IMG_7925.jpeg IMG_9969 2.jpeg IMG_7927.jpeg IMG_7948.jpeg IMG_7928.jpeg IMG_7950.jpeg IMG_7944.jpeg IMG_7942.jpeg IMG_7940.jpeg IMG_7924.jpeg IMG_9973 2.jpeg IMG_9970 2.jpeg IMG_7913.jpeg IMG_7908.jpeg FullSizeRender.jpeg IMG_9967 2.jpeg IMG_7898.jpeg FullSizeRender.jpeg IMG_7902.jpeg IMG_7918.jpeg IMG_7906.jpeg IMG_7915.jpeg IMG_7917.jpeg IMG_7920.jpeg IMG_9968 2.jpeg IMG_9964 2.jpeg IMG_9971 2.jpeg IMG_9966 2.jpeg IMG_7911.jpeg IMG_9963 2.jpeg IMG_9962 2.jpeg 1.jpg 2.jpg Boundaries.jpg IMG_2853.JPG IMG_2862.jpg IMG_2849.JPG IMG_2883.JPG IMG_2880.JPG IMG_2857.jpg IMG_2859.jpg IMG_2873.JPG IMG_2865.jpg IMG_2864.jpg IMG_2875.JPG IMG_2860.jpg IMG_2850.JPG

Nearby Streets

NameAverage PriceAverage SqftDistance
Glenhurst Road £ 000.00 KM
Torr Crescent £ 475,00000.00 KM
Leighton Road £ 000.00 KM
Lockyer Road £ 750,00000.00 KM
St Gabriel's Avenue £ 000.00 KM

Nearby Transport

NameNLCTLCDistance
Plymouth3580PLY1.80 KM
Devonport3579DPT4.05 KM
Dockyard (Devonport)3588DOC4.46 KM
Keyham3571KEY4.73 KM
St Budeaux Ferry Road3590SBF5.60 KM

Nearby Listings

AddressPriceTypeScoreDistance
Hartley, Plymouth £ 600,000BUY6 / 100.00 KM
Venn Grove, Hartley £ 600,000BUY7 / 100.03 KM
Venn Way, Plymouth £ 550,000BUY7 / 100.09 KM
Hartley, Plymouth £ 700,000BUY7 / 100.11 KM
Leat Walk, Plymouth £ 420,000BUYUnknown0.22 KM

Nearby Properties

AddressPriceDistance
32 Venn Grove £ 325,0000.05 KM
34 Venn Grove £ 114,8500.05 KM
36 Venn Grove £ 286,0000.05 KM
25 Venn Grove £ 300,0000.05 KM
18 Venn Grove £ 275,0000.10 KM