High Croft, Upperthong, Holmfirth, HD9
By Belong, by James White
£ 700,000
Reviews
3 out of 5 stars
Belong, by James White says ..
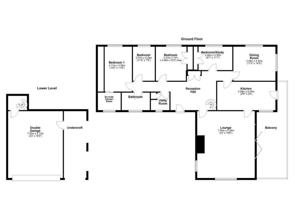
Fling open the bi-fold doors and enjoy dinner, or just drinks on the wonderful terrace that looks over the Holme Valley. If you are in the market for a large detached bungalow with exceptional views and a particularly generous plot, then this interesting and individual property in the lo...
Property Oracle says ..
Therefore, we give this property 6 / 10. *Disclaimer: This is our option and does constitute a recommendation or financial advice. Do your own research. *
- Price
- 6
- Condition
- 5
- Location
- 7
- Land
- 8
- Bedrooms
- 4
- Bathrooms
- 2
- Sqft (est)
- 1,745.51
The heatmap indicates the level of crime in the area. The color of the heatmap indicates the crime severity and recency.
Metrics Year-on-Year
- Average area value
- 454,991.00 £Increased by 10.16 %
- Est sale value
- 521,907.49 £Decreased by 8.00 %
- Average area rental value
- 1,126.00 £/moDecreased by 3.35 %
- Est letting value
- 0.00 £/mo
- Est rental Yield
- 2.97 %Decreased by 12.13 %
- Crime Rate
- 1.00 %Unchanged by 0.00 %
from 413,042.00 £
from 567,290.75 £
from 1,165.00 £/mo
from 0.00 £/mo
from 3.38 %
from 1.00 %
Agent Activity
Belong, by James White created the listing.
Nearby Schools
| Name | Type | Ofsted | Distance |
|---|---|---|---|
| Upperthong Junior And Infant School | Community School | Good | 0.33 KM |
| Holme Valley South Children'S Centre | Children's Centre Linked Site | 1.59 KM | |
| Holmfirth Junior Infant And Nursery School | Community School | Good | 1.86 KM |
| Hinchliffe Mill Junior And Infant School | Community School | Good | 1.93 KM |
| Netherthong Primary School | Community School | Outstanding | 2.06 KM |
Images
Nearby Streets
| Name | Average Price | Average Sqft | Distance |
|---|---|---|---|
| High Croft | £ 0 | 0 | 0.00 KM |
| Woodside View | £ 289,950 | 0 | 0.00 KM |
| Brow Lane | £ 1,500,000 | 0 | 0.00 KM |
| Old Yew Lane | £ 0 | 0 | 0.00 KM |
| Hill House Road | £ 1,415,000 | 0 | 0.00 KM |
Nearby Transport
| Name | NLC | TLC | Distance |
|---|---|---|---|
| Brockholes | 8429 | BHS | 4.65 KM |
| Honley | 8436 | HOY | 4.80 KM |
| Berry Brow | 8431 | BBW | 5.68 KM |
| Lockwood | 8443 | LCK | 7.12 KM |
| Huddersfield | 8437 | HUD | 8.87 KM |
Nearby Listings
| Address | Price | Type | Score | Distance |
|---|---|---|---|---|
| High Croft, Upperthong, Holmfirth, HD9 | £ 700,000 | BUY | 6 / 10 | 0.00 KM |
| Spring Gardens, Upperthong HD9 | £ 425,000 | BUY | 7 / 10 | 0.22 KM |
| Broad Lane, Upperthong, Holmfirth, HD9 | £ 725,000 | BUY | 8 / 10 | 0.24 KM |
| Pennine Gardens, Upperthong, Holmfirth, West Yorkshire, HD9 | £ 675,000 | BUY | 7 / 10 | 0.24 KM |
| Greenfield Road, Holmfirth, West Yorkshire, HD9 | £ 495,000 | BUY | 7 / 10 | 0.28 KM |
Nearby Properties
| Address | Price | Distance |
|---|---|---|
| 97 Upperthong Lane | £ 290,000 | 0.04 KM |
| 125 Upperthong Lane | £ 150,000 | 0.04 KM |
| 112 Upperthong Lane | £ 475,000 | 0.04 KM |
| 93 Upperthong Lane | £ 225,500 | 0.04 KM |
| 99 Upperthong Lane | £ 226,950 | 0.05 KM |