Mischa & Co says ..
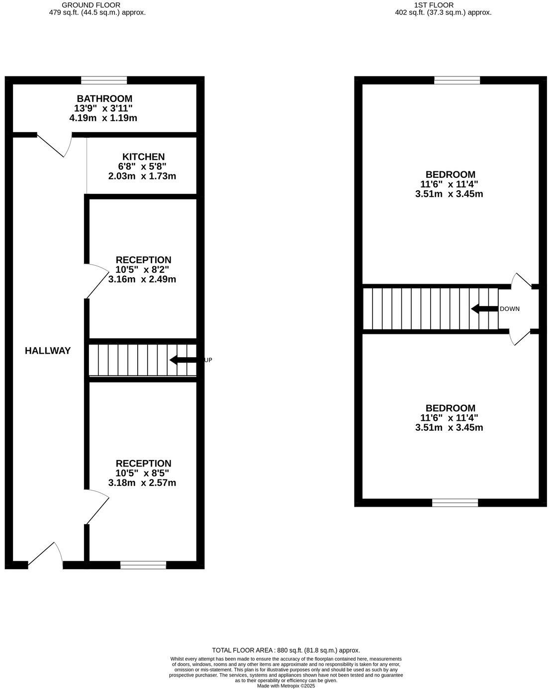
*** EDWARDIAN END OF TERRACE ***Mischa & Co are proud to present this beautiful 2 bedroom Edwardian end of terraced home, 2 spacious reception rooms, fitted kitchen and downstairs bathroom. Edgware Broadway is within a short walk and offers many local amenities including shops, rest...
Property Oracle says ..
This two-bedroom property in Mead Road, Edgware, offers a convenient location with access to the Northern and Jubilee lines. The proximity to several schools, including Woodlands School (Outstanding Ofsted rating), is a positive aspect for families. However, the property’s condition requires attention. The bathroom needs a complete renovation, and the garden is in need of significant landscaping. The kitchen is functional but modest in size. The interior photos reveal a somewhat dated aesthetic, with wallpaper and furnishings that could benefit from an update. The property’s value is somewhat unclear due to a lack of precise square footage data for comparable properties in the area, but the list price seems on the higher end of the range, considering its condition and the size of the garden. A potential buyer should factor in renovation costs when assessing the overall value proposition.
Therefore, we give this property 4 / 10. *Disclaimer: This is our option and does constitute a recommendation or financial advice. Do your own research. *
- Price
- 7
- Condition
- 4
- Location
- 6
- Land
- 2
- Bedrooms
- 2
- Bathrooms
- 0
- Sqft (est)
- 880.00
The heatmap indicates the level of crime in the area. The color of the heatmap indicates the crime severity and recency.
Metrics Year-on-Year
- Average area value
- 625,703.00 £Decreased by 3.61 %
- Est sale value
- 412,720.00 £Increased by 34.38 %
- Average area rental value
- 2,383.00 £/moDecreased by 5.55 %
- Est letting value
- 880.00 £/moUnchanged by 0.00 %
- Est rental Yield
- 4.57 %Decreased by 1.93 %
- Crime Rate
- 6.00 %Unchanged by 0.00 %
Agent Activity
Mischa & Co created the listing.
Nearby Schools
| Name | Type | Ofsted | Distance |
|---|---|---|---|
| Tashbar Of Edgware | Other Independent School | Inadequate | 0.36 KM |
| Krishna Avanti Primary School | Academy Converter | Good | 0.66 KM |
| Edgware Primary School | Community School | Good | 0.75 KM |
| Woodlands School | Community Special School | Outstanding | 0.85 KM |
| Chandos Children'S Centre | Children's Centre Linked Site | 0.99 KM |
Images
Nearby Streets
| Name | Average Price | Average Sqft | Distance |
|---|---|---|---|
| High Street | £ 564,998 | 0 | 0.00 KM |
| Whitchurch Lane | £ 0 | 0 | 0.00 KM |
| Orchard Court | £ 314,667 | 0 | 0.00 KM |
| Burnt Oak Broadway | £ 0 | 0 | 0.00 KM |
| St. Lawrence Close | £ 0 | 0 | 0.00 KM |
Nearby Transport
| Name | NLC | TLC | Distance |
|---|---|---|---|
| Mill Hill Broadway | 1527 | MIL | 3.65 KM |
| Elstree And Borehamwood | 1542 | ELS | 4.82 KM |
| Kenton | 1399 | KNT | 4.96 KM |
| South Kenton | 1453 | SOK | 5.29 KM |
| North Wembley | 1422 | NWB | 5.79 KM |
Nearby Listings
| Address | Price | Type | Score | Distance |
|---|---|---|---|---|
| Whitchurch Lane, Edgware, HA8 | £ 185,000 | BUY | 6 / 10 | 0.08 KM |
| Chichester Court, Whitchurch Lane, Edgware, HA8 | £ 207,000 | BUY | 4 / 10 | 0.09 KM |
| Mead Road, Edgware, Middlesex, HA8 6LH | £ 375,000 | BUY | 6 / 10 | 0.10 KM |
| Whitchurch Lane, Edgware, Barnet, HA8 6NJ | £ 120,000 | BUY | Unknown | 0.14 KM |
| Mead Road, Edgware | £ 569,950 | BUY | Unknown | 0.16 KM |
Nearby Properties
| Address | Price | Distance |
|---|---|---|
| 30 Mead Road | £ 420,000 | 0.05 KM |
| 16 Mead Road | £ 277,500 | 0.05 KM |
| 10 Mead Road | £ 409,000 | 0.05 KM |
| 32 Mead Road | £ 390,000 | 0.05 KM |
| 42b Mead Road | £ 225,000 | 0.05 KM |