Portfolio says ..
Portfolio Properties are pleased to bring to market this beautifully presented stone property in the heart of Saddleworth, thoughtfully converted into two self-contained one-bedroom apartments.
Property Oracle says ..
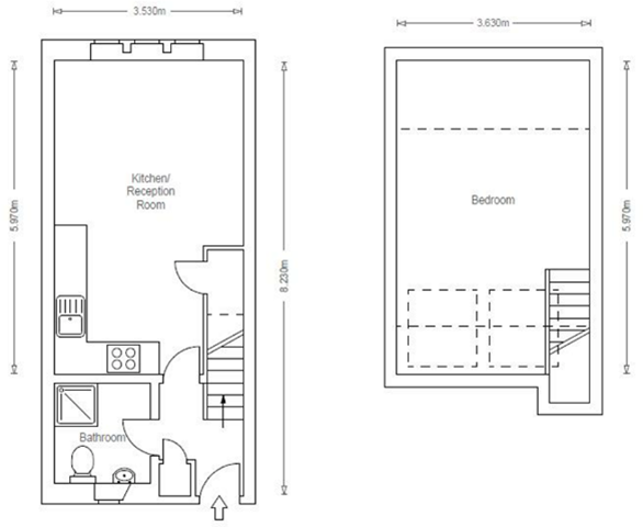
This is a one-bedroom flat located on Oldham Road in Saddleworth South, Oldham. The property appears to be in good condition, with modern fixtures and fittings. The flat is situated in a location that offers convenient access to local schools and transportation links. The asking price of £200,000 seems reasonable when compared to the average property price in the area.
Therefore, we give this property 6 / 10. *Disclaimer: This is our option and does constitute a recommendation or financial advice. Do your own research. *
- Price
- 7
- Condition
- 8
- Location
- 7
- Land
- 3
- Bedrooms
- 1
- Bathrooms
- 0
- Sqft (est)
- 289.67
The heatmap indicates the level of crime in the area. The color of the heatmap indicates the crime severity and recency.
Metrics Year-on-Year
- Average area value
- 745,000.00 £Increased by 61.49 %
- Est sale value
- 217,542.17 £Increased by 112.75 %
- Average area rental value
- 1,700.00 £/moIncreased by 48.86 %
- Est letting value
- 289.67 £/mo
- Est rental Yield
- 2.74 %Decreased by 7.74 %
- Crime Rate
- 0.00 %
Agent Activity
Portfolio created the listing.
Nearby Schools
| Name | Type | Ofsted | Distance |
|---|---|---|---|
| St Anne'S Cofe Lydgate Primary School | Academy Converter | Good | 0.22 KM |
| Friezland Primary School | Community School | Good | 1.53 KM |
| Milton St John'S Cofe Primary School | Voluntary Controlled School | Good | 1.87 KM |
| Knowsley Junior School | Foundation School | Good | 1.89 KM |
| Saddleworth West & Lees Children'S Centre | Children's Centre | 2.10 KM |
Images
Nearby Streets
| Name | Average Price | Average Sqft | Distance |
|---|---|---|---|
| Poplar Avenue | £ 0 | 0 | 0.00 KM |
| Quick Road | £ 0 | 0 | 0.00 KM |
| Taylor's Field | £ 0 | 0 | 0.00 KM |
| W View | £ 0 | 0 | 0.00 KM |
| Broadacres | £ 875,000 | 0 | 0.00 KM |
Nearby Transport
| Name | NLC | TLC | Distance |
|---|---|---|---|
| Mossley (Manchester) | 2903 | MSL | 2.50 KM |
| Greenfield | 2900 | GNF | 3.01 KM |
| Stalybridge | 2983 | SYB | 6.35 KM |
| Ashton-Under-Lyne | 2790 | AHN | 7.82 KM |
| Hyde North | 2959 | HYT | 9.46 KM |
Nearby Listings
| Address | Price | Type | Score | Distance |
|---|---|---|---|---|
| Oldham Road, OL4 | £ 200,000 | BUY | 6 / 10 | 0.00 KM |
| 238 Oldham Road, Lydgate, Oldham OL4 4DN | £ 170,000 | BUY | 5 / 10 | 0.06 KM |
| North View Close, Lydgate, Saddleworth | £ 290,000 | BUY | 7 / 10 | 0.09 KM |
| North View Close, Lydgate, Saddleworth | £ 290,000 | BUY | Unknown | 0.09 KM |
| Platting Road, Lydgate, Saddleworth. | £ 260,000 | BUY | Unknown | 0.09 KM |
Nearby Properties
| Address | Price | Distance |
|---|---|---|
| 236 Oldham Road | £ 76,500 | 0.00 KM |
| 226 Oldham Road | £ 211,000 | 0.00 KM |
| 220 Oldham Road | £ 194,000 | 0.00 KM |
| 210 Oldham Road | £ 170,000 | 0.00 KM |
| 234 Oldham Road | £ 53,000 | 0.00 KM |