Masons says ..
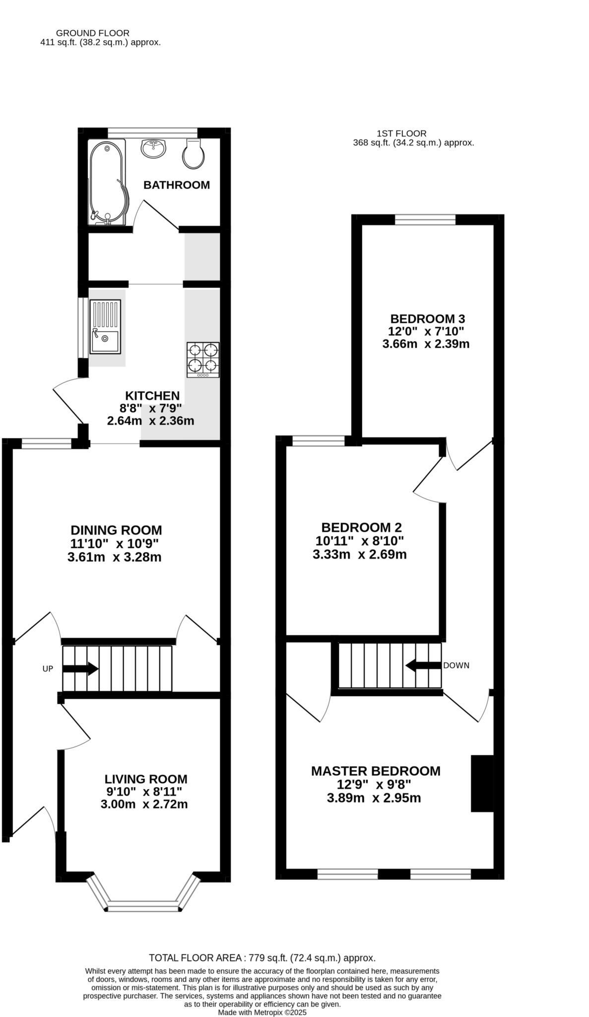
Masons are proud to offer to the market this attractive bay fronted Victorian three bedroom terrace house, located in Caversham and within walking distance to Caversham & Reading centres, along with Reading mainline station. The property benefits from sitting room, a dining room
Property Oracle says ..
This is a three-bedroom terraced house located on Star Road, Caversham, Reading. The property is listed for £370,000. It is located in a popular residential area, close to local schools and amenities. Reading train station is within easy reach. The property has a garden, which requires some attention. Internally, the property would benefit from some modernisation, particularly the kitchen and bathroom. The price appears reasonable, given the location, but potential buyers should factor in the cost of renovation.
Therefore, we give this property 6 / 10. *Disclaimer: This is our option and does constitute a recommendation or financial advice. Do your own research. *
- Price
- 7
- Condition
- 5
- Location
- 7
- Land
- 6
- Bedrooms
- 3
- Bathrooms
- 1
The heatmap indicates the level of crime in the area. The color of the heatmap indicates the crime severity and recency.
Metrics Year-on-Year
- Average area value
- 436,875.00 £Increased by 21.02 %
- Average area rental value
- 1,527.00 £/moDecreased by 4.62 %
- Est rental Yield
- 4.19 %Decreased by 21.24 %
- Crime Rate
- 12.00 %Unchanged by 0.00 %
Agent Activity
Masons created the listing.
Nearby Schools
| Name | Type | Ofsted | Distance |
|---|---|---|---|
| New Bridge Nursery School | Local Authority Nursery School | Outstanding | 0.26 KM |
| Caversham Children'S Centre | Children's Centre | 0.49 KM | |
| Caversham Nursery School | Local Authority Nursery School | Outstanding | 0.49 KM |
| St Anne'S Catholic Primary School | Voluntary Aided School | Good | 0.81 KM |
| Micklands Primary School | Community School | Good | 1.09 KM |
Images
Nearby Streets
| Name | Average Price | Average Sqft | Distance |
|---|---|---|---|
| Peel Close | £ 0 | 0 | 0.00 KM |
| St John's Road | £ 0 | 0 | 0.00 KM |
| The Causeway | £ 250,000 | 0 | 0.00 KM |
| Tilbury Close | £ 0 | 0 | 0.00 KM |
| Copse End | £ 0 | 0 | 0.00 KM |
Nearby Transport
| Name | NLC | TLC | Distance |
|---|---|---|---|
| Reading | 3149 | RDG | 1.73 KM |
| Reading West | 3160 | RDW | 3.71 KM |
| Earley | 5694 | EAR | 5.34 KM |
| Tilehurst | 3154 | TLH | 7.88 KM |
| Winnersh Triangle | 5698 | WTI | 8.17 KM |
Nearby Listings
| Address | Price | Type | Score | Distance |
|---|---|---|---|---|
| Star Road, Caversham | £ 370,000 | BUY | 6 / 10 | 0.00 KM |
| Star Road, Caversham | £ 424,950 | BUY | 8 / 10 | 0.00 KM |
| Douglas Road, Caversham, Reading | £ 400,000 | BUY | 7 / 10 | 0.06 KM |
| Briants Avenue, Caversham, Reading | £ 369,500 | BUY | 6 / 10 | 0.08 KM |
| Briants Avenue, Caversham, Reading, Berkshire, RG4 | £ 400,000 | BUY | 7 / 10 | 0.12 KM |
Nearby Properties
| Address | Price | Distance |
|---|---|---|
| 53 Star Road | £ 202,500 | 0.01 KM |
| 47 Star Road | £ 325,000 | 0.01 KM |
| 78c Star Road | £ 365,000 | 0.01 KM |
| 78d Star Road | £ 425,000 | 0.01 KM |
| 68 Star Road | £ 270,000 | 0.01 KM |