Davies & Davies says ..
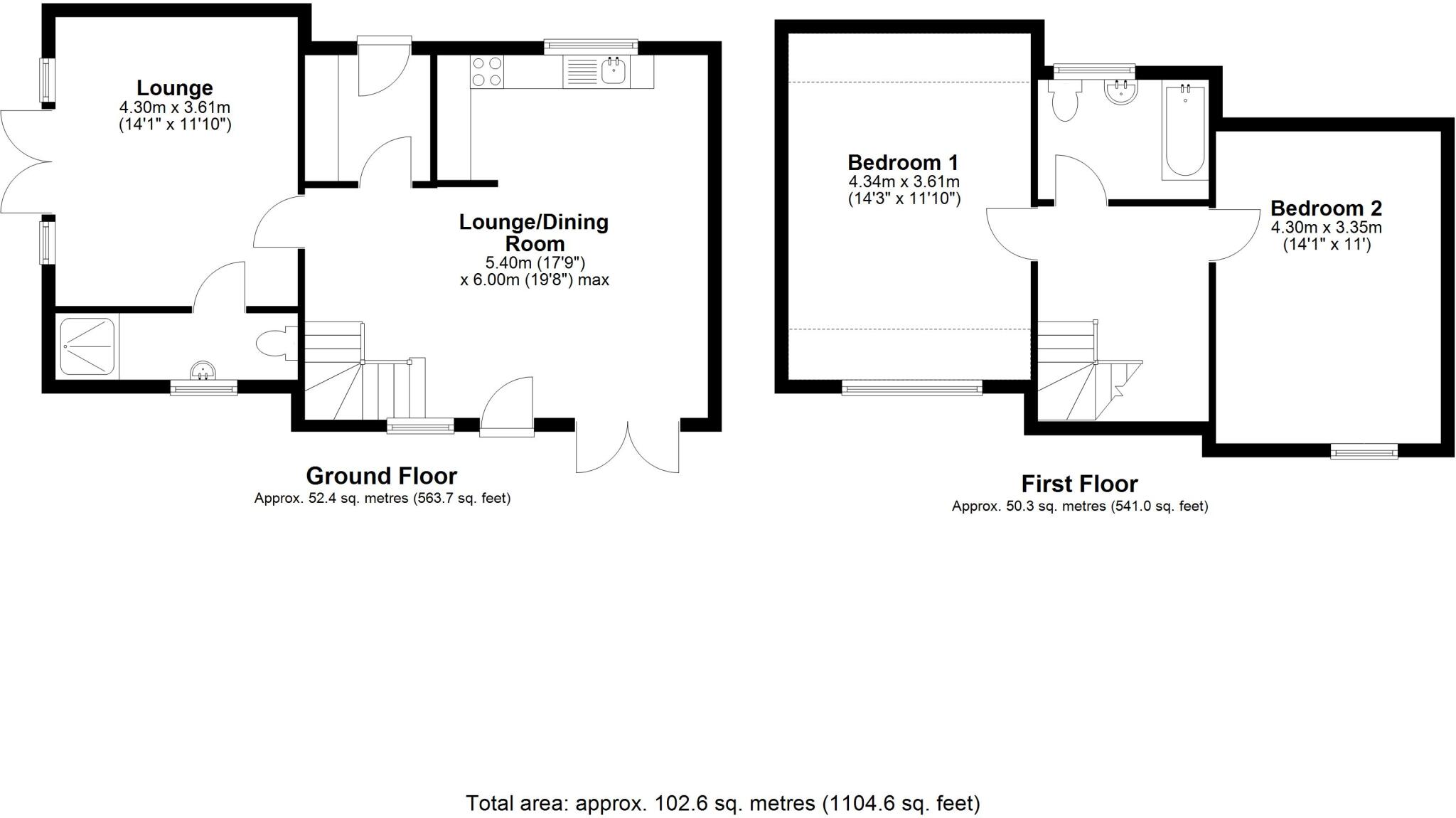
A beautiful modern two bedroom detached home situated close to amenities and transport links. A vertsatile living space with the option for three bedrooms one of which being downstairs with ensuite.
Property Oracle says ..
Therefore, we give this property 7 / 10. *Disclaimer: This is our option and does constitute a recommendation or financial advice. Do your own research. *
- Price
- 9
- Condition
- 8
- Location
- 7
- Land
- 7
- Bedrooms
- 2
- Bathrooms
- 2
- Sqft (est)
- 839.37
The heatmap indicates the level of crime in the area. The color of the heatmap indicates the crime severity and recency.
Metrics Year-on-Year
- Average area value
- 390,000.00 £Increased by 29.87 %
- Est sale value
- 460,814.13 £Increased by 53.35 %
- Average area rental value
- 913.00 £/moDecreased by 27.42 %
- Est letting value
- 839.37 £/moUnchanged by 0.00 %
- Est rental Yield
- 2.81 %Decreased by 44.14 %
- Crime Rate
- 7.00 %Unchanged by 0.00 %
from 300,294.00 £
from 300,494.46 £
from 1,258.00 £/mo
from 839.37 £/mo
from 5.03 %
from 7.00 %
Agent Activity
Davies & Davies marked this listing as sold.
Davies & Davies created the listing.
Nearby Schools
| Name | Type | Ofsted | Distance |
|---|---|---|---|
| White Horse Children'S Centre | Children's Centre | 0.11 KM | |
| Westbury Infant School | Community School | Good | 0.27 KM |
| Matravers School | Foundation School | Requires improvement | 0.50 KM |
| Westbury Church Of England Junior School | Voluntary Controlled School | Good | 0.66 KM |
| Bitham Brook Primary School | Community School | Good | 1.43 KM |
Images
Nearby Streets
| Name | Average Price | Average Sqft | Distance |
|---|---|---|---|
| Bramley Mews | £ 130,000 | 0 | 0.00 KM |
| Oldfield Road | £ 0 | 0 | 0.00 KM |
| Heather Close | £ 0 | 0 | 0.00 KM |
| Saxon Close | £ 0 | 0 | 0.00 KM |
| Chesnut Grove | £ 215,000 | 0 | 0.00 KM |
Nearby Transport
| Name | NLC | TLC | Distance |
|---|---|---|---|
| Westbury | 5712 | WSB | 1.16 KM |
| Dilton Marsh | 5502 | DMH | 2.37 KM |
| Warminster | 5505 | WMN | 6.25 KM |
| Trowbridge | 3348 | TRO | 7.03 KM |
Nearby Listings
| Address | Price | Type | Score | Distance |
|---|---|---|---|---|
| Eden Vale Road, Westbury | £ 265,000 | BUY | 7 / 10 | 0.00 KM |
| Eden Vale Road, Westbury | £ 375,000 | BUY | 6 / 10 | 0.07 KM |
| Eden Vale Road, Westbury | £ 389,000 | BUY | 6 / 10 | 0.08 KM |
| Oldfield Park, Westbury | £ 215,000 | BUY | 5 / 10 | 0.09 KM |
| Oldfield Park, Westbury | £ 205,000 | BUY | 7 / 10 | 0.12 KM |
Nearby Properties
| Address | Price | Distance |
|---|---|---|
| 24 Eden Vale Road | £ 248,000 | 0.07 KM |
| 22 Eden Vale Road | £ 278,000 | 0.07 KM |
| 11 Eden Vale Road | £ 198,000 | 0.07 KM |
| 2 Eden Vale Road | £ 135,000 | 0.07 KM |
| 18 Eden Vale Road | £ 197,000 | 0.07 KM |