Chatsworth Road, Clapton, E5
By Story of Home
£ 850,000
Reviews
3 out of 5 stars
Story of Home says ..
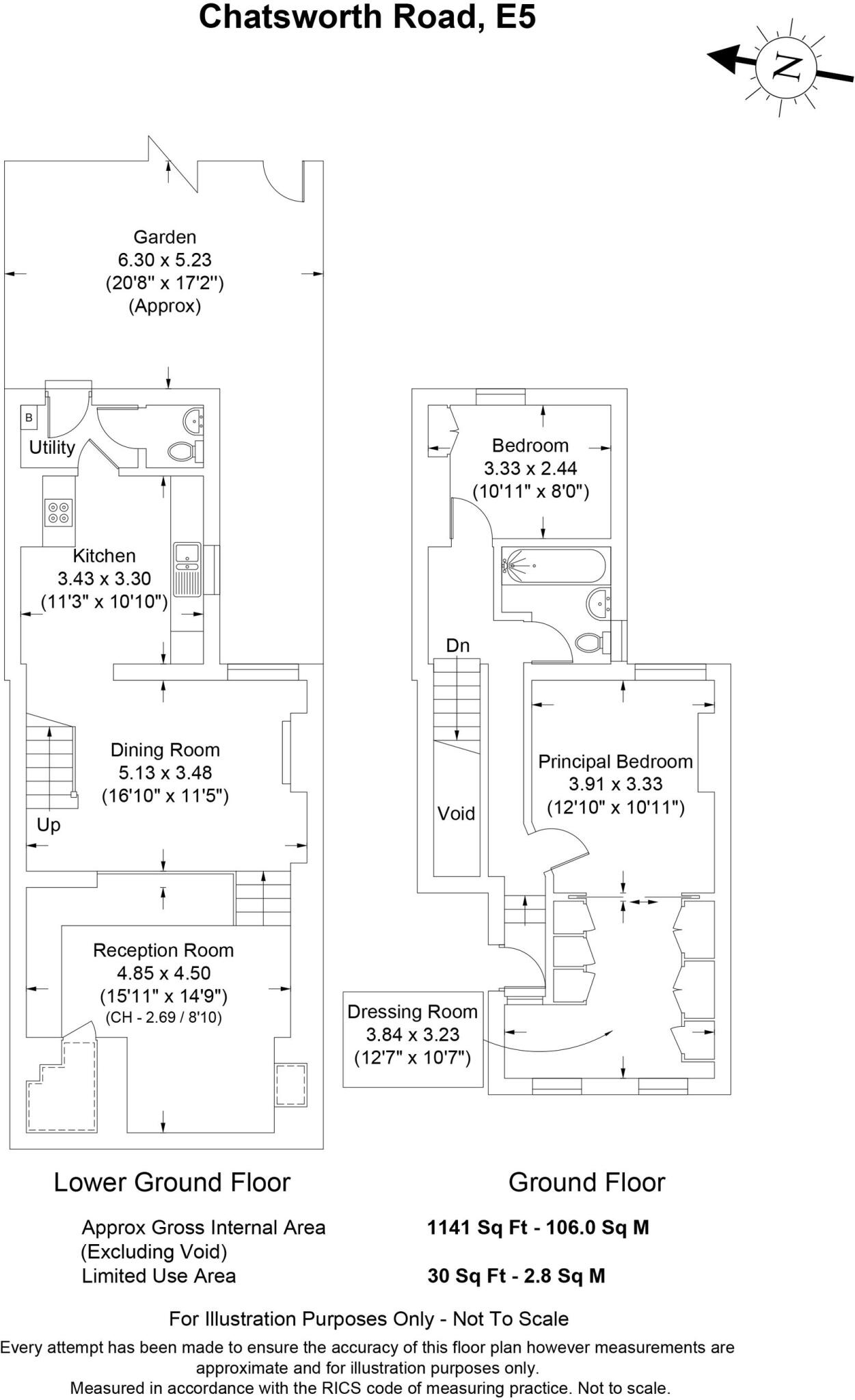
Located on the ever-popular Chatsworth Road this beautifully presented two-bedroom split level apartment combines refined design with spacious living.
Property Oracle says ..
This property is a 2-bedroom, 1-bathroom flat located in Clapton, Hackney, with a list price of £850,000. The property boasts 1,140.97 sqft of living space and a garden. The area benefits from good transport links, with several Overground stations and a Greater Anglia station within a reasonable distance. Several well-regarded schools are also nearby. Compared to the average price of £635,333 and average price per sqft of £646 in the area, this property is priced above average, likely reflecting its size, condition, and desirable location. While nearby properties offer a range of prices, this property appears to be in excellent condition and benefits from a modern renovation. The garden is a significant addition, especially considering the property type and location. The lack of sqft data for nearby properties makes a precise comparison difficult, however, the price seems reasonable given the property’s features and the local market.
Therefore, we give this property 7 / 10. *Disclaimer: This is our option and does constitute a recommendation or financial advice. Do your own research. *
- Price
- 7
- Condition
- 9
- Location
- 8
- Land
- 7
- Bedrooms
- 2
- Bathrooms
- 1
- Sqft (est)
- 1,140.97
- Lot (est)
- 1,140.97
The heatmap indicates the level of crime in the area. The color of the heatmap indicates the crime severity and recency.
Metrics Year-on-Year
- Average area value
- 493,056.00 £Decreased by 16.30 %
- Est sale value
- 836,331.01 £Increased by 15.80 %
- Average area rental value
- 2,526.00 £/moIncreased by 9.40 %
- Est letting value
- 3,422.91 £/moIncreased by 50.00 %
- Est rental Yield
- 6.15 %Increased by 30.85 %
- Crime Rate
- 9.00 %Unchanged by 0.00 %
Agent Activity
Story of Home created the listing.
Nearby Schools
| Name | Type | Ofsted | Distance |
|---|---|---|---|
| Rushmore Primary School | Community School | Good | 0.15 KM |
| Millfields Children'S Centre | Children's Centre | 0.50 KM | |
| Millfields Community School | Community School | Good | 0.57 KM |
| Mandeville Primary School | Community School | Good | 0.70 KM |
| Clapton Girls' Academy | Academy Converter | Outstanding | 0.70 KM |
Images
Nearby Streets
| Name | Average Price | Average Sqft | Distance |
|---|---|---|---|
| Chatsworth Road | £ 0 | 0 | 0.00 KM |
| Fletching Road | £ 0 | 0 | 0.00 KM |
| Thyme Walk | £ 0 | 0 | 0.00 KM |
| Fisher Close | £ 0 | 0 | 0.00 KM |
| Lea Bridge Road Access Road | £ 0 | 0 | 0.00 KM |
Nearby Transport
| Name | NLC | TLC | Distance |
|---|---|---|---|
| Homerton | 6979 | HMN | 1.08 KM |
| Clapton | 6926 | CPT | 1.39 KM |
| Hackney Central | 6977 | HKC | 1.51 KM |
| Lea Bridge | 6927 | LEB | 1.54 KM |
| Hackney Downs | 6867 | HAC | 1.85 KM |
Nearby Listings
| Address | Price | Type | Score | Distance |
|---|---|---|---|---|
| Chatsworth Road, Clapton, E5 | £ 850,000 | BUY | 7 / 10 | 0.00 KM |
| Chatsworth Road, Lower Clapton, Hackney, London, E5 | £ 850,000 | BUY | 8 / 10 | 0.00 KM |
| Chatsworth Road, By Millfields Park, E5 | £ 535,000 | BUY | Unknown | 0.05 KM |
| Chatsworth Road, Clapton | £ 650,000 | BUY | Unknown | 0.05 KM |
| Chatsworth Road, Lower Clapton, London, E5 | £ 700,000 | BUY | 7 / 10 | 0.06 KM |
Nearby Properties
| Address | Price | Distance |
|---|---|---|
| 174a Chatsworth Road | £ 57,000 | 0.04 KM |
| 162c Chatsworth Road | £ 472,500 | 0.04 KM |
| 178 Chatsworth Road | £ 78,000 | 0.04 KM |
| 162a Chatsworth Road | £ 500,000 | 0.04 KM |
| 148 Chatsworth Road | £ 670,000 | 0.04 KM |