Tolldene Close, Knaphill, GU21
By Seymours Estate Agents
£ 420,000
Reviews
3 out of 5 stars
Seymours Estate Agents says ..
This terraced home is offered to market in immaculate condition having been fully renovated throughout by the current owners who have created a wonderful family home. Upon entering the property you are immediately aware of the high standard of finish, which is a theme that continues through...
Property Oracle says ..
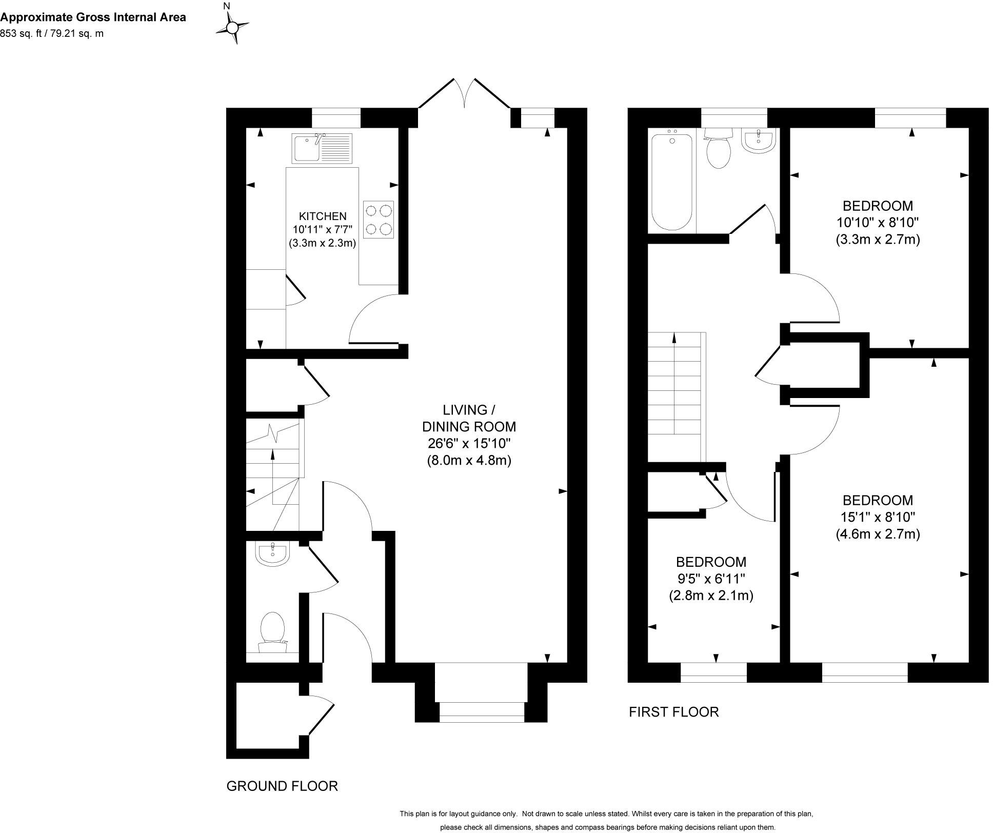
This property is a 3-bedroom, 1-bathroom terraced house located in Tolldene Close, Knaphill, Woking, Surrey. It is listed at £420,000 and has 852.61 sqft of living space. The property benefits from a garden. The property appears to be in good condition. The images show a recently decorated interior with modern fixtures and fittings. The kitchen and bathroom are contemporary and well-maintained. There is evidence of some recent modernisation, suggesting the property is in good repair and doesn’t require significant renovation work. The location is good. Knaphill is a residential area with several schools nearby, including St John’s Primary School and Beaufort Primary School, both within a reasonable distance. Several train stations are also within commuting distance, providing good transport links to Woking and London. Considering the average price per sqft in the area is £483, and this property is listed at £420,000 for 852.61 sqft, the list price appears slightly below average. However, the lack of plot size data makes a definitive assessment of value difficult. Nearby comparable properties on Tolldene Close are listed between £325,000 and £415,000, suggesting the list price is at the higher end of the range for similar properties on the same street. The presence of a garden, and the overall good condition of the property may justify the slightly higher price compared to some of the other nearby listings.
Therefore, we give this property 7 / 10. *Disclaimer: This is our option and does constitute a recommendation or financial advice. Do your own research. *
- Price
- 7
- Condition
- 8
- Location
- 7
- Land
- 7
- Bedrooms
- 3
- Bathrooms
- 1
- Sqft (est)
- 852.61
The heatmap indicates the level of crime in the area. The color of the heatmap indicates the crime severity and recency.
Metrics Year-on-Year
- Average area value
- 586,400.00 £Increased by 18.76 %
- Est sale value
- 405,842.36 £Increased by 6.01 %
- Average area rental value
- 2,150.00 £/moIncreased by 9.47 %
- Est letting value
- 852.61 £/moUnchanged by 0.00 %
- Est rental Yield
- 4.40 %Decreased by 7.76 %
- Crime Rate
- 9.00 %Unchanged by 0.00 %
Agent Activity
Seymours Estate Agents created the listing.
Nearby Schools
| Name | Type | Ofsted | Distance |
|---|---|---|---|
| St John'S Primary School | Academy Sponsor Led | Requires improvement | 0.55 KM |
| St John'S Primary School And Sure Start Children'S Centre | Children's Centre | 0.55 KM | |
| Beaufort Primary School | Academy Converter | Good | 0.72 KM |
| The Winston Churchill School A Specialist Sports College | Foundation School | Good | 0.81 KM |
| St Hugh Of Lincoln Catholic Primary School | Academy Converter | Good | 1.14 KM |
Images
Nearby Streets
| Name | Average Price | Average Sqft | Distance |
|---|---|---|---|
| Beechwood Close | £ 0 | 0 | 0.00 KM |
| Robin Hood Roundabout cycle path | £ 0 | 0 | 0.00 KM |
| Lockfield Drive cycle path | £ 0 | 0 | 0.00 KM |
| Oakway | £ 475,000 | 0 | 0.00 KM |
| Prestbury Court | £ 0 | 0 | 0.00 KM |
Nearby Transport
| Name | NLC | TLC | Distance |
|---|---|---|---|
| Brookwood | 5687 | BKO | 3.90 KM |
| Worplesdon | 5686 | WPL | 4.17 KM |
| Woking | 5685 | WOK | 5.24 KM |
| Longcross | 5674 | LNG | 7.37 KM |
| Sunningdale | 5671 | SNG | 8.65 KM |
Nearby Listings
| Address | Price | Type | Score | Distance |
|---|---|---|---|---|
| Tolldene Close, Knaphill, GU21 | £ 420,000 | BUY | 7 / 10 | 0.00 KM |
| Tolldene Close, Knaphill, Woking, Surrey, GU21 | £ 415,000 | BUY | 6 / 10 | 0.03 KM |
| Tolldene Close, Knaphill, Woking, Surrey, GU21 | £ 375,000 | BUY | Unknown | 0.04 KM |
| Knaphill | £ 720,000 | BUY | 6 / 10 | 0.07 KM |
| Mint Walk, Knaphill, Woking, Surrey, GU21 | £ 425,000 | BUY | 6 / 10 | 0.08 KM |
Nearby Properties
| Address | Price | Distance |
|---|---|---|
| 19 Tolldene Close | £ 345,000 | 0.01 KM |
| 18 Tolldene Close | £ 67,000 | 0.01 KM |
| 16 Tolldene Close | £ 325,000 | 0.01 KM |
| 17 Tolldene Close | £ 240,000 | 0.01 KM |
| 8 Tolldene Close | £ 328,000 | 0.01 KM |