Lemington Grove, Bracknell, Berkshire, RG12
By Prospect Estate Agency
£ 465,000
Reviews
3 out of 5 stars
Prospect Estate Agency says ..
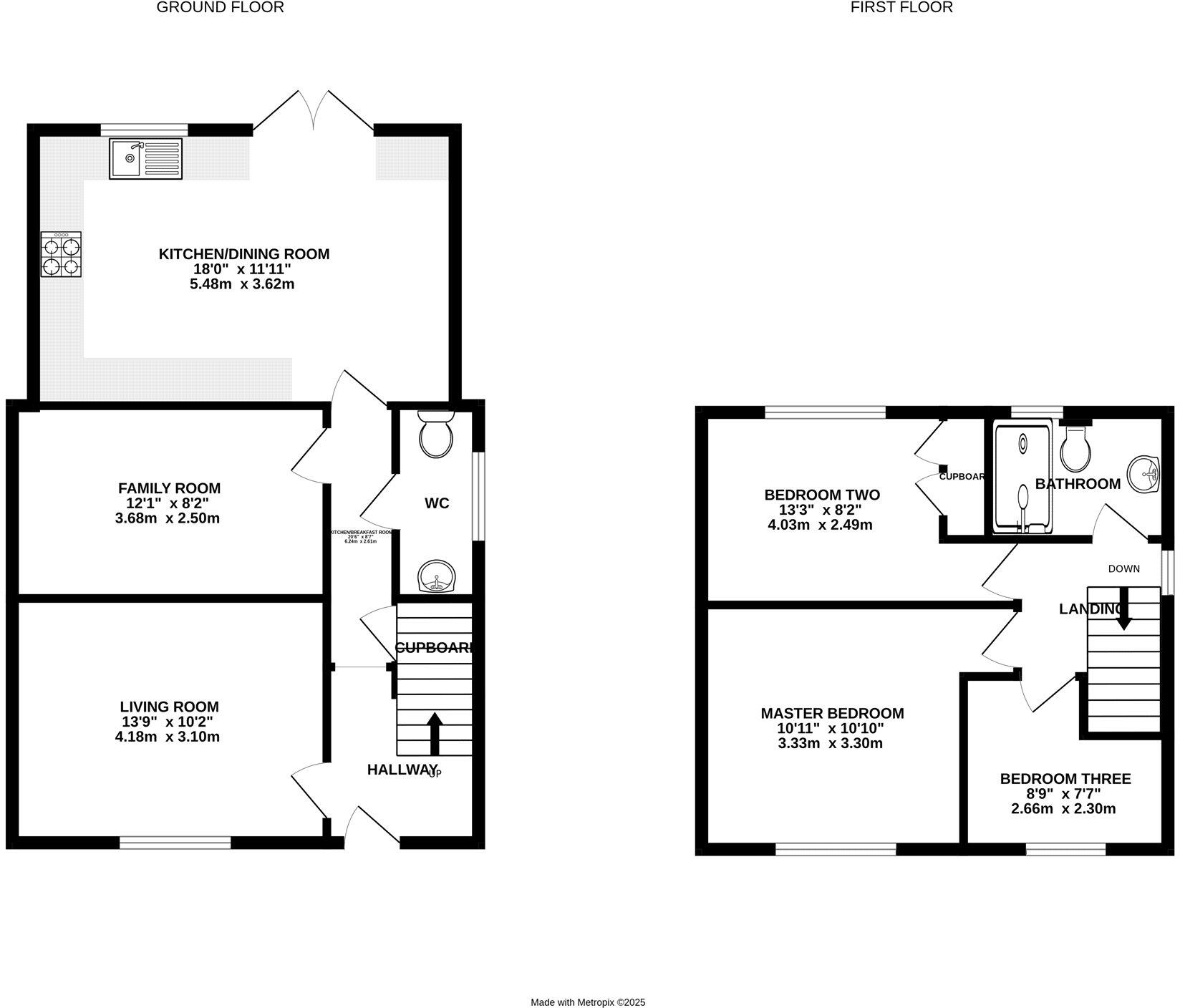
Located in the well-regarded and desirable residential area of Easthampstead, towards the end of the cul-de-sac this very well presented three-bedroom home provides extended accommodation to the ground floor. To the ground floor layout includes a front aspect living room off the main...
Property Oracle says ..
Lemington Grove is located in Old Bracknell, Bracknell Forest, Berkshire. The property is an end of terrace house with three bedrooms and one bathroom. It has a list price of £465,000 and is 1,239.14 square feet. The average price for properties in the area is £378,333, with an average size of 982 square feet and an average price per square foot of £385. The property benefits from being close to several schools, including Fox Hill Primary School (0.40 km), which has a good Ofsted rating. Bracknell train station is also within reasonable proximity (1.51 km), providing convenient access to transport links. Based on the provided images, the property appears to be in good condition. The kitchen and bathroom have been recently modernised, and the property is generally well-maintained. There is a garden present at the rear of the property. Considering the property’s location, condition, and the presence of a garden, the list price of £465,000 appears slightly higher than the average price for the area. However, the property is larger than average, and its modernised state likely justifies the higher price point. Nearby comparable properties on Lemington Grove itself support this assessment, with prices ranging from £233,000 to £440,000. The higher end of this range is closer to the list price of this property, suggesting that the asking price is within the reasonable range for the area, given the property’s features.
Therefore, we give this property 7 / 10. *Disclaimer: This is our option and does constitute a recommendation or financial advice. Do your own research. *
- Price
- 7
- Condition
- 8
- Location
- 7
- Land
- 7
- Bedrooms
- 3
- Bathrooms
- 1
- Sqft (est)
- 1,239.14
The heatmap indicates the level of crime in the area. The color of the heatmap indicates the crime severity and recency.
Metrics Year-on-Year
- Average area value
- 260,000.00 £Decreased by 33.37 %
- Est sale value
- 615,852.58 £Increased by 19.47 %
- Average area rental value
- 1,598.00 £/moDecreased by 1.84 %
- Est letting value
- 3,717.42 £/moIncreased by 200.00 %
- Est rental Yield
- 7.38 %Increased by 47.31 %
- Crime Rate
- 6.00 %Unchanged by 0.00 %
Agent Activity
Prospect Estate Agency marked this listing as sold.
Prospect Estate Agency created the listing.
Nearby Schools
| Name | Type | Ofsted | Distance |
|---|---|---|---|
| Fox Hill Primary School | Community School | Good | 0.40 KM |
| Rowans And Sycamores Children'S Centre | Children's Centre | 0.46 KM | |
| St Michael'S Easthampstead Church Of England Voluntary Aided Primary School | Voluntary Aided School | Good | 0.84 KM |
| The Brakenhale School | Academy Sponsor Led | Good | 0.88 KM |
| Birch Hill Primary School | Community School | Good | 1.00 KM |
Images
Nearby Streets
| Name | Average Price | Average Sqft | Distance |
|---|---|---|---|
| Rainforest Walk | £ 0 | 0 | 0.00 KM |
| Bagshot Road | £ 296,000 | 0 | 0.00 KM |
| Bagshot Road | £ 0 | 0 | 0.00 KM |
| Milton Close | £ 0 | 0 | 0.00 KM |
| Sports Centre Roundabout | £ 0 | 0 | 0.00 KM |
Nearby Transport
| Name | NLC | TLC | Distance |
|---|---|---|---|
| Bracknell | 5693 | BCE | 1.51 KM |
| Martins Heron | 5692 | MAO | 3.20 KM |
| Camberley | 5682 | CAM | 7.09 KM |
| Blackwater | 5625 | BAW | 8.04 KM |
| Bagshot | 5681 | BAG | 8.04 KM |
Nearby Listings
| Address | Price | Type | Score | Distance |
|---|---|---|---|---|
| Lemington Grove, Bracknell, Berkshire, RG12 | £ 465,000 | BUY | 7 / 10 | 0.00 KM |
| Lemington Grove, Bracknell | £ 425,000 | BUY | 7 / 10 | 0.02 KM |
| Harcourt Road, Bracknell, Berkshire, RG12 | £ 415,000 | BUY | 7 / 10 | 0.14 KM |
| Harcourt Road, Bracknell, Berkshire, RG12 | £ 475,000 | BUY | 7 / 10 | 0.17 KM |
| Manston Drive, Bracknell, Berkshire | £ 350,000 | BUY | 6 / 10 | 0.19 KM |
Nearby Properties
| Address | Price | Distance |
|---|---|---|
| 12 Lemington Grove | £ 440,000 | 0.02 KM |
| 7 Lemington Grove | £ 332,500 | 0.02 KM |
| 13 Lemington Grove | £ 265,000 | 0.02 KM |
| 4 Lemington Grove | £ 233,000 | 0.02 KM |
| 6 Lemington Grove | £ 77,000 | 0.02 KM |