MA
Willow Way, Aldershot, GU12
By Mackenzie Smith
£ 400,000
Reviews
3 out of 5 stars
Mackenzie Smith says ..
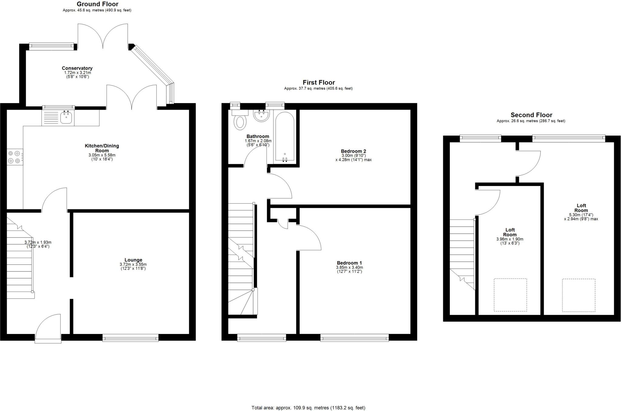
This well-renovated terraced home offers a generous kitchen/diner and a bright living room, with the added benefit of a rear conservatory. Arranged across three floors, the property includes four bedrooms and is situated in a residential area.
Property Oracle says ..
Therefore, we give this property 6 / 10. *Disclaimer: This is our option and does constitute a recommendation or financial advice. Do your own research. *
- Price
- 6
- Condition
- 6
- Location
- 7
- Land
- 7
- Bedrooms
- 4
- Bathrooms
- 0
The heatmap indicates the level of crime in the area. The color of the heatmap indicates the crime severity and recency.
Metrics Year-on-Year
- Average area value
- 250,000.00 £Increased by 29.42 %
- Average area rental value
- 833.00 £/moDecreased by 23.08 %
- Est rental Yield
- 4.00 %Decreased by 40.56 %
- Crime Rate
- 6.00 %Unchanged by 0.00 %
from 193,175.00 £
from 1,083.00 £/mo
from 6.73 %
from 6.00 %
Agent Activity
Mackenzie Smith created the listing.
Nearby Schools
| Name | Type | Ofsted | Distance |
|---|---|---|---|
| Ash Manor School | Community School | Good | 0.95 KM |
| St Paul'S C/E Infant School & Sure Start Children'S Centre | Children's Centre | 1.12 KM | |
| St Paul'S Cofe Infant School | Voluntary Controlled School | Good | 1.29 KM |
| Maple Vue Children'S Centre | Children's Centre | 1.31 KM | |
| Walsh Cofe Junior School | Voluntary Controlled School | Requires improvement | 1.33 KM |
Images
Nearby Streets
| Name | Average Price | Average Sqft | Distance |
|---|---|---|---|
| Chestnut Avenue | £ 385,000 | 0 | 0.00 KM |
| The Moors | £ 0 | 0 | 0.00 KM |
| Oak Way | £ 0 | 0 | 0.00 KM |
| Blackwater Way | £ 0 | 0 | 0.00 KM |
| Fenwick Court | £ 0 | 0 | 0.00 KM |
Nearby Transport
| Name | NLC | TLC | Distance |
|---|---|---|---|
| Aldershot | 5623 | AHT | 2.70 KM |
| Ash | 5641 | ASH | 2.93 KM |
| Ash Vale | 5547 | AHV | 4.12 KM |
| North Camp | 5636 | NCM | 4.21 KM |
| Farnborough (Main) | 5521 | FNB | 6.81 KM |
Nearby Listings
| Address | Price | Type | Score | Distance |
|---|---|---|---|---|
| Willow Way, Aldershot, GU12 | £ 400,000 | BUY | 6 / 10 | 0.00 KM |
| Tongham Road, Aldershot, Hampshire | £ 375,000 | BUY | 6 / 10 | 0.09 KM |
| Willow Way, Aldershot, Hampshire, GU12 | £ 375,000 | BUY | 6 / 10 | 0.14 KM |
| Willow Way, Aldershot, Hampshire, GU12 | £ 375,000 | BUY | 5 / 10 | 0.19 KM |
| Willow Way, Aldershot, Hampshire, GU12 | £ 375,000 | BUY | 6 / 10 | 0.19 KM |
Nearby Properties
| Address | Price | Distance |
|---|---|---|
| 61 Willow Way | £ 190,000 | 0.02 KM |
| 34 Willow Way | £ 185,000 | 0.02 KM |
| 45 Willow Way | £ 137,500 | 0.02 KM |
| 54 Willow Way | £ 175,000 | 0.02 KM |
| 71 Willow Way | £ 279,950 | 0.02 KM |