Ashtons says ..
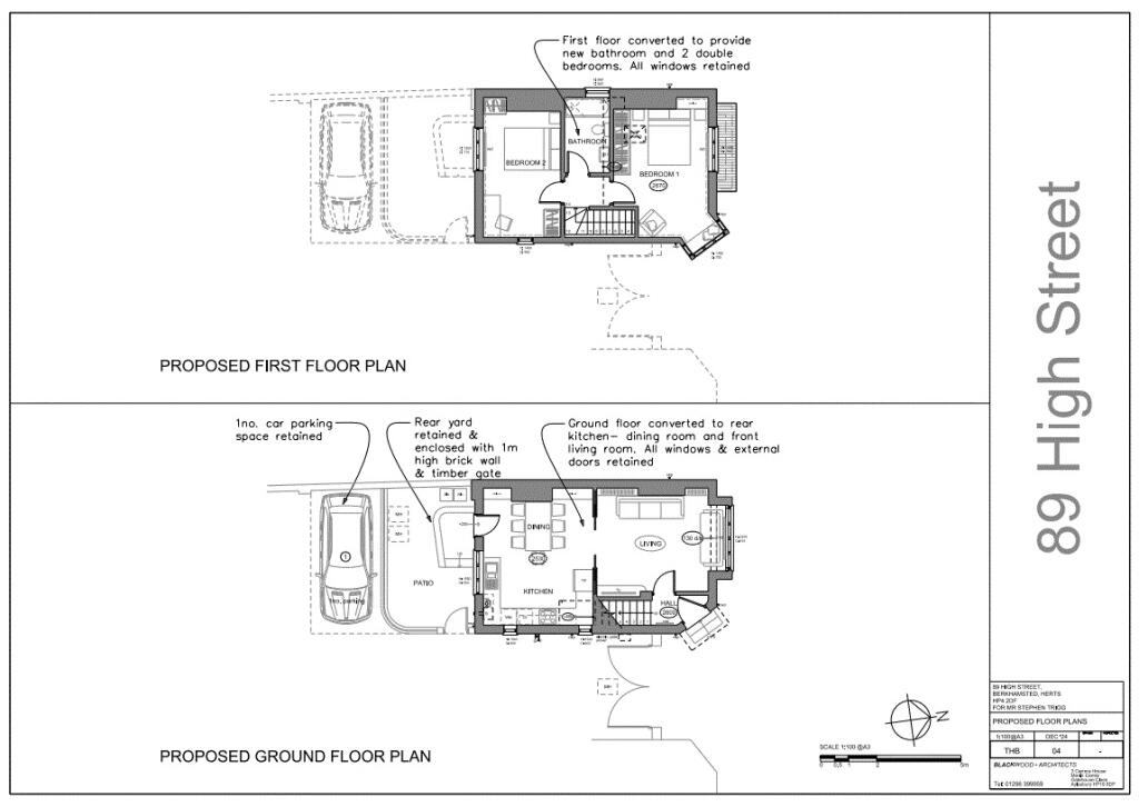
An exciting opportunity to convert this beautiful detached, Victorian building currently used as commercial office space, to a house located in the centre of Berkhamsted with parking.
Property Oracle says ..
The property is located on High Street, Berkhamsted, a desirable location in Hertfordshire. Berkhamsted offers a good selection of amenities, including shops, restaurants, and schools. The proximity to Berkhamsted train station, providing convenient access to London, further enhances its appeal. Several highly-rated schools are within a short distance, making it attractive to families. However, the plot size is very small, which may limit outdoor space.
The property appears to be in good condition, having undergone recent modernisation. The interior is presented in a clean and modern style. The exterior is well-maintained and presents a charming character.
The list price of £625,000 is slightly below the average price for the area (£757,938). However, the property’s smaller size (864 sqft compared to the average of 1141 sqft) and lack of significant land needs to be considered. The average price per sqft in the area is £664, while this property’s price per sqft is approximately £723. This suggests that the property might be slightly overpriced compared to similar properties in the area, despite its desirable location and good condition. Further analysis of comparable properties with similar features and plot sizes would be beneficial.
Therefore, we give this property 6 / 10. *Disclaimer: This is our option and does constitute a recommendation or financial advice. Do your own research. *
- Price
- 7
- Condition
- 9
- Location
- 9
- Land
- 1
- Bedrooms
- 2
- Bathrooms
- 1
- Sqft (est)
- 864.00
The heatmap indicates the level of crime in the area. The color of the heatmap indicates the crime severity and recency.
Metrics Year-on-Year
- Average area value
- 844,000.00 £Increased by 24.40 %
- Est sale value
- 603,936.00 £Decreased by 21.28 %
- Average area rental value
- 1,700.00 £/moDecreased by 15.25 %
- Est letting value
- 864.00 £/moDecreased by 50.00 %
- Est rental Yield
- 2.42 %Decreased by 31.83 %
- Crime Rate
- 38.00 %Unchanged by 0.00 %
Agent Activity
Ashtons created the listing.
Nearby Schools
| Name | Type | Ofsted | Distance |
|---|---|---|---|
| Berkhamsted School | Other Independent School | 0.32 KM | |
| Victoria Church Of England Infant And Nursery School | Voluntary Aided School | Outstanding | 0.53 KM |
| Swing Gate Infant School And Nursery | Community School | Good | 0.55 KM |
| Ashlyns School | Foundation School | Good | 0.76 KM |
| The Thomas Coram Church Of England School | Voluntary Aided School | Good | 0.84 KM |
Images
Nearby Streets
| Name | Average Price | Average Sqft | Distance |
|---|---|---|---|
| Manor Close | £ 0 | 0 | 0.00 KM |
| Priory Court | £ 325,000 | 0 | 0.00 KM |
| Beechcroft | £ 0 | 0 | 0.00 KM |
| Millfield | £ 0 | 0 | 0.00 KM |
| Hamilton Road | £ 0 | 0 | 0.00 KM |
Nearby Transport
| Name | NLC | TLC | Distance |
|---|---|---|---|
| Berkhamsted | 1390 | BKM | 0.55 KM |
| Hemel Hempstead | 1391 | HML | 7.85 KM |
| Tring | 1393 | TRI | 8.36 KM |
Nearby Listings
| Address | Price | Type | Score | Distance |
|---|---|---|---|---|
| 89, High Street, Berkhamsted, HP4 | £ 625,000 | BUY | 6 / 10 | 0.00 KM |
| Silent Sale, Berkhamsted, HP4 | £ 750,000 | BUY | Unknown | 0.01 KM |
| The Rex, High Street, Berkhamsted, Hertfordshire, HP4 | £ 350,000 | BUY | 6 / 10 | 0.06 KM |
| Victoria Road, Berkhamsted | £ 500,000 | BUY | 7 / 10 | 0.07 KM |
| Manor Street, Berkhamsted, Hertfordshire, HP4 | £ 595,000 | BUY | 6 / 10 | 0.07 KM |
Nearby Properties
| Address | Price | Distance |
|---|---|---|
| 72 High Street | £ 655,000 | 0.04 KM |
| 66 High Street | £ 547,000 | 0.04 KM |
| 70 High Street | £ 620,000 | 0.04 KM |
| 9 Victoria Road | £ 442,500 | 0.09 KM |
| 28 Victoria Road | £ 430,000 | 0.09 KM |