Hamilton Court, Nelson Road, Westward Ho!, Bideford, EX39
BR

Hamilton Court, Nelson Road, Westward Ho!, Bideford, EX39

By Brights

£ 240,000

Reviews

2 out of 5 stars

Brights says ..

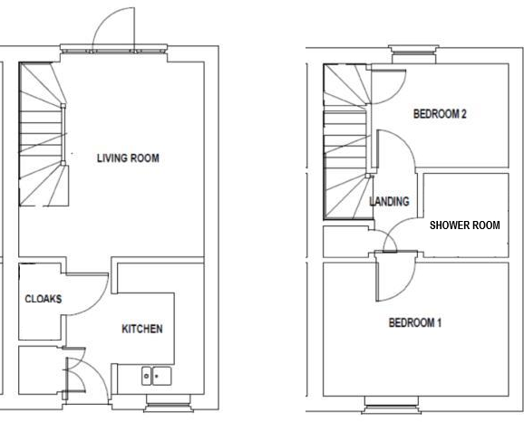
A modern two bedroom terrace property occupying a central village seaside location. Having tidy neutral decor, uPVC double glazing, gas fired central heating and a parking space to the rear - originally built 2012

Property Oracle says ..

This two-bedroom terraced house in Hamilton Court, Westward Ho!, offers a convenient seaside location within the village. The property’s description highlights tidy neutral décor, double glazing, gas central heating, and a parking space. Images reveal a clean, reasonably well-maintained interior with a small, enclosed rear yard. The property is presented as a ready-to-move-in option, which may appeal to a range of buyers. However, there are factors that must be considered. First, the information provided for comparison properties is inconsistent, with a significant lack of square footage data. Therefore, a complete analysis of value cannot be completed. Second, the limited size of the garden may be a drawback for families or those seeking a larger outdoor space. The schools mentioned in the area require a short journey by car. Finally, whilst the location in the village may be seen as a positive, the distance to further amenities may not be ideal for all buyers. In short, the property offers a decent balance of features but prospective buyers may want to carefully consider the size of the garden and investigate commute times to reach more significant facilities.

Therefore, we give this property 5 / 10. *Disclaimer: This is our option and does constitute a recommendation or financial advice. Do your own research. *

Price
7
Condition
6
Location
7
Land
2
Bedrooms
2
Bathrooms
1
Sqft (est)
721.18

The heatmap indicates the level of crime in the area. The color of the heatmap indicates the crime severity and recency.

Metrics Year-on-Year

Average area value
421,797.00 £
Increased by 27.32 %
from 331,301.00 £
Est sale value
334,627.52 £
Increased by 66.31 %
from 201,209.22 £
Average area rental value
913.00 £/mo
Increased by 18.73 %
from 769.00 £/mo
Est letting value
721.18 £/mo
from 0.00 £/mo
Est rental Yield
2.60 %
Decreased by 6.81 %
from 2.79 %
Crime Rate
141.00 %
Unchanged by 0.00 %
from 141.00 %

Agent Activity

  • Brights created the listing.

Nearby Schools

NameTypeOfstedDistance
St George'S Church Of England (Va) Infant And Nursery SchoolVoluntary Aided SchoolGood2.59 KM
St Margaret'S Church Of England (Aided) Junior SchoolVoluntary Aided SchoolRequires improvement2.62 KM
St Helen'S Church Of England SchoolAcademy Converter2.83 KM
Kingsley SchoolOther Independent School3.08 KM
Bideford CollegeAcademy Sponsor LedRequires improvement3.37 KM

Images

Picture No. 03 Picture No. 06 Picture No. 08 Picture No. 11 Picture No. 13 Picture No. 18 Picture No. 20 Picture No. 19 Picture No. 22 Picture No. 09 Picture No. 10 Picture No. 12 Picture No. 15 Picture No. 16 Picture No. 21 Picture No. 07 Picture No. 17 Picture No. 14

Nearby Streets

NameAverage PriceAverage SqftDistance
Chichester Way £ 000.00 KM
Park Avenue £ 395,00000.00 KM
Queens Close £ 000.00 KM
Park View Terrace £ 000.00 KM
Pavillion View £ 487,50000.00 KM

Nearby Listings

AddressPriceTypeScoreDistance
Hamilton Court, Nelson Road, Westward Ho!, Bideford, EX39 £ 240,000BUY5 / 100.00 KM
Westbeach Resort Nelson Road, EX39 £ 90,000BUY7 / 100.01 KM
Nelson Road, Westward Ho, Bideford, EX39 £ 595,000BUY7 / 100.05 KM
Atlantic Way, Westward Ho, Bideford £ 310,000BUY6 / 100.08 KM
Bath Hotel Road, Westward Ho, Bideford £ 450,000BUY6 / 100.08 KM

Nearby Properties

AddressPriceDistance
19 Nelson Road £ 250,0000.01 KM
9b Nelson Road £ 46,0000.01 KM
12 Nelson Road £ 425,0000.01 KM
11 Nelson Road £ 360,0000.02 KM
17a Nelson Road £ 85,0000.05 KM