Chancellors says ..
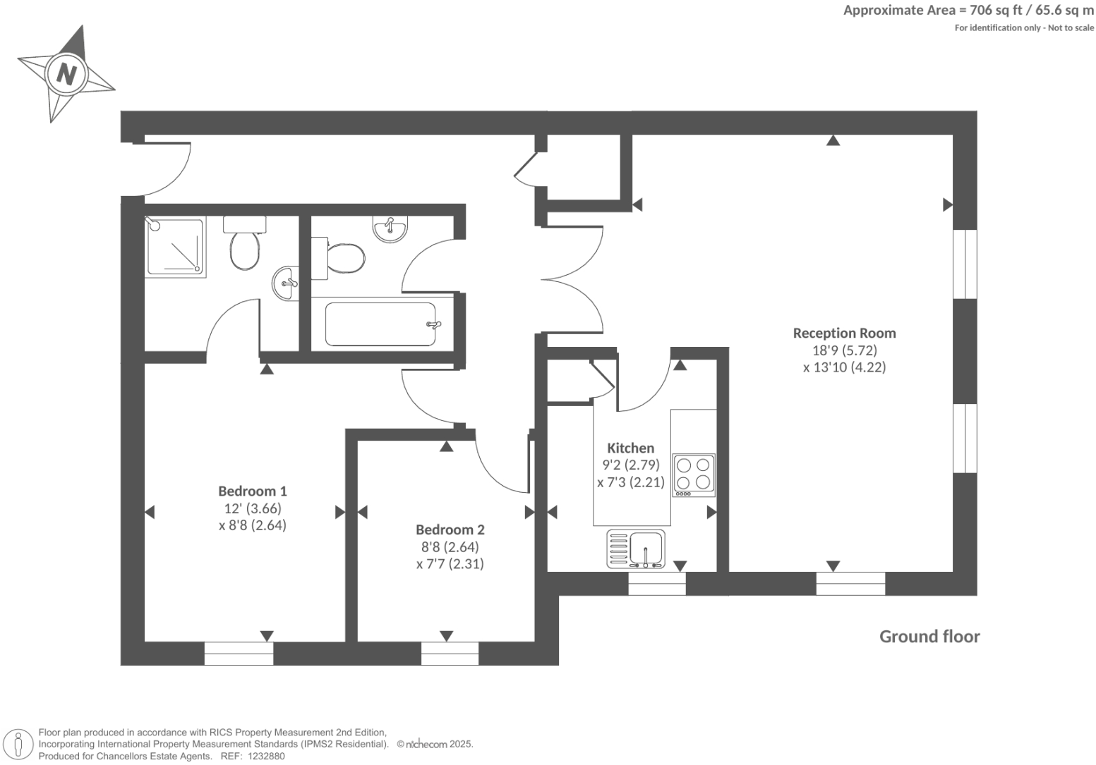
Chancellors are delighted to be able to offer to the open market this ground floor, two double bedroom apartment with master en-suite, family bathroom, fully fitted kitchen, dual-aspect views, allocated parking and communal areas.
Property Oracle says ..
This two-bedroom apartment in Banbury, Oxfordshire, is listed for £180,000. The property is located within a residential area, offering relative proximity to Banbury train station and several schools. The provided photos showcase a reasonably maintained apartment, though the interior decor is quite dated. The kitchen and bathroom, while functional, show their age and could use modernization. The apartment itself doesn’t appear to have any major structural issues or require extensive repairs. A key aspect to note is the lack of any external land associated with the property; it is an apartment within a larger complex. While the price seems to be generally in line with similar properties in the area, further analysis would require a definitive price-per-square-foot calculation and a better understanding of the property’s specific features and the amenities included within the complex. Buyers should be prepared for potential renovation costs, particularly in the kitchen and bathroom to bring them up to contemporary standards. Overall, this could represent a reasonable investment, particularly for first-time buyers or investors. The property’s location and reasonable price point are likely its strongest selling points; however, potential buyers should have realistic expectations regarding the condition and the lack of outdoor space. Further information regarding the age of the property, service charges, and lease details would also be beneficial.
Therefore, we give this property 5 / 10. *Disclaimer: This is our option and does constitute a recommendation or financial advice. Do your own research. *
- Price
- 7
- Condition
- 6
- Location
- 7
- Land
- 1
- Bedrooms
- 2
- Bathrooms
- 1
- Sqft (est)
- 706.00
The heatmap indicates the level of crime in the area. The color of the heatmap indicates the crime severity and recency.
Metrics Year-on-Year
- Average area value
- 441,248.00 £Increased by 42.34 %
- Est sale value
- 261,926.00 £Decreased by 5.12 %
- Average area rental value
- 1,135.00 £/moIncreased by 0.27 %
- Est letting value
- 0.00 £/moDecreased by 100.00 %
- Est rental Yield
- 3.09 %Decreased by 29.45 %
- Crime Rate
- 6.00 %Unchanged by 0.00 %
Agent Activity
Chancellors created the listing.
Nearby Schools
| Name | Type | Ofsted | Distance |
|---|---|---|---|
| St Mary'S Church Of England Primary School, Banbury | Academy Converter | 0.10 KM | |
| St John'S Priory School | Other Independent School | 0.74 KM | |
| English Language Training | Miscellaneous | 0.88 KM | |
| Harriers Banbury Academy | Academy Converter | Good | 0.93 KM |
| Banbury Children And Family Centre | Children's Centre | 1.43 KM |
Images
Nearby Streets
| Name | Average Price | Average Sqft | Distance |
|---|---|---|---|
| Bolton Road | £ 0 | 0 | 0.00 KM |
| Church Walk | £ 0 | 0 | 0.00 KM |
| Mawle Court | £ 0 | 0 | 0.00 KM |
| Marlborough House | £ 188,317 | 0 | 0.00 KM |
| Dashwood Court | £ 0 | 0 | 0.00 KM |
Nearby Transport
| Name | NLC | TLC | Distance |
|---|---|---|---|
| Banbury | 4502 | BAN | 1.27 KM |
| Kings Sutton | 4508 | KGS | 7.99 KM |
Nearby Listings
| Address | Price | Type | Score | Distance |
|---|---|---|---|---|
| Banbury, Oxfordshire, OX16 | £ 160,000 | BUY | 5 / 10 | 0.00 KM |
| Banbury, Oxfordshire, OX16 | £ 180,000 | BUY | 5 / 10 | 0.00 KM |
| Foxhall Court, School Lane, Banbury | £ 100,000 | BUY | 6 / 10 | 0.02 KM |
| Merisham Court, Banbury | £ 110,000 | BUY | 6 / 10 | 0.03 KM |
| Merisham Court, Banbury | £ 155,000 | BUY | 5 / 10 | 0.03 KM |
Nearby Properties
| Address | Price | Distance |
|---|---|---|
| 15 Castle Street | £ 210,000 | 0.07 KM |
| 17 Castle Street | £ 183,000 | 0.07 KM |
| 68 Coopers Gate | £ 202,500 | 0.14 KM |
| 55 Coopers Gate | £ 51,950 | 0.14 KM |
| 50 Coopers Gate | £ 120,000 | 0.14 KM |