22 Victoria Street, Sheringham, Norfolk NR26 8JZ
AU

22 Victoria Street, Sheringham, Norfolk NR26 8JZ

By Auction House

£ 140,000

Reviews

2 out of 5 stars

Auction House says ..

FOR SALE BY LIVESTREAM AUCTION ON WEDNESDAY 10 DECEMBER AT 10AM TO REGISTER FOR LEGAL PACKS AND BIDDING INSTRUCTIONS PLEASE VISIT OUR WEBSITE

Property Oracle says ..

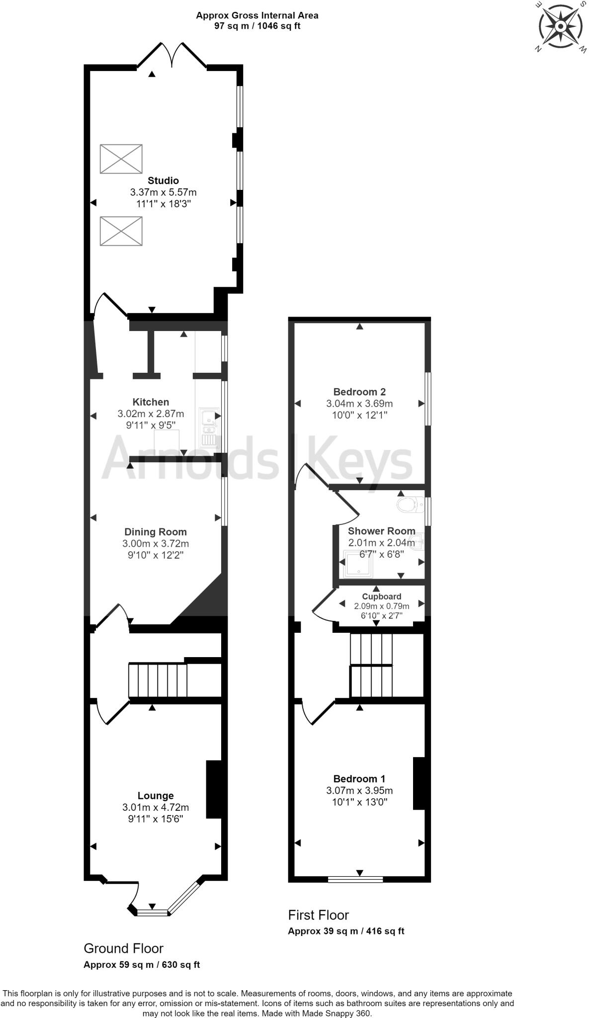
This end-of-terrace property at 22 Victoria Street, Sheringham, presents a significant renovation opportunity. While the location in the coastal town of Sheringham is desirable, the property itself requires extensive modernisation throughout. The interior features dated decor, and the extension at the rear is in poor condition. The property includes a garden that needs landscaping. The asking price of £140,000 reflects the work required, making it an attractive prospect for investors or those looking to create a bespoke home in a sought-after location. The property is conveniently located near local amenities, transportation, and schools.

Therefore, we give this property 5 / 10. *Disclaimer: This is our option and does constitute a recommendation or financial advice. Do your own research. *

Price
8
Condition
3
Location
7
Land
4
Bedrooms
2
Bathrooms
0
Sqft (est)
1,044.10

The heatmap indicates the level of crime in the area. The color of the heatmap indicates the crime severity and recency.

Metrics Year-on-Year

Average area value
348,333.00 £
Increased by 12.03 %
from 310,939.00 £
Est sale value
465,668.60 £
Increased by 35.98 %
from 342,464.80 £
Average area rental value
1,250.00 £/mo
Increased by 19.39 %
from 1,047.00 £/mo
Est letting value
1,044.10 £/mo
Unchanged by 0.00 %
from 1,044.10 £/mo
Est rental Yield
4.31 %
Increased by 6.68 %
from 4.04 %
Crime Rate
45.00 %
Unchanged by 0.00 %
from 45.00 %

Agent Activity

  • Auction House created the listing.

Nearby Schools

NameTypeOfstedDistance
Sheringham Community Primary SchoolCommunity SchoolGood1.44 KM
Sheringham High SchoolAcademy ConverterGood1.62 KM
Sheringham Woodfields SchoolFoundation Special SchoolOutstanding1.68 KM
Beeston Hall SchoolOther Independent School2.77 KM
St Andrew'S SchoolOther Independent Special SchoolGood3.27 KM

Images

1 T202511051719.jpg 3 T202511051719.png 4 T202511051719.jpg 5 T202511051719.jpg 6 T202511051719.jpg 7 T202511051719.jpg 8 T202511051719.jpg 9 T202511051719.jpg 10 T202511051719.jpg 11 T202511051719.jpg 12 T202511051719.jpg 2 T202511051719.jpg 13 T202511051719.jpg 14 T202511051719.jpg 15 T202511051719.jpg 16 T202511051719.jpg 17 T202511051719.jpg 18 T202511051719.jpg 19 T202511051719.jpg 20 T202511051719.jpg

Nearby Streets

NameAverage PriceAverage SqftDistance
Promenade £ 390,00000.00 KM
Garden Road £ 000.00 KM
Abbey Road £ 170,00000.00 KM
Heath Road £ 000.00 KM
Knowle Road £ 180,00000.00 KM

Nearby Transport

NameNLCTLCDistance
Sheringham7319SHM0.39 KM
West Runton7329WRN4.05 KM
Cromer7295CMR9.30 KM

Nearby Listings

AddressPriceTypeScoreDistance
22 Victoria Street, Sheringham, Norfolk NR26 8JZ £ 140,000BUY5 / 100.00 KM
Sheringham £ 525,000BUYUnknown0.04 KM
Victoria Street, Sheringham £ 250,000BUY5 / 100.05 KM
Barchams Yard, Sheringham £ 265,000BUYUnknown0.15 KM
Church Street, Sheringham £ 130,000BUYUnknown0.15 KM

Nearby Properties

AddressPriceDistance
7 Morris Street £ 350,0000.04 KM
15 Morris Street £ 250,0000.04 KM
41 Morris Street £ 110,0000.04 KM
16 Morris Street £ 525,0000.04 KM
27 Morris Street £ 278,0000.04 KM