Dunnock Road, Dunfermline, KY11
By Maloco & Associates
£ 190,000
Reviews
3 out of 5 stars
Maloco & Associates says ..
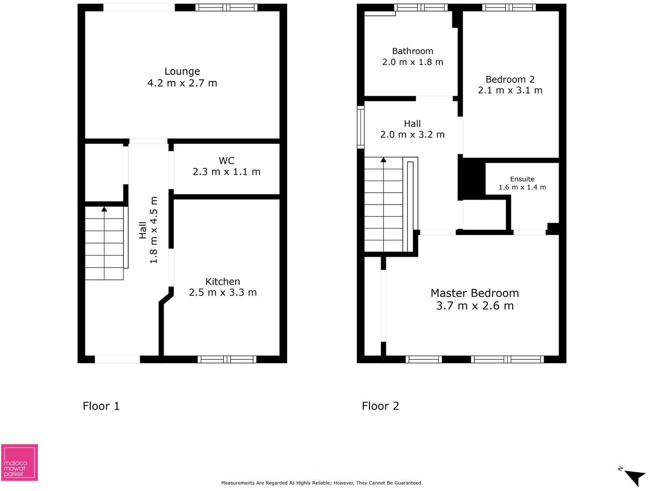
An immaculately presented, two bedroom, end terraced villa situated within a popular residential setting within the eastern expansion of Dunfermline. Located within a sought after residential setting on the outskirts of Duloch Park, Dunnock Road is an excellent location with Fife Leisure Park ...
Property Oracle says ..
The property is located in Dunfermline, Fife. The nearby transportation includes Inverkeithing, Rosyth and Dunfermline Queen Margaret.
The property appears to be in good condition, with modern fixtures and fittings. The interior is freshly decorated and well-maintained.
The property has a garden.
The property is listed for £190,000. The average price per square foot in the area is £594. The property has 630.66 square feet, which at the average price would be £374,611. However, the average property price in the area is £546,663 with an average size of 920 square feet. Considering this, the asking price seems reasonable.
Therefore, we give this property 7 / 10. *Disclaimer: This is our option and does constitute a recommendation or financial advice. Do your own research. *
- Price
- 8
- Condition
- 9
- Location
- 7
- Land
- 7
- Bedrooms
- 2
- Bathrooms
- 2
- Sqft (est)
- 630.66
The heatmap indicates the level of crime in the area. The color of the heatmap indicates the crime severity and recency.
Metrics Year-on-Year
- Average area value
- 546,663.00 £Increased by 20.32 %
- Est sale value
- 374,612.04 £Increased by 55.50 %
- Average area rental value
- 2,315.00 £/moIncreased by 58.13 %
- Est letting value
- 1,261.32 £/moIncreased by 100.00 %
- Est rental Yield
- 5.08 %Increased by 31.27 %
- Crime Rate
- 0.00 %
Agent Activity
Maloco & Associates created the listing.
Images
Nearby Streets
| Name | Average Price | Average Sqft | Distance |
|---|---|---|---|
| Dunnock Road | £ 352,663 | 0 | 0.00 KM |
| Rosefinch Wynd | £ 235,000 | 0 | 0.00 KM |
| Redshank Crescent | £ 206,000 | 0 | 0.00 KM |
| Goldcrest Place | £ 240,000 | 0 | 0.00 KM |
| Lindsay Street | £ 0 | 0 | 0.00 KM |
Nearby Transport
| Name | NLC | TLC | Distance |
|---|---|---|---|
| Inverkeithing | 9136 | INK | 2.24 KM |
| Rosyth | 9190 | ROS | 2.76 KM |
| Dunfermline Queen Margaret | 9186 | DFL | 3.60 KM |
| Dalgety Bay | 9135 | DAG | 4.17 KM |
| North Queensferry | 9189 | NQU | 4.66 KM |
Nearby Listings
| Address | Price | Type | Score | Distance |
|---|---|---|---|---|
| Dunnock Road, Dunfermline, KY11 | £ 190,000 | BUY | 7 / 10 | 0.00 KM |
| 43G, Mcdonald Street, Dunfermline | £ 149,000 | BUY | 7 / 10 | 0.10 KM |
| Rosefinch Wynd, Dunfermline | £ 239,995 | BUY | 7 / 10 | 0.10 KM |
| Rosefinch Wynd, Dunfermline, KY11 | £ 240,000 | BUY | 7 / 10 | 0.12 KM |
| McDonald Street, Dunfermline, Fife, KY11 | £ 250,000 | BUY | 7 / 10 | 0.13 KM |