St. Deinols Close, PENGAM, BLACKWOOD, NP12
By Cariad Property
£ 240,000
Reviews
3 out of 5 stars
Cariad Property says ..
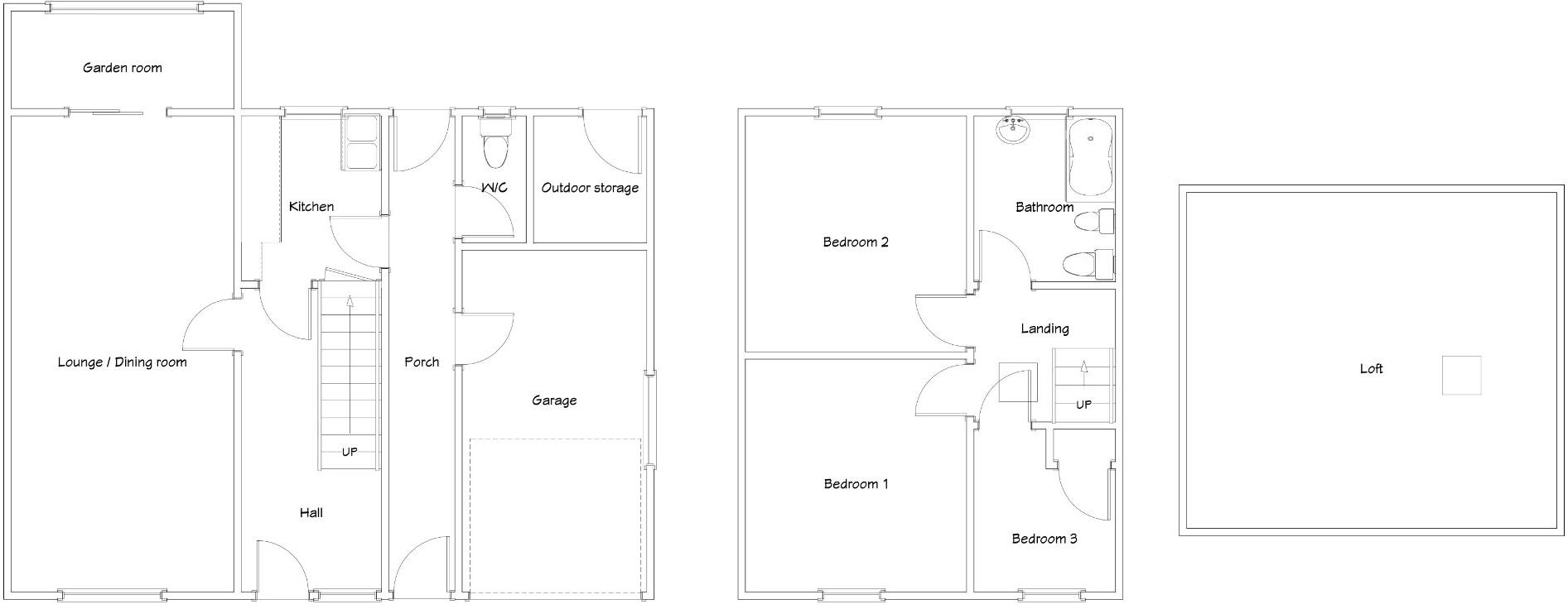
BEAUTIFUL FAMILY HOME, EXCELENT CUL DE SAC POSITION, LARGE LAVEL GARDENS. Three bedrooms, three reception rooms, two WCs, boarded loft space, manicured grounds, driveway, and garage. NO CHAIN.
Property Oracle says ..
The property is a 3 bedroom, 2 bathroom semi-detached house located in St. Deinols Close, Pengam, Blackwood, NP12 3TZ. The asking price is £240,000.
The property appears to be in generally good condition, although some aspects suggest it may benefit from some modernisation. The kitchen and bathrooms appear relatively modern, but the decor and carpets throughout the house are dated. The property benefits from a good sized garden.
The location is good, with nearby schools and transportation links. Pengam train station is within walking distance, offering convenient access to Blackwood and other areas. There are also several primary schools within a short distance.
Considering the average house price in the area is £226,000, and the average price per square foot is £278, the list price of £240,000 seems slightly on the higher side, particularly given the need for some modernisation. However, the property’s good location and garden could justify a slightly higher price compared to some of the other nearby semi-detached properties. More information on the square footage of the property would allow for a more precise price per square foot comparison. Based on the images provided, the property could be described as a traditional property that has had some modernisation.
Therefore, we give this property 7 / 10. *Disclaimer: This is our option and does constitute a recommendation or financial advice. Do your own research. *
- Price
- 6
- Condition
- 7
- Location
- 8
- Land
- 7
- Bedrooms
- 3
- Bathrooms
- 2
The heatmap indicates the level of crime in the area. The color of the heatmap indicates the crime severity and recency.
Metrics Year-on-Year
- Average area value
- 277,488.00 £Increased by 36.96 %
- Average area rental value
- 975.00 £/moIncreased by 31.40 %
- Est rental Yield
- 4.22 %Decreased by 3.87 %
- Crime Rate
- 9.00 %Unchanged by 0.00 %
Agent Activity
Cariad Property created the listing.
Nearby Schools
| Name | Type | Ofsted | Distance |
|---|---|---|---|
| Ysgol Gymraeg Trelyn | Welsh Establishment | 0.44 KM | |
| Pengam Primary School | Welsh Establishment | 0.44 KM | |
| Tiryberth Primary School | Welsh Establishment | 0.80 KM | |
| Glanynant Learning Centre (Pru) | Welsh Establishment | 0.82 KM | |
| Ysgol Gyfun Cwm Rhymni | Welsh Establishment | 0.85 KM |
Images
Nearby Streets
| Name | Average Price | Average Sqft | Distance |
|---|---|---|---|
| Woodland Place | £ 0 | 0 | 0.00 KM |
| Fair View | £ 140,000 | 0 | 0.00 KM |
| Horner Street | £ 0 | 0 | 0.00 KM |
| New Road | £ 139,950 | 0 | 0.00 KM |
| Glan-Ddu Terrace | £ 0 | 0 | 0.00 KM |
Nearby Transport
| Name | NLC | TLC | Distance |
|---|---|---|---|
| Pengam | 4021 | PGM | 1.06 KM |
| Hengoed | 4028 | HNG | 1.98 KM |
| Gilfach Fargoed | 4022 | GFF | 2.18 KM |
| Bargoed | 4011 | BGD | 3.13 KM |
| Ystrad Mynach | 4026 | YSM | 3.42 KM |
Nearby Listings
| Address | Price | Type | Score | Distance |
|---|---|---|---|---|
| St. Deinols Close, Pengam, NP12 | £ 225,000 | BUY | 7 / 10 | 0.00 KM |
| St. Deinols Close, PENGAM, BLACKWOOD, NP12 | £ 240,000 | BUY | 7 / 10 | 0.00 KM |
| Meadow Close, Pengam, NP12 | £ 199,950 | BUY | Unknown | 0.15 KM |
| Meadow Close, Blackwood | £ 180,000 | BUY | 7 / 10 | 0.16 KM |
| Meadow Close, Pengam, NP12 | £ 160,000 | BUY | 6 / 10 | 0.20 KM |
Nearby Properties
| Address | Price | Distance |
|---|---|---|
| 6 St Deinols Close | £ 129,000 | 0.00 KM |
| 31 St Deinols Close | £ 149,995 | 0.00 KM |
| 25 St Deinols Close | £ 112,000 | 0.00 KM |
| 34 St Deinols Close | £ 208,550 | 0.00 KM |
| 16 St Deinols Close | £ 152,000 | 0.00 KM |