Cedarwood Place, Lancaster
GF

Cedarwood Place, Lancaster

By GF Property Sales and Lettings

£ 565,000

Reviews

3 out of 5 stars

GF Property Sales and Lettings says ..

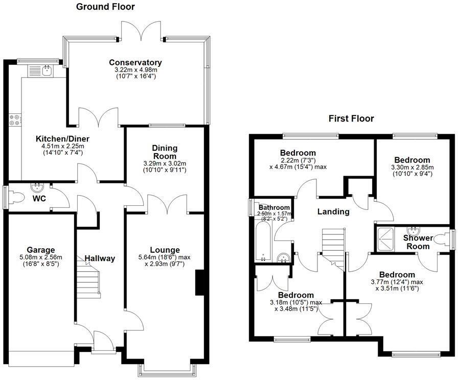
Nestled in the tranquil Cedarwood Place, Lancaster, this beautiful detached home offers a perfect blend of comfort and convenience. With four spacious bedrooms and two well-appointed bathrooms, this property is ideal for families seeking a peaceful retreat. Upon entering, you are welcom...

Property Oracle says ..

This detached property is located on Cedarwood Place in Lancaster, specifically in the John O’Gaunt locality. It features 4 bedrooms and 2 bathrooms within a 1,223.54 sqft space.

From the images, the property appears to be in good condition, with a modern kitchen and well-maintained living spaces. The bathrooms seem functional but could benefit from updating.

The property includes a well-sized garden, offering outdoor space.

The list price is £565,000. The average price per sqft in the area is £293.00, while this property is listed at approximately £461.77 per sqft based on its square footage. The average property price in the area is £216,667, significantly lower than the listing price, but the average square footage is also much smaller at 739 sqft. Nearby properties on Cedarwood Place have sold for between £223,000 and £410,000. Considering the size, detached nature, and apparent condition of the property, the price seems high compared to the local average, but potentially reasonable given the specific features of the house and the prices of other detached properties in the immediate vicinity.

The property is located within a reasonable distance of Lancaster train station and several schools, including Lancaster Christ Church Church Of England Primary School and Lancaster Royal Grammar School.

Therefore, we give this property 6 / 10. *Disclaimer: This is our option and does constitute a recommendation or financial advice. Do your own research. *

Price
5
Condition
7
Location
7
Land
7
Bedrooms
4
Bathrooms
2
Sqft (est)
1,223.54

The heatmap indicates the level of crime in the area. The color of the heatmap indicates the crime severity and recency.

Metrics Year-on-Year

Average area value
216,667.00 £
Increased by 6.72 %
from 203,021.00 £
Est sale value
358,497.22 £
Increased by 19.59 %
from 299,767.30 £
Average area rental value
634.00 £/mo
Increased by 11.82 %
from 567.00 £/mo
Est letting value
0.00 £/mo
from 0.00 £/mo
Est rental Yield
3.51 %
Increased by 4.78 %
from 3.35 %
Crime Rate
2.00 %
Unchanged by 0.00 %
from 2.00 %

Agent Activity

  • GF Property Sales and Lettings created the listing.

Nearby Schools

NameTypeOfstedDistance
Lancaster Christ Church Church Of England Primary SchoolVoluntary Aided SchoolGood0.94 KM
Central Lancaster High SchoolAcademy Converter1.20 KM
Castle View PrimaryAcademy Sponsor Led1.48 KM
Firbank Children'S CentreChildren's Centre1.59 KM
Lancaster Royal Grammar SchoolAcademy Converter1.61 KM

Images

IMG_0067.jpg IMG_0063.jpg IMG_0031.jpg IMG_0032.jpg IMG_0033.jpg IMG_0034.jpg IMG_0040.jpg IMG_0041.jpg IMG_0043.jpg IMG_0042.jpg IMG_0045.jpg IMG_0044.jpg IMG_0046.jpg IMG_0038.jpg IMG_0048.jpg IMG_0049.jpg IMG_0050.jpg IMG_0052.jpg IMG_0054.jpg IMG_0055.jpg IMG_0057.jpg IMG_0061.jpg IMG_0062.jpg IMG_0064.jpg IMG_0065.jpg IMG_0060.jpg IMG_0059.jpg IMG_0069.jpg IMG_0071.jpg

Nearby Streets

NameAverage PriceAverage SqftDistance
Quernmore Road £ 155,00000.00 KM
Stone Row Head £ 000.00 KM
Oakland Close £ 000.00 KM
Far Moor Lane £ 000.00 KM
Park Avenue £ 000.00 KM

Nearby Transport

NameNLCTLCDistance
Lancaster2685LAN3.53 KM
Bare Lane2690BAR7.30 KM
Carnforth2640CNF9.26 KM

Nearby Listings

AddressPriceTypeScoreDistance
Cedarwood Place, Lancaster £ 565,000BUY6 / 100.00 KM
Cedarwood Place, Lancaster £ 565,000BUY7 / 100.00 KM
Wentworth Drive, Lancaster, LA1 £ 540,000BUYUnknown0.10 KM
Standen Park House, Lancaster £ 450,000BUY6 / 100.12 KM
Woodlea Court, Lancaster | Private Cul de sac position £ 310,000BUYUnknown0.14 KM

Nearby Properties

AddressPriceDistance
16 Cedarwood Place £ 312,5000.01 KM
2 Cedarwood Place £ 223,0000.01 KM
1 Cedarwood Place £ 241,0000.01 KM
6 Cedarwood Place £ 142,9500.01 KM
18 Cedarwood Place £ 135,0000.01 KM