HI
Balkwell Avenue, North Shields, Tyne and Wear
By Hive Estates
£ 60,000
Reviews
3 out of 5 stars
Hive Estates says ..
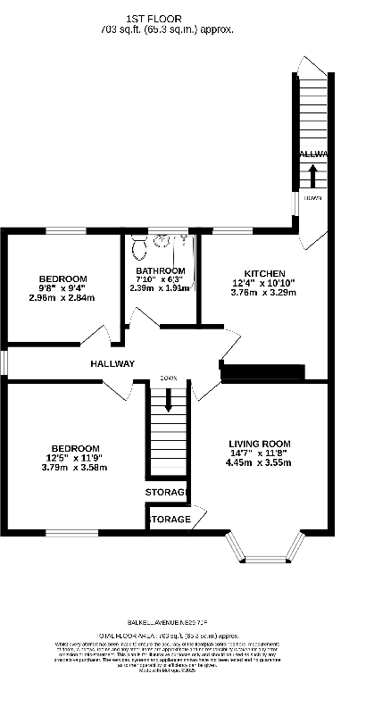
Hive Estates is delighted to present to the market this exciting renovation opportunity — a spacious and characterful two bedroom upper Tyneside flat, ideally located in the increasingly popular area of North Shields. Perfectly suited for investors, developers, or homeowners eager to tak...
Property Oracle says ..
Therefore, we give this property 6 / 10. *Disclaimer: This is our option and does constitute a recommendation or financial advice. Do your own research. *
- Price
- 8
- Condition
- 3
- Location
- 7
- Land
- 6
- Bedrooms
- 2
- Bathrooms
- 1
- Sqft (est)
- 50.10
The heatmap indicates the level of crime in the area. The color of the heatmap indicates the crime severity and recency.
Metrics Year-on-Year
- Average area value
- 911,990.00 £Increased by 52.54 %
- Est sale value
- 23,947.80 £Decreased by 4.59 %
- Average area rental value
- 1,200.00 £/moDecreased by 18.81 %
- Est letting value
- 0.00 £/moDecreased by 100.00 %
- Est rental Yield
- 1.58 %Decreased by 46.80 %
- Crime Rate
- 10.00 %Unchanged by 0.00 %
from 597,864.00 £
from 25,100.10 £
from 1,478.00 £/mo
from 50.10 £/mo
from 2.97 %
from 10.00 %
Agent Activity
Hive Estates marked this listing as sold.
Hive Estates created the listing.
Nearby Schools
| Name | Type | Ofsted | Distance |
|---|---|---|---|
| Norham High School | Foundation School | Special Measures | 0.54 KM |
| Collingwood Primary School | Community School | Good | 0.55 KM |
| St Thomas More Catholic High School | Academy Converter | Good | 0.87 KM |
| St Joseph'S Catholic Primary School, North Shields | Academy Converter | 0.89 KM | |
| Whitehouse Primary School | Foundation School | Good | 1.31 KM |
Images
Nearby Streets
| Name | Average Price | Average Sqft | Distance |
|---|---|---|---|
| Bolingbroke Road | £ 0 | 0 | 0.00 KM |
| Simonburn Avenue | £ 0 | 0 | 0.00 KM |
| Hedgeley Road | £ 260,000 | 0 | 0.00 KM |
| Holme Crescent | £ 0 | 0 | 0.00 KM |
| Beaufront Avenue | £ 0 | 0 | 0.00 KM |
Nearby Listings
| Address | Price | Type | Score | Distance |
|---|---|---|---|---|
| Balkwell Avenue, North Shields, Tyne and Wear | £ 60,000 | BUY | 6 / 10 | 0.00 KM |
| Balkwell Avenue, North Shields | £ 119,950 | BUY | 7 / 10 | 0.04 KM |
| Verne Road, North Shields | £ 110,000 | BUY | 5 / 10 | 0.07 KM |
| Bardolph Road, North Shields | £ 99,950 | BUY | 7 / 10 | 0.10 KM |
| Verne Road, North Shields | £ 119,950 | BUY | 6 / 10 | 0.12 KM |
Nearby Properties
| Address | Price | Distance |
|---|---|---|
| 208 Balkwell Avenue | £ 88,000 | 0.01 KM |
| 141 Balkwell Avenue | £ 69,950 | 0.01 KM |
| 202 Balkwell Avenue | £ 58,000 | 0.01 KM |
| 145 Balkwell Avenue | £ 19,500 | 0.01 KM |
| 151 Balkwell Avenue | £ 97,000 | 0.01 KM |