Yopa says ..
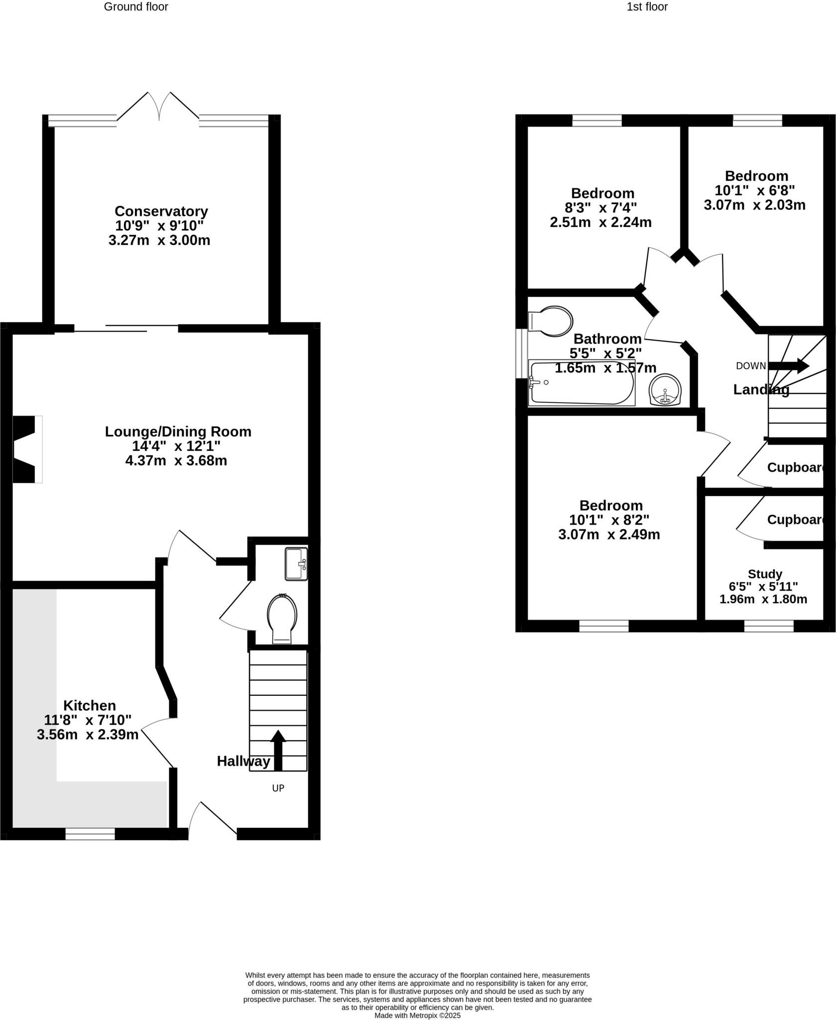
A beautifully presented and deceptively spacious modern end terrace property situated in a 'tucked away' cul de sac setting. The property has three bedrooms, a wonderful landscaped garden, a garage, and a conservatory extension as just some of the main highlights. Viewing highly recommended.
Property Oracle says ..
Therefore, we give this property 7 / 10. *Disclaimer: This is our option and does constitute a recommendation or financial advice. Do your own research. *
- Price
- 6
- Condition
- 8
- Location
- 7
- Land
- 7
- Bedrooms
- 3
- Bathrooms
- 1
- Sqft (est)
- 646.16
The heatmap indicates the level of crime in the area. The color of the heatmap indicates the crime severity and recency.
Metrics Year-on-Year
- Average area value
- 327,363.00 £Increased by 26.97 %
- Est sale value
- 248,125.44 £Increased by 70.67 %
- Average area rental value
- 1,112.00 £/moIncreased by 23.69 %
- Est letting value
- 646.16 £/mo
- Est rental Yield
- 4.08 %Decreased by 2.39 %
- Crime Rate
- 7.00 %Unchanged by 0.00 %
from 257,821.00 £
from 145,386.00 £
from 899.00 £/mo
from 0.00 £/mo
from 4.18 %
from 7.00 %
Agent Activity
Yopa created the listing.
Nearby Schools
| Name | Type | Ofsted | Distance |
|---|---|---|---|
| Halesbury School | Foundation Special School | Good | 0.44 KM |
| Hurst Green Primary School | Community School | Good | 0.59 KM |
| Olive Hill Children'S Centre | Children's Centre | 0.68 KM | |
| Olive Hill Primary Academy | Academy Converter | 0.70 KM | |
| Leasowes High School | Academy Converter | Good | 1.28 KM |
Images
Nearby Streets
| Name | Average Price | Average Sqft | Distance |
|---|---|---|---|
| Beaumont Road | £ 199,994 | 0 | 0.00 KM |
| Church Street | £ 180,000 | 0 | 0.00 KM |
| Green Lane | £ 194,375 | 0 | 0.00 KM |
| Fairfield Road | £ 403,000 | 0 | 0.00 KM |
| St Loye's Close | £ 0 | 0 | 0.00 KM |
Nearby Transport
| Name | NLC | TLC | Distance |
|---|---|---|---|
| Rowley Regis | 4606 | ROW | 0.73 KM |
| Old Hill | 4641 | OHL | 2.85 KM |
| Langley Green | 4607 | LGG | 3.81 KM |
| Sandwell And Dudley | 1149 | SAD | 4.70 KM |
| Dudley Port | 1212 | DDP | 6.35 KM |
Nearby Listings
| Address | Price | Type | Score | Distance |
|---|---|---|---|---|
| Belgrave Road, Halesowen, B62 | £ 270,000 | BUY | 7 / 10 | 0.00 KM |
| Belgrave Road, Halesowen, B62 | £ 250,000 | BUY | 7 / 10 | 0.00 KM |
| Belgrave Road, Halesowen, B62 | £ 280,000 | BUY | 6 / 10 | 0.01 KM |
| Belgrave Road, Halesowen, B62 9EY | £ 200,000 | BUY | 7 / 10 | 0.01 KM |
| Belgrave Road, Halesowen, B62 9EY | £ 235,000 | BUY | 6 / 10 | 0.01 KM |
Nearby Properties
| Address | Price | Distance |
|---|---|---|
| 31b Belgrave Road | £ 100,000 | 0.01 KM |
| 31a Belgrave Road | £ 114,000 | 0.01 KM |
| 30a Belgrave Road | £ 132,000 | 0.01 KM |
| 34 Belgrave Road | £ 87,500 | 0.01 KM |
| 30d Belgrave Road | £ 53,500 | 0.01 KM |