Land Adjoining The Sun Inn, Glyndyfrdwy, Corwen, Denbighshire, LL21 9HS
By Town & Country Property Auctions
£ 30,000
Reviews
2 out of 5 stars
Town & Country Property Auctions says ..
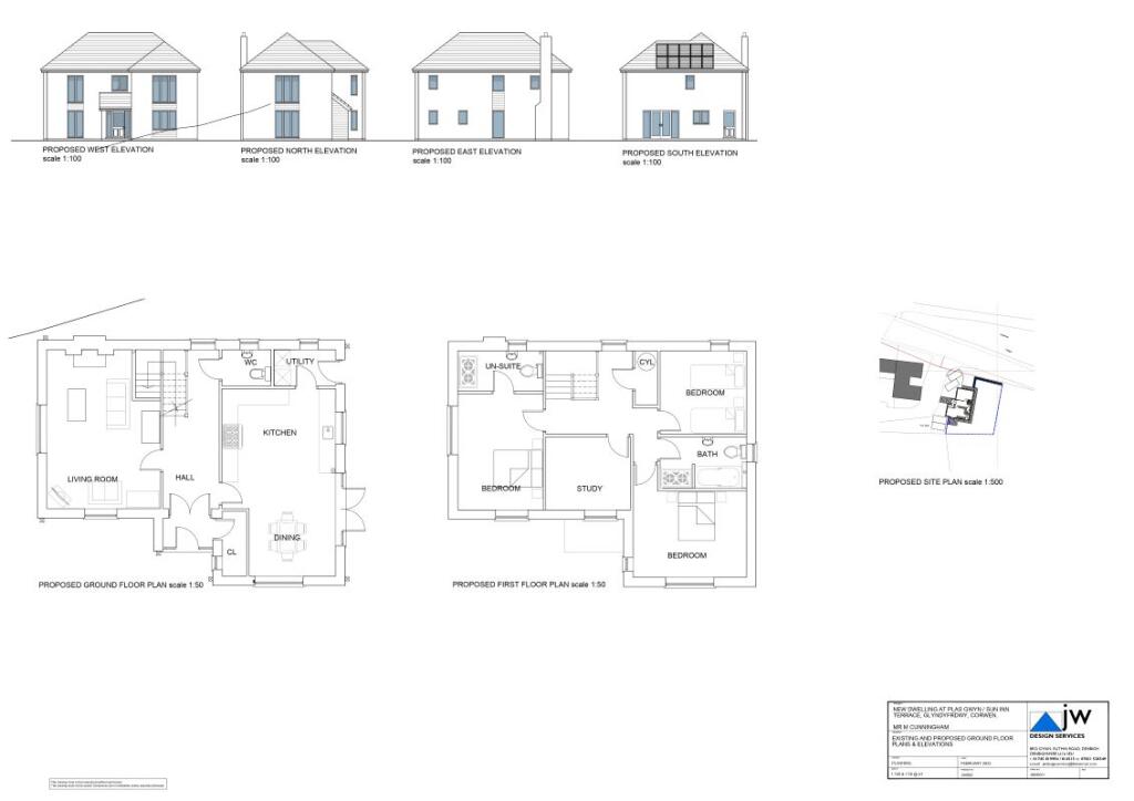
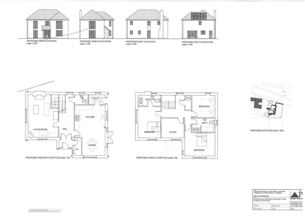
Guide Price £30,000 - £60,000 For sale by unconditional online auction, registration is now open. A Single Building Plot With Planning Consent For The Erection Of A Detached Three Bedroom House, Being Located Between Llangollen And Corwen With Beautiful Views Over The Surroundi...
Property Oracle says ..
The property is a plot of land located in Glyndyfrdwy, Corwen, Denbighshire. The location appears to be rural, surrounded by fields and hills. The land is situated next to the A5 road and close to The Sun Inn. There are a few schools within a reasonable distance. The land itself appears to be overgrown and requires clearing. Planning permission has been granted for a dwelling. The listing price of £30,000 seems reasonable when compared to nearby land values.
Therefore, we give this property 5 / 10. *Disclaimer: This is our option and does constitute a recommendation or financial advice. Do your own research. *
- Price
- 8
- Condition
- 1
- Location
- 6
- Land
- 7
- Bedrooms
- 3
- Bathrooms
- 0
The heatmap indicates the level of crime in the area. The color of the heatmap indicates the crime severity and recency.
Metrics Year-on-Year
- Average area value
- 326,418.00 £Decreased by 0.78 %
- Average area rental value
- 1,459.00 £/moIncreased by 29.46 %
- Est rental Yield
- 5.36 %Increased by 30.41 %
- Crime Rate
- 0.00 %
Agent Activity
Town & Country Property Auctions marked this listing as sold.
Town & Country Property Auctions created the listing.
Nearby Schools
| Name | Type | Ofsted | Distance |
|---|---|---|---|
| Ysgol Gynradd Carrog | Welsh Establishment | 6.58 KM | |
| Ysgol Llanarmon Dyffryn Ceiriog | Welsh Establishment | 8.94 KM |
Images
Nearby Streets
| Name | Average Price | Average Sqft | Distance |
|---|---|---|---|
| Tan Y Ffordd | £ 175,000 | 0 | 0.00 KM |
| Maes Y Glyn | £ 182,500 | 0 | 0.00 KM |
| Twm Path | £ 0 | 0 | 0.00 KM |
Nearby Listings
| Address | Price | Type | Score | Distance |
|---|---|---|---|---|
| Land Adjoining The Sun Inn, Glyndyfrdwy, Corwen, Denbighshire, LL21 9HS | £ 30,000 | BUY | 5 / 10 | 0.00 KM |
| New Inn Terrace, Glyndyfrdwy | £ 165,000 | BUY | 6 / 10 | 0.39 KM |
| New Inn Terrace, Corwen | £ 165,000 | BUY | 6 / 10 | 0.39 KM |
| Bryn Derwyn Terrace, Glyndyfrdwy, Corwen | £ 195,000 | BUY | 7 / 10 | 0.53 KM |
| Maes Y Glyn, Glyndyfrdwy | £ 335,000 | BUY | 7 / 10 | 0.54 KM |
Nearby Properties
| Address | Price | Distance |
|---|---|---|
| 16 New Inn Terrace | £ 74,500 | 0.39 KM |
| 12 New Inn Terrace | £ 27,000 | 0.39 KM |
| 4 New Inn Terrace | £ 60,000 | 0.41 KM |
| 10 New Inn Terrace | £ 123,000 | 0.41 KM |
| 14 Maes Owain | £ 80,450 | 0.46 KM |