Evans & Company says ..
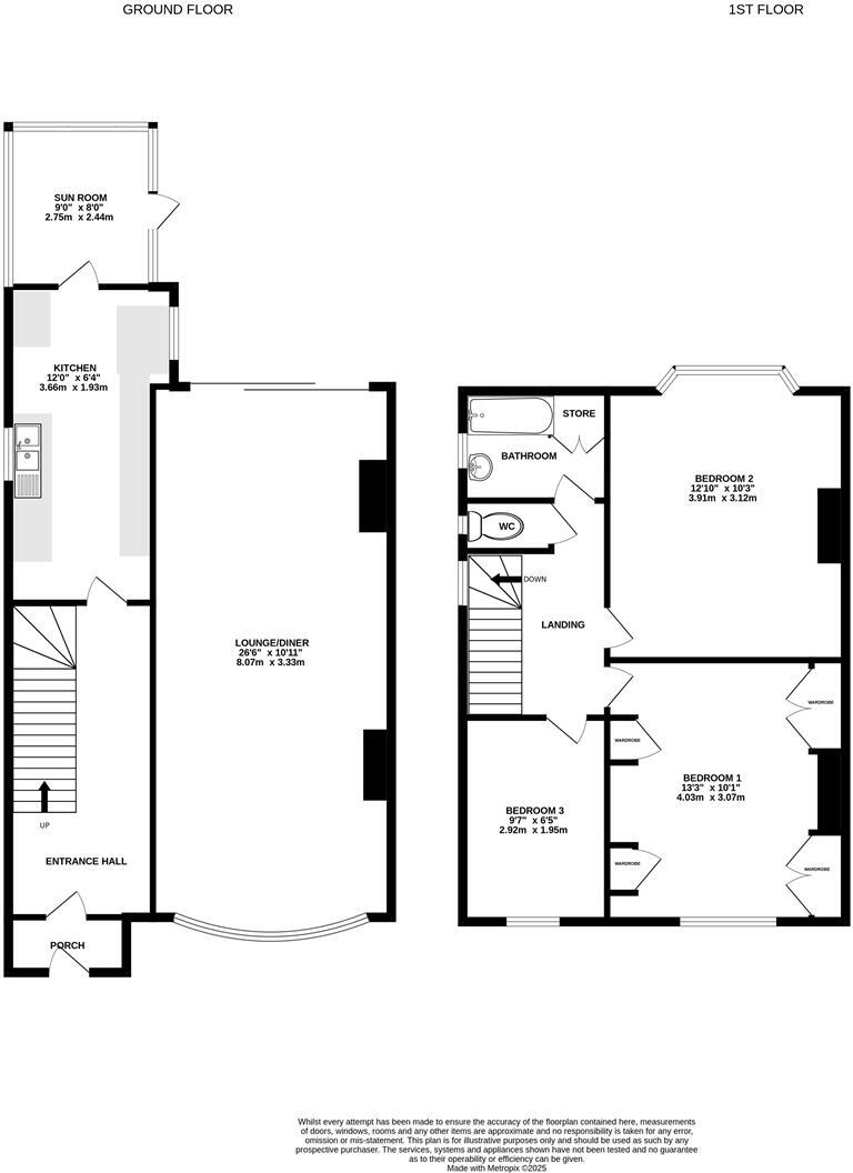
Evans and Company are pleased to offer this spacious three bedroom semidetached family home located in a popular residential area that provides easy access to local transport, schooling and shopping facilities. South or Broadway is located a short walk away providing access to shops and the Eliz...
Property Oracle says ..
This semi-detached property is located on Kenton Avenue, Southall, in the Dormers Wells area of Ealing, Greater London. The property benefits from being close to several schools including Dormers Wells Infant School, Dormers Wells Junior School, and Dormers Wells High School, all within a short distance. Southall train station is also conveniently located approximately 1.51 km away, providing easy access to transportation links. The property itself is a three-bedroom, one-bathroom semi-detached house with a small garden. Based on the images provided, the property appears to be in need of some modernisation and updating. The kitchen and bathroom appear dated and could benefit from refurbishment. The flooring and decor throughout the house also seem tired. While the property has a garden, it is relatively small. The list price of £575,000 is slightly below the average price for the area (£587,132), but considering the condition of the property and the small plot size, it may be slightly overpriced compared to similar properties in the area that are in better condition or have larger gardens. Nearby comparable properties range in price but those in similar condition to the subject property seem to be priced slightly lower.
Therefore, we give this property 6 / 10. *Disclaimer: This is our option and does constitute a recommendation or financial advice. Do your own research. *
- Price
- 6
- Condition
- 6
- Location
- 8
- Land
- 4
- Bedrooms
- 3
- Bathrooms
- 1
- Sqft (est)
- 975.64
The heatmap indicates the level of crime in the area. The color of the heatmap indicates the crime severity and recency.
Metrics Year-on-Year
- Average area value
- 523,317.00 £Increased by 7.74 %
- Est sale value
- 651,727.52 £Increased by 23.93 %
- Average area rental value
- 1,867.00 £/moDecreased by 17.83 %
- Est letting value
- 1,951.28 £/moUnchanged by 0.00 %
- Est rental Yield
- 4.28 %Decreased by 23.71 %
- Crime Rate
- 3.00 %Unchanged by 0.00 %
Agent Activity
Evans & Company marked this listing as sold.
Evans & Company created the listing.
Nearby Schools
| Name | Type | Ofsted | Distance |
|---|---|---|---|
| Dormers Wells Children'S Centre | Children's Centre Linked Site | 0.38 KM | |
| Dormers Wells High School | Academy Converter | 0.45 KM | |
| Dormers Wells Infant School | Academy Sponsor Led | 0.47 KM | |
| Grove House Children'S Centre | Children's Centre | 0.49 KM | |
| Dormers Wells Junior School | Academy Sponsor Led | 0.52 KM |
Images
Nearby Streets
| Name | Average Price | Average Sqft | Distance |
|---|---|---|---|
| Grove Terrace | £ 0 | 0 | 0.00 KM |
| Thurston Road | £ 600,000 | 0 | 0.00 KM |
| Faraday Road | £ 400,000 | 0 | 0.00 KM |
| Boyd Avenue | £ 650,000 | 0 | 0.00 KM |
| Herbert Road | £ 0 | 0 | 0.00 KM |
Nearby Transport
| Name | NLC | TLC | Distance |
|---|---|---|---|
| Southall | 3187 | STL | 1.51 KM |
| Hanwell | 3191 | HAN | 3.23 KM |
| Greenford | 3136 | GFD | 3.97 KM |
| South Greenford | 3138 | SGN | 4.07 KM |
| Castle Bar Park | 3098 | CBP | 4.12 KM |
Nearby Listings
| Address | Price | Type | Score | Distance |
|---|---|---|---|---|
| Kenton Avenue, Southall | £ 575,000 | BUY | 6 / 10 | 0.00 KM |
| Burns Avenue, Southall, UB1 | £ 640,000 | BUY | 7 / 10 | 0.11 KM |
| Burns Avenue, Southall, UB1 | £ 595,000 | BUY | 6 / 10 | 0.11 KM |
| Burns Avenue, Southall | £ 625,000 | BUY | 6 / 10 | 0.20 KM |
| Burns Avenue | Southall | UB1 | £ 649,950 | BUY | 6 / 10 | 0.20 KM |
Nearby Properties
| Address | Price | Distance |
|---|---|---|
| 15 Kenton Avenue | £ 430,000 | 0.05 KM |
| 11 Kenton Avenue | £ 475,000 | 0.05 KM |
| 109 Burns Avenue | £ 300,000 | 0.11 KM |
| 90 Burns Avenue | £ 415,000 | 0.11 KM |
| 106 Burns Avenue | £ 249,999 | 0.11 KM |