Windlehurst Road, Marple
By Edward Mellor Ltd
£ 385,000
Reviews
3 out of 5 stars
Edward Mellor Ltd says ..
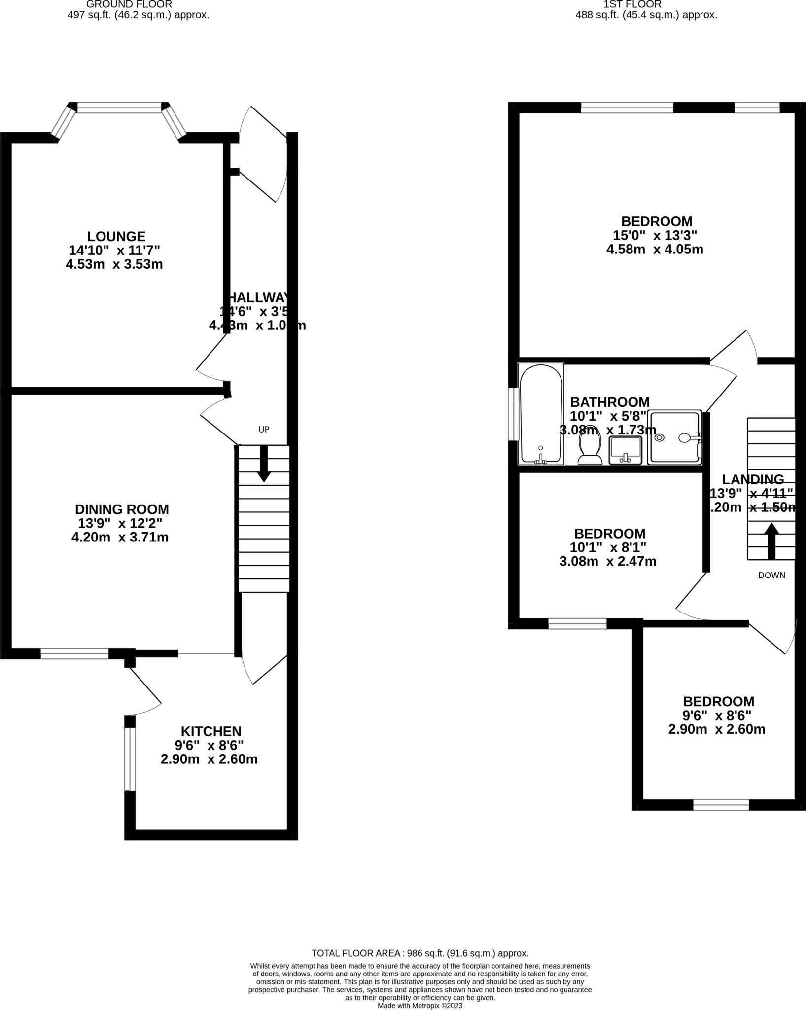
A beautifully presented bay fronted period semi detached property with a lovingly tended mature lawned garden at the rear and a block paved driveway for two cars at the front. The interior throughout is exceptional, enjoying an entrance hallway with two generous sized reception rooms and a sep...
Property Oracle says ..
This three-bedroom semi-detached house located on Windlehurst Road in Marple, Stockport, offers a comfortable family home. Its location is ideal, boasting proximity to highly rated local schools and the train station, which links it with Manchester. The images reveal a property that has been well-maintained but could potentially benefit from some modernisation to enhance its appeal. While the kitchen and bathroom seem recently updated, some other areas might benefit from cosmetic improvements, such as refreshing the decor or upgrading fixtures. The inclusion of a garden is a welcome addition, though it appears to be of a modest size. The asking price appears fair, aligned with similar properties in the vicinity, considering its location, condition, and size. However, a lack of detailed square footage data for local comparables and limited plot size information for the property in question hampers a completely precise assessment of value. Overall, this property presents a good opportunity for potential buyers seeking a family home in a desirable area of Greater Manchester but should be prepared to allocate a budget for some potential updates or cosmetic improvements.
Therefore, we give this property 6 / 10. *Disclaimer: This is our option and does constitute a recommendation or financial advice. Do your own research. *
- Price
- 7
- Condition
- 6
- Location
- 7
- Land
- 4
- Bedrooms
- 3
- Bathrooms
- 1
- Sqft (est)
- 985.97
The heatmap indicates the level of crime in the area. The color of the heatmap indicates the crime severity and recency.
Metrics Year-on-Year
- Average area value
- 600,417.00 £Increased by 40.45 %
- Est sale value
- 378,612.48 £Increased by 2.67 %
- Average area rental value
- 1,815.00 £/moIncreased by 55.39 %
- Est letting value
- 985.97 £/moUnchanged by 0.00 %
- Est rental Yield
- 3.63 %Increased by 10.67 %
- Crime Rate
- 0.00 %
Agent Activity
Edward Mellor Ltd created the listing.
Nearby Schools
| Name | Type | Ofsted | Distance |
|---|---|---|---|
| Windlehurst School | Community Special School | Good | 0.25 KM |
| All Saints Church Of England Primary School Marple | Voluntary Controlled School | Good | 1.14 KM |
| Acorns School | Other Independent Special School | Requires improvement | 1.24 KM |
| High Lane Primary School | Community School | Good | 1.79 KM |
| Brabyns Preparatory School | Other Independent School | 1.98 KM |
Images
Nearby Streets
| Name | Average Price | Average Sqft | Distance |
|---|---|---|---|
| Crown Street | £ 355,000 | 0 | 0.00 KM |
| Briarwood Close | £ 0 | 0 | 0.00 KM |
| Middlewood Way | £ 550,000 | 0 | 0.00 KM |
| Telford Road | £ 0 | 0 | 0.00 KM |
| Peakdale Road | £ 0 | 0 | 0.00 KM |
Nearby Transport
| Name | NLC | TLC | Distance |
|---|---|---|---|
| Marple | 2830 | MPL | 2.21 KM |
| Rose Hill Marple | 2873 | RSH | 2.22 KM |
| Strines | 2834 | SRN | 3.29 KM |
| Middlewood | 2971 | MDL | 3.30 KM |
| Disley | 2765 | DSL | 3.45 KM |
Nearby Listings
| Address | Price | Type | Score | Distance |
|---|---|---|---|---|
| Windlehurst Road, Marple | £ 385,000 | BUY | 7 / 10 | 0.00 KM |
| Windlehurst Road, Marple, Stockport, Greater Manchester, SK6 | £ 425,000 | BUY | 7 / 10 | 0.01 KM |
| Windlehurst Road, Marple, Stockport, Greater Manchester, SK6 | £ 405,000 | BUY | 7 / 10 | 0.01 KM |
| Windlehurst Road, Marple, Stockport, Greater Manchester, SK6 | £ 360,000 | BUY | 6 / 10 | 0.02 KM |
| Windlehurst Road, Marple, Stockport, SK6 | £ 725,000 | BUY | Unknown | 0.04 KM |
Nearby Properties
| Address | Price | Distance |
|---|---|---|
| 331 Windlehurst Road | £ 397,000 | 0.01 KM |
| 315 Windlehurst Road | £ 400,000 | 0.02 KM |
| 329 Windlehurst Road | £ 215,000 | 0.02 KM |
| 313 Windlehurst Road | £ 420,000 | 0.02 KM |
| 3 Hollingworth Drive | £ 222,500 | 0.08 KM |