Choice Properties says ..
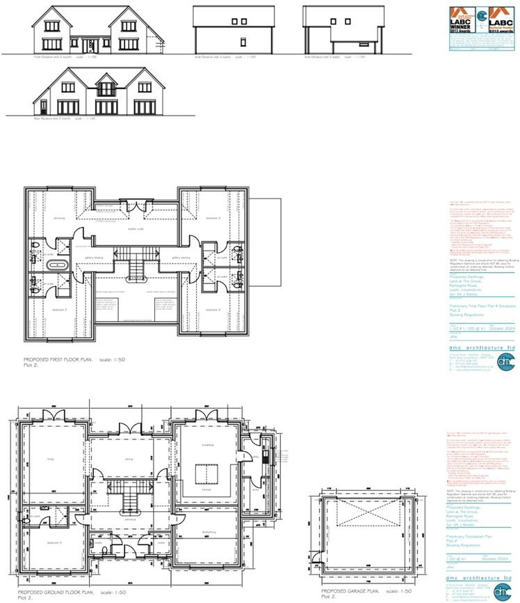
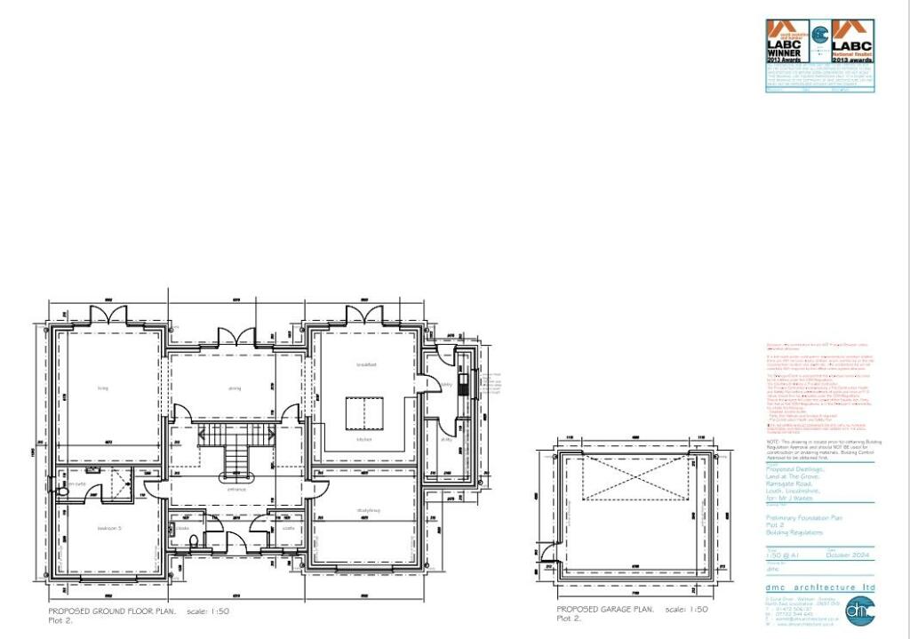
Choice Properties offer a unique opportunity to purchase off plan this most exceptional, bespoke, detached home. With capacious open plan kitchen, dining/entertaining space, living room together with private study and ground floor bedroom with en suite this stunning residence features a grand sta...
Property Oracle says ..
This listing presents a proposed detached home in Louth, Lincolnshire, offered off-plan by Choice Properties. The property boasts five bedrooms and five bathrooms, spread across a substantial 2,600 square feet. Architectural plans reveal a well-designed layout, with spacious living areas, a large kitchen/dining space, and a study. The design suggests a high-end finish is anticipated. However, the listing lacks details regarding plot size, which is significant for determining overall value. The lack of plot size data also makes it hard to assess the true value for money, as external space is a significant factor. Also, there’s a lack of information about transport links. The nearby schools are a positive aspect, though the distance to these schools would be a further consideration. Whilst other nearby properties seem to be at a lower price point, this is likely due to the larger scale of this property. The significant price point suggests that this property will be of a high standard, and given the specification is that of a high-end property. More information, particularly regarding the land, would significantly aid a full and accurate evaluation.
Therefore, we give this property 5 / 10. *Disclaimer: This is our option and does constitute a recommendation or financial advice. Do your own research. *
- Price
- 7
- Condition
- 6
- Location
- 7
- Land
- 2
- Bedrooms
- 5
- Bathrooms
- 5
- Sqft (est)
- 2,600.00
The heatmap indicates the level of crime in the area. The color of the heatmap indicates the crime severity and recency.
Metrics Year-on-Year
- Average area value
- 197,200.00 £Decreased by 6.39 %
- Est sale value
- 579,800.00 £Decreased by 6.69 %
- Average area rental value
- 547.00 £/moDecreased by 9.88 %
- Est letting value
- 0.00 £/mo
- Est rental Yield
- 3.33 %Decreased by 3.76 %
- Crime Rate
- 8.00 %Unchanged by 0.00 %
Agent Activity
Choice Properties created the listing.
Nearby Schools
| Name | Type | Ofsted | Distance |
|---|---|---|---|
| Eastfield Infants And Nursery Academy | Academy Converter | 0.41 KM | |
| Louth And Holton-Le-Clay Children'S Centre | Children's Centre | 0.45 KM | |
| Lacey Gardens Junior Academy | Academy Converter | 0.50 KM | |
| Louth Academy | Academy Sponsor Led | 0.51 KM | |
| St Michael'S Church Of England School, Louth | Voluntary Controlled School | Good | 0.66 KM |
Images
Nearby Streets
| Name | Average Price | Average Sqft | Distance |
|---|---|---|---|
| Commercial Road | £ 142,473 | 0 | 0.00 KM |
| Riverside Court | £ 0 | 0 | 0.00 KM |
| Victoria Road | £ 0 | 0 | 0.00 KM |
| Priory Close | £ 239,950 | 0 | 0.00 KM |
| Eastgate | £ 0 | 0 | 0.00 KM |
Nearby Listings
| Address | Price | Type | Score | Distance |
|---|---|---|---|---|
| Ramsgate Road, Louth | £ 795,000 | BUY | 5 / 10 | 0.00 KM |
| OLD CHAPEL MEWS, RAMSGATE ROAD, LOUTH | £ 145,000 | BUY | 5 / 10 | 0.01 KM |
| OLD CHAPEL MEWS, RAMSGATE ROAD, LOUTH | £ 150,000 | BUY | Unknown | 0.03 KM |
| CROWN MILLS, RAMSGATE ROAD, LOUTH | £ 159,950 | BUY | 6 / 10 | 0.03 KM |
| COMMERCIAL ROAD LOUTH | £ 139,950 | BUY | 6 / 10 | 0.07 KM |
Nearby Properties
| Address | Price | Distance |
|---|---|---|
| 2 The Stables | £ 122,500 | 0.01 KM |
| 15 Ramsgate Road | £ 44,000 | 0.01 KM |
| 15 Commercial Road | £ 112,000 | 0.06 KM |
| 13 Commercial Road | £ 139,000 | 0.06 KM |
| 24 Commercial Road | £ 75,000 | 0.06 KM |