John Payne says ..
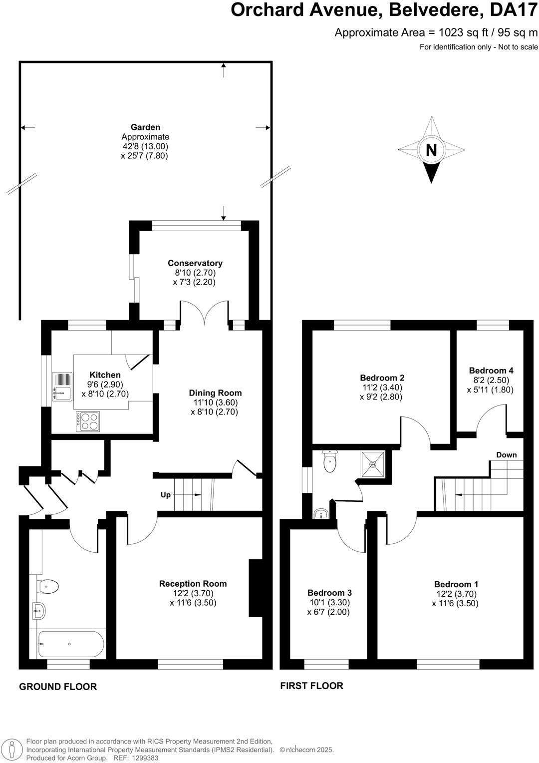
We’re delighted to present this beautifully kept family home in a sought-after location in Belvedere near Bedonwell school, the accommodation offers an impressive 1023sqft of floorspace across both floors with added conservatory and side-extension. As you enter the welcoming central hallway...
Property Oracle says ..
Therefore, we give this property 6 / 10. *Disclaimer: This is our option and does constitute a recommendation or financial advice. Do your own research. *
- Price
- 4
- Condition
- 6
- Location
- 7
- Land
- 7
- Bedrooms
- 4
- Bathrooms
- 2
- Sqft (est)
- 95.00
- Lot (est)
- 1,097.33
The heatmap indicates the level of crime in the area. The color of the heatmap indicates the crime severity and recency.
Metrics Year-on-Year
- Average area value
- 477,500.00 £Increased by 0.19 %
- Est sale value
- 41,800.00 £Increased by 10.55 %
- Average area rental value
- 1,553.00 £/moDecreased by 15.04 %
- Est letting value
- 95.00 £/moUnchanged by 0.00 %
- Est rental Yield
- 3.90 %Decreased by 15.22 %
- Crime Rate
- 4.00 %Unchanged by 0.00 %
from 476,616.00 £
from 37,810.00 £
from 1,828.00 £/mo
from 95.00 £/mo
from 4.60 %
from 4.00 %
Agent Activity
John Payne created the listing.
Nearby Schools
| Name | Type | Ofsted | Distance |
|---|---|---|---|
| Bedonwell Infant And Nursery School | Academy Converter | 0.29 KM | |
| Bedonwell Junior School | Academy Converter | Good | 0.29 KM |
| Break Through | Other Independent School | Good | 0.81 KM |
| Belmont Academy | Academy Converter | 1.31 KM | |
| St Augustine Of Canterbury Cofe Primary School | Academy Sponsor Led | Good | 1.36 KM |
Images
Nearby Streets
| Name | Average Price | Average Sqft | Distance |
|---|---|---|---|
| Grove Road | £ 550,000 | 0 | 0.00 KM |
| Flora Street | £ 0 | 0 | 0.00 KM |
| Nuxley Road | £ 0 | 0 | 0.00 KM |
| Streamway | £ 0 | 0 | 0.00 KM |
| Dunwich Road | £ 750,000 | 0 | 0.00 KM |
Nearby Transport
| Name | NLC | TLC | Distance |
|---|---|---|---|
| Bexleyheath | 5094 | BXH | 1.87 KM |
| Abbey Wood | 5131 | ABW | 2.08 KM |
| Belvedere | 5092 | BVD | 2.19 KM |
| Barnehurst | 5089 | BNH | 3.06 KM |
| Welling | 5128 | WLI | 4.21 KM |
Nearby Listings
| Address | Price | Type | Score | Distance |
|---|---|---|---|---|
| Orchard Avenue, Belvedere | £ 525,000 | BUY | 7 / 10 | 0.00 KM |
| Orchard Avenue, Belvedere | £ 450,000 | BUY | 7 / 10 | 0.00 KM |
| Orchard Avenue, Belvedere | £ 495,000 | BUY | 6 / 10 | 0.00 KM |
| Orchard Avenue, Belvedere, DA17 | £ 475,000 | BUY | 7 / 10 | 0.00 KM |
| Elmhurst, Belvedere, DA17 | £ 475,000 | BUY | 7 / 10 | 0.09 KM |
Nearby Properties
| Address | Price | Distance |
|---|---|---|
| 8 Orchard Avenue | £ 250,000 | 0.01 KM |
| 22 Orchard Avenue | £ 420,000 | 0.01 KM |
| 7 Orchard Avenue | £ 367,500 | 0.01 KM |
| 37 Orchard Avenue | £ 407,500 | 0.01 KM |
| 15 Orchard Avenue | £ 250,000 | 0.01 KM |