eXp UK says ..
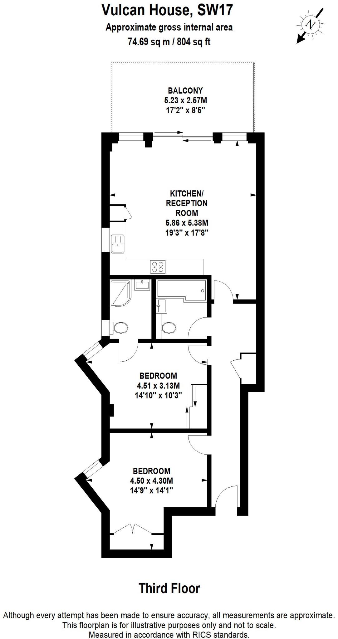
PLEASE QUOTE MR0560 - Set in a sought after modern development in the heart of Tooting, this beautifully presented two double bedroom, two bathroom, third floor apartment (804 Sq.Ft) with private balcony and allocated parking. The property offers light and spacious accommodation with modern in...
Property Oracle says ..
This is a modern two-bedroom flat located on Tooting High Street. The property is in good condition and benefits from its central location with easy access to amenities, transportation, and schools. The flat includes two bathrooms and a balcony. While it doesn’t have a garden, its modern interior and convenient location make it an attractive option for buyers looking for a well-maintained property in a bustling area.
Therefore, we give this property 6 / 10. *Disclaimer: This is our option and does constitute a recommendation or financial advice. Do your own research. *
- Price
- 6
- Condition
- 8
- Location
- 7
- Land
- 4
- Bedrooms
- 2
- Bathrooms
- 2
- Sqft (est)
- 803.96
The heatmap indicates the level of crime in the area. The color of the heatmap indicates the crime severity and recency.
Metrics Year-on-Year
- Average area value
- 475,625.00 £Decreased by 30.32 %
- Est sale value
- 570,811.60 £Increased by 0.28 %
- Average area rental value
- 2,932.00 £/moIncreased by 7.60 %
- Est letting value
- 3,215.84 £/moIncreased by 100.00 %
- Est rental Yield
- 7.40 %Increased by 54.49 %
- Crime Rate
- 8.00 %Unchanged by 0.00 %
Agent Activity
eXp UK created the listing.
Nearby Schools
| Name | Type | Ofsted | Distance |
|---|---|---|---|
| Sellincourt Primary School | Community School | Good | 0.35 KM |
| St George'S Hospital Medical School | Higher Education Institutions | 0.45 KM | |
| St Boniface Rc Primary School | Voluntary Aided School | Outstanding | 0.72 KM |
| Broadwater Primary School | Community School | Good | 0.73 KM |
| Gatton (Va) Primary School | Voluntary Aided School | Outstanding | 0.73 KM |
Images
Nearby Streets
| Name | Average Price | Average Sqft | Distance |
|---|---|---|---|
| Douglas Court | £ 0 | 0 | 0.00 KM |
| Laurel Close | £ 0 | 0 | 0.00 KM |
| Garratt Lane | £ 0 | 0 | 0.00 KM |
| Watson Close | £ 375,000 | 0 | 0.00 KM |
| Holmbury Court | £ 0 | 0 | 0.00 KM |
Nearby Transport
| Name | NLC | TLC | Distance |
|---|---|---|---|
| Tooting | 5389 | TOO | 1.26 KM |
| Haydons Road | 5289 | HYR | 1.92 KM |
| Wandsworth Common | 5395 | WSW | 2.53 KM |
| Earlsfield | 5584 | EAD | 2.64 KM |
| Mitcham Eastfields | 5069 | MTC | 2.67 KM |
Nearby Listings
| Address | Price | Type | Score | Distance |
|---|---|---|---|---|
| Tooting High Street, Tooting, SW17 | £ 575,000 | BUY | 6 / 10 | 0.00 KM |
| Tooting High Street, London, SW17 | £ 590,000 | BUY | 6 / 10 | 0.01 KM |
| Tooting High Street, Tooting | £ 450,000 | BUY | 6 / 10 | 0.03 KM |
| Tooting High Street, Tooting | £ 525,000 | BUY | 6 / 10 | 0.03 KM |
| Tooting High Street, London | £ 625,000 | BUY | 6 / 10 | 0.06 KM |
Nearby Properties
| Address | Price | Distance |
|---|---|---|
| 171 Tooting High Street | £ 130,000 | 0.09 KM |
| 23 Aldis Street | £ 183,000 | 0.11 KM |
| 19a Aldis Street | £ 42,000 | 0.11 KM |
| 17 Aldis Street | £ 160,000 | 0.11 KM |
| 32a Aldis Street | £ 465,000 | 0.11 KM |