Carter & Willow says ..
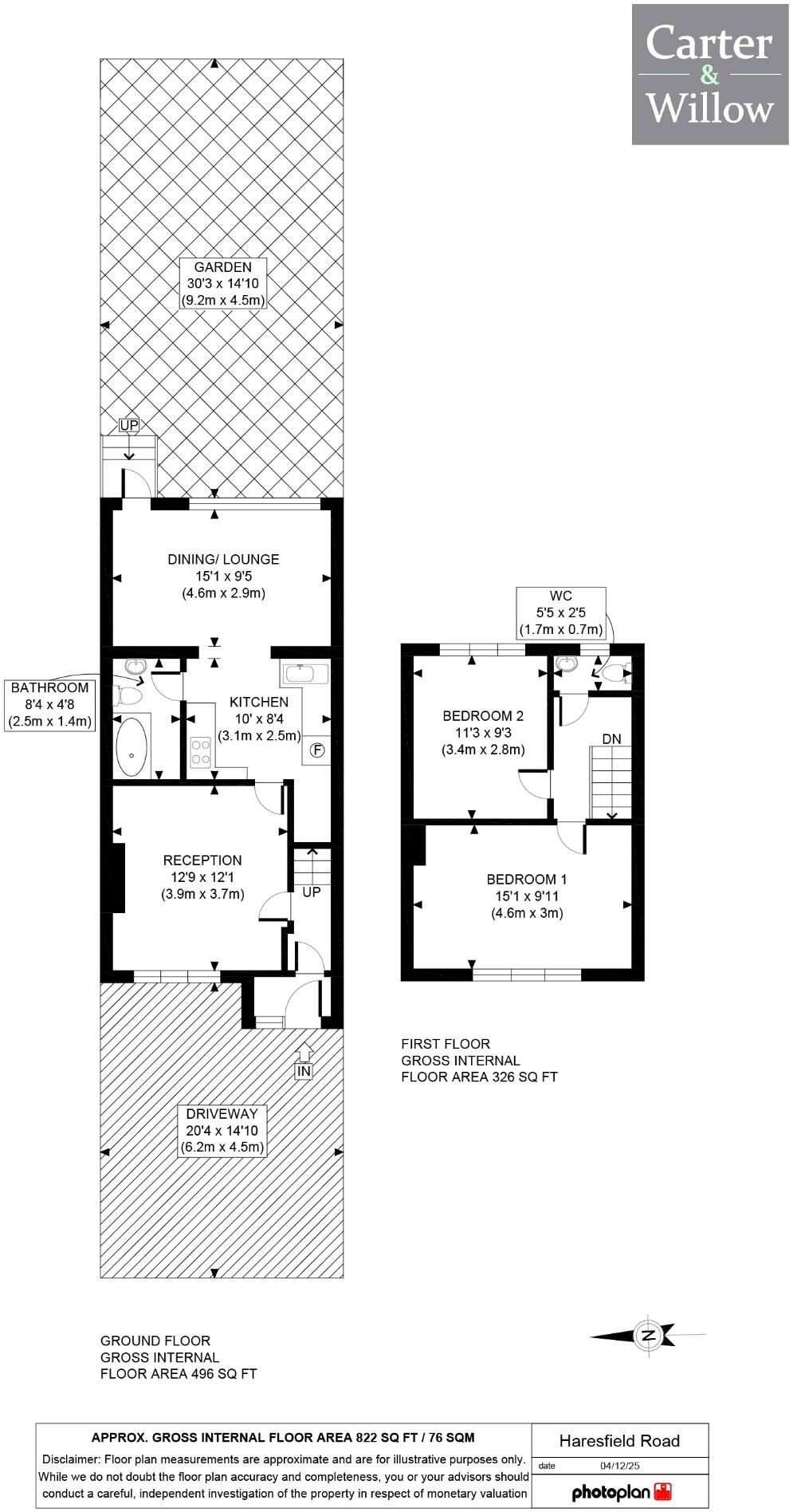
Carter & Willow offer for sale this well presented and extended 2-bedroom terraced house which offers an approx 30'3 x 14'10 private rear garden and an approx 20'4 x 14'10 driveway. Chain free.
Property Oracle says ..
This is a two-bedroom terraced house located on Haresfield Road, Dagenham. The property offers 818.06 sqft of living space and includes a garden. The house is situated in a village locality and is conveniently located near several schools. The interior features a modern kitchen and bathroom, but the property could benefit from some general updating. The listing price of £390,000 appears competitive given the local market and the property’s features, although potential buyers should factor in renovation costs.
Therefore, we give this property 6 / 10. *Disclaimer: This is our option and does constitute a recommendation or financial advice. Do your own research. *
- Price
- 7
- Condition
- 7
- Location
- 7
- Land
- 6
- Bedrooms
- 2
- Bathrooms
- 1
- Sqft (est)
- 818.06
The heatmap indicates the level of crime in the area. The color of the heatmap indicates the crime severity and recency.
Metrics Year-on-Year
- Average area value
- 516,545.00 £Decreased by 47.34 %
- Est sale value
- 472,838.68 £Decreased by 13.99 %
- Average area rental value
- 3,946.00 £/moDecreased by 6.85 %
- Est letting value
- 3,272.24 £/moIncreased by 100.00 %
- Est rental Yield
- 9.17 %Increased by 77.03 %
- Crime Rate
- 5.00 %Unchanged by 0.00 %
Agent Activity
Carter & Willow created the listing.
Nearby Schools
| Name | Type | Ofsted | Distance |
|---|---|---|---|
| Village Infants' School | Community School | Good | 0.28 KM |
| William Ford Cofe Junior School | Voluntary Aided School | Outstanding | 0.28 KM |
| Dagenham Park Cofe School | Voluntary Controlled School | Good | 0.73 KM |
| Hunters Hall Primary School | Community School | Good | 0.79 KM |
| Richard Alibon Primary School With Arp For Cognitive And Learning Difficulties : Sen Base | Community School | Good | 0.89 KM |
Images
Nearby Streets
| Name | Average Price | Average Sqft | Distance |
|---|---|---|---|
| Manning Road | £ 400,000 | 0 | 0.00 KM |
| Ford Road | £ 0 | 0 | 0.00 KM |
| Royal Parade | £ 0 | 0 | 0.00 KM |
| Reede Way | £ 0 | 0 | 0.00 KM |
| Morland Road | £ 175,500 | 0 | 0.00 KM |
Nearby Transport
| Name | NLC | TLC | Distance |
|---|---|---|---|
| Dagenham Dock | 7440 | DDK | 1.86 KM |
| Chadwell Heath | 6874 | CTH | 4.11 KM |
| Rainham (Essex) | 7454 | RNM | 4.85 KM |
| Romford | 6886 | RMF | 4.98 KM |
| Belvedere | 5092 | BVD | 5.42 KM |
Nearby Listings
| Address | Price | Type | Score | Distance |
|---|---|---|---|---|
| Haresfield Road, Dagenham, RM10 | £ 400,000 | BUY | 6 / 10 | 0.00 KM |
| Haresfield Road, Dagenham | £ 390,000 | BUY | 6 / 10 | 0.00 KM |
| Haresfield Road, Dagenham, RM10 | £ 375,000 | BUY | 5 / 10 | 0.01 KM |
| Haresfield Road, Dagenham, RM10 | £ 500,000 | BUY | 7 / 10 | 0.01 KM |
| Roberts Place, Dagenham, RM10 | £ 240,000 | BUY | 6 / 10 | 0.12 KM |
Nearby Properties
| Address | Price | Distance |
|---|---|---|
| 14 Haresfield Road | £ 175,000 | 0.00 KM |
| 25 Haresfield Road | £ 170,000 | 0.00 KM |
| 24 Haresfield Road | £ 322,500 | 0.00 KM |
| 19 Haresfield Road | £ 168,500 | 0.00 KM |
| 22 Haresfield Road | £ 250,000 | 0.00 KM |