Turners says ..
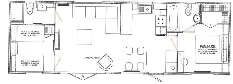
The Marlow offers a spacious open-plan lounge, dining, and kitchen with sleek furniture and integrated appliances, plus a master en-suite and twin room, perfect for modern holiday living.
Property Oracle says ..
This is a modern, well-maintained park home located in Chivenor, near Braunton. The property offers two bedrooms and two bathrooms within 1,260 sqft. The location provides a balance of rural and coastal living, with access to local amenities and nearby schools. The price appears competitive for a property of this type and condition, especially when compared to average house prices in the area. As a park home, the land is limited to the plot within the park.
Therefore, we give this property 7 / 10. *Disclaimer: This is our option and does constitute a recommendation or financial advice. Do your own research. *
- Price
- 8
- Condition
- 9
- Location
- 6
- Land
- 5
- Bedrooms
- 2
- Bathrooms
- 2
- Sqft (est)
- 1,260.00
The heatmap indicates the level of crime in the area. The color of the heatmap indicates the crime severity and recency.
Metrics Year-on-Year
- Average area value
- 661,000.00 £Increased by 29.29 %
- Est sale value
- 682,920.00 £Increased by 47.28 %
- Average area rental value
- 2,410.00 £/moIncreased by 120.90 %
- Est letting value
- 1,260.00 £/mo
- Est rental Yield
- 4.38 %Increased by 71.09 %
- Crime Rate
- 43.00 %Unchanged by 0.00 %
Agent Activity
Turners created the listing.
Nearby Schools
| Name | Type | Ofsted | Distance |
|---|---|---|---|
| Southmead School | Foundation School | Good | 2.26 KM |
| Braunton Academy | Academy Converter | Good | 2.31 KM |
| Fremington Primary School | Academy Converter | 2.81 KM | |
| Caen Community Primary School | Foundation School | Good | 3.26 KM |
| Kingsacre Primary School | Foundation School | Requires improvement | 4.07 KM |
Images
Nearby Streets
| Name | Average Price | Average Sqft | Distance |
|---|---|---|---|
| Chivenor Cross | £ 337,500 | 0 | 0.00 KM |
| Heanton Hill Lane | £ 229,975 | 0 | 0.00 KM |
| Oak Crescent | £ 0 | 0 | 0.00 KM |
| Marschland Court | £ 112,500 | 0 | 0.00 KM |
| Eastacombe Lane | £ 0 | 0 | 0.00 KM |
Nearby Transport
| Name | NLC | TLC | Distance |
|---|---|---|---|
| Barnstaple | 5725 | BNP | 8.49 KM |
Nearby Listings
| Address | Price | Type | Score | Distance |
|---|---|---|---|---|
| Chivenor, Braunton, Barnstaple | £ 169,995 | BUY | Unknown | 0.00 KM |
| Chivenor, Braunton, Barnstaple | £ 160,000 | BUY | 7 / 10 | 0.00 KM |
| Chivenor, Braunton, Barnstaple | £ 84,995 | BUY | Unknown | 0.00 KM |
| Chivenor, Braunton, Barnstaple | £ 188,000 | BUY | Unknown | 0.00 KM |
| Chivenor Cross | £ 459,950 | BUY | 6 / 10 | 0.00 KM |
Nearby Properties
| Address | Price | Distance |
|---|---|---|
| 14 Heanton Lea | £ 150,000 | 0.14 KM |
| 16 Heanton Lea | £ 148,500 | 0.14 KM |
| 22 Heanton Lea | £ 165,000 | 0.14 KM |
| 13 Heanton Lea | £ 153,000 | 0.14 KM |
| 25 Heanton Lea | £ 139,000 | 0.14 KM |