Chancellors says ..
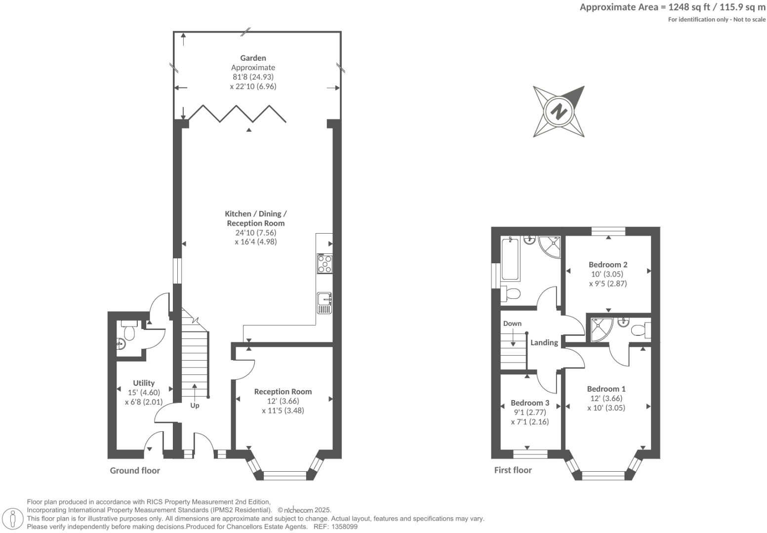
An extended and renovated home finished to a high specification throughout. The property offers an open plan kitchen/family room complete with built-in appliances, breakfast bar and bi-fold doors to the rear. There is a further reception room, utility, family bathroom and well-proportioned bedrooms
Property Oracle says ..
This is a well-presented, modern semi-detached property in a popular residential area of Oxford. The house has been recently renovated to a high standard and benefits from a large garden. While the asking price is reasonable for the area, the property is smaller than average.
Therefore, we give this property 7 / 10. *Disclaimer: This is our option and does constitute a recommendation or financial advice. Do your own research. *
- Price
- 6
- Condition
- 9
- Location
- 7
- Land
- 8
- Bedrooms
- 3
- Bathrooms
- 2
- Sqft (est)
- 82.92
The heatmap indicates the level of crime in the area. The color of the heatmap indicates the crime severity and recency.
Metrics Year-on-Year
- Average area value
- 620,000.00 £Increased by 19.65 %
- Est sale value
- 82,920.00 £Increased by 70.36 %
- Average area rental value
- 1,496.00 £/moDecreased by 23.44 %
- Est letting value
- 165.84 £/moUnchanged by 0.00 %
- Est rental Yield
- 2.90 %Decreased by 35.98 %
- Crime Rate
- 16.00 %Unchanged by 0.00 %
Agent Activity
Chancellors created the listing.
Nearby Schools
| Name | Type | Ofsted | Distance |
|---|---|---|---|
| New Marston Primary School | Academy Sponsor Led | Good | 0.41 KM |
| St Joseph'S Catholic Primary School, Oxford | Voluntary Aided School | Good | 0.71 KM |
| St Nicholas' Primary And Nursery School | Community School | Good | 0.86 KM |
| Oxfordshire Hospital School | Community Special School | Outstanding | 0.90 KM |
| The Swan School | Free Schools | 1.04 KM |
Images
Nearby Streets
| Name | Average Price | Average Sqft | Distance |
|---|---|---|---|
| Crotch Crescent | £ 400,000 | 0 | 0.00 KM |
| Butts Lane | £ 117,000 | 0 | 0.00 KM |
| Harberton Mead | £ 0 | 0 | 0.00 KM |
| Arlington Drive | £ 0 | 0 | 0.00 KM |
| Hill Farm Cottage | £ 0 | 0 | 0.00 KM |
Nearby Transport
| Name | NLC | TLC | Distance |
|---|---|---|---|
| Oxford | 3115 | OXF | 4.67 KM |
| Oxford Parkway | 3121 | OXP | 6.13 KM |
| Islip | 3110 | ISP | 6.29 KM |
| Radley | 3118 | RAD | 9.34 KM |
Nearby Listings
| Address | Price | Type | Score | Distance |
|---|---|---|---|---|
| Marston, Oxford, OX3 | £ 600,000 | BUY | 7 / 10 | 0.00 KM |
| Marsh Lane, Marston, OX3 | £ 525,000 | BUY | 6 / 10 | 0.05 KM |
| Marsh Lane, Headington, Oxford | £ 225,000 | BUY | 7 / 10 | 0.07 KM |
| Marston, Oxford, OX3 | £ 495,000 | BUY | 7 / 10 | 0.07 KM |
| Ashlong Road, Headington, OX3 | £ 600,000 | BUY | 6 / 10 | 0.09 KM |
Nearby Properties
| Address | Price | Distance |
|---|---|---|
| 26 Marsh Lane | £ 115,000 | 0.06 KM |
| 46 Marsh Lane | £ 246,000 | 0.06 KM |
| 30a Marsh Lane | £ 207,500 | 0.06 KM |
| 44 Marsh Lane | £ 215,197 | 0.06 KM |
| 29 Marsh Lane | £ 340,000 | 0.06 KM |